Julie Philpot says ..
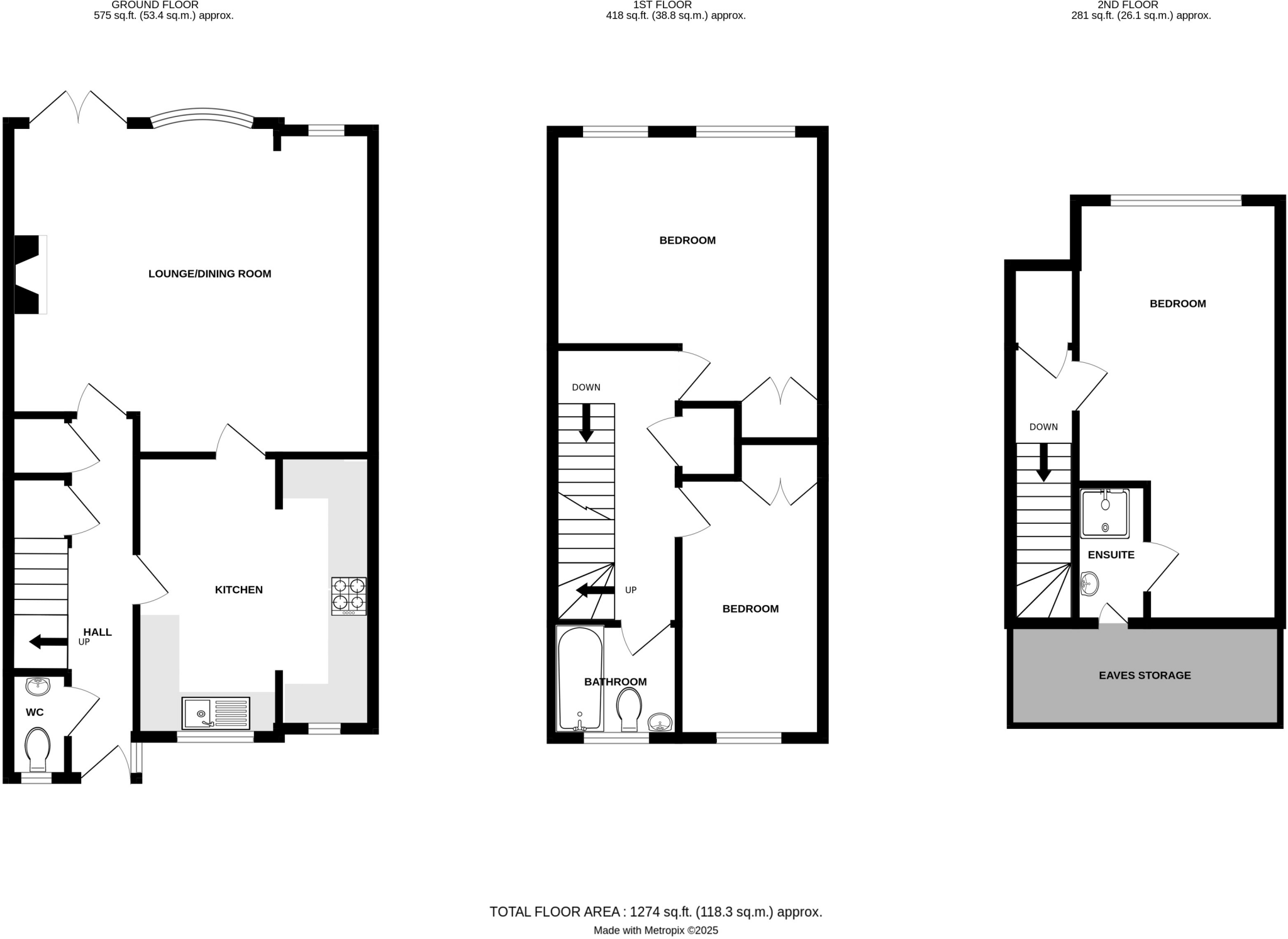
A very stylish, well presented and spacious home situated in a quiet position ideal for an easy walk into town with shops, restaurants and train station all accessible in a few minutes. This very spacious home has been extended on the ground floor to provide a larger kitchen/breakfast and lounge/...
Property Oracle says ..
The property is located on Regency Drive in Kenilworth, Warwickshire. Kenilworth is a desirable town with good schools and transport links. The property itself is a 3-bedroom, 2-bathroom house with a garden. Based on the photos, the property appears to be well maintained and in good condition. The kitchen and bathrooms look modern. The list price seems reasonable compared to other properties in the area, although more detailed pricing information would be needed to make a definitive statement.
Therefore, we give this property 7 / 10. *Disclaimer: This is our option and does constitute a recommendation or financial advice. Do your own research. *
- Price
- 7
- Condition
- 8
- Location
- 9
- Land
- 7
- Bedrooms
- 3
- Bathrooms
- 2
- Sqft (est)
- 1,514.00
- Lot (est)
- 1,274.00
The heatmap indicates the level of crime in the area. The color of the heatmap indicates the crime severity and recency.
Metrics Year-on-Year
- Average area value
- 720,833.00 £Increased by 62.68 %
- Est sale value
- 787,280.00 £Increased by 6.34 %
- Average area rental value
- 1,314.00 £/moIncreased by 12.31 %
- Est letting value
- 0.00 £/moDecreased by 100.00 %
- Est rental Yield
- 2.19 %Decreased by 30.91 %
- Crime Rate
- 44.00 %Unchanged by 0.00 %
Agent Activity
Julie Philpot created the listing.
Nearby Schools
| Name | Type | Ofsted | Distance |
|---|---|---|---|
| St John'S Primary School | Community School | Good | 0.45 KM |
| Kenilworth Nursery School & Early Years Training Centre | Local Authority Nursery School | Outstanding | 0.45 KM |
| St Nicholas Cofe Primary School | Voluntary Controlled School | Good | 0.90 KM |
| Clinton Primary School | Community School | Outstanding | 1.06 KM |
| Thorns Community Infant School | Community School | Good | 1.10 KM |
Images
Nearby Streets
| Name | Average Price | Average Sqft | Distance |
|---|---|---|---|
| St John's Avenue | £ 0 | 0 | 0.00 KM |
| Gypsy Lane | £ 0 | 0 | 0.00 KM |
| Essex Close | £ 0 | 0 | 0.00 KM |
| Brooke Road | £ 750,000 | 0 | 0.00 KM |
| Pennington Way | £ 0 | 0 | 0.00 KM |
Nearby Transport
| Name | NLC | TLC | Distance |
|---|---|---|---|
| Kenilworth | 7985 | KNW | 0.68 KM |
| Warwick | 4600 | WRW | 5.87 KM |
| Tile Hill | 1035 | THL | 6.58 KM |
| Warwick Parkway | 8530 | WRP | 7.02 KM |
| Canley | 1129 | CNL | 7.47 KM |
Nearby Listings
| Address | Price | Type | Score | Distance |
|---|---|---|---|---|
| Regency Drive, Kenilworth | £ 419,500 | BUY | Unknown | 0.00 KM |
| Regency Drive, Kenilworth | £ 425,000 | BUY | 7 / 10 | 0.00 KM |
| Regency Drive, Kenilworth, Warwickshire, CV8 | £ 425,000 | BUY | 7 / 10 | 0.03 KM |
| Queens Road, Kenilworth | £ 525,000 | BUY | 7 / 10 | 0.09 KM |
| Queens Road, Kenilworth | £ 460,000 | BUY | 7 / 10 | 0.10 KM |
Nearby Properties
| Address | Price | Distance |
|---|---|---|
| 18 Regency Drive | £ 330,000 | 0.00 KM |
| 19 Regency Drive | £ 285,000 | 0.00 KM |
| 10 Regency Drive | £ 217,000 | 0.00 KM |
| 12 Regency Drive | £ 340,000 | 0.00 KM |
| 6 Regency Drive | £ 225,000 | 0.00 KM |