Ashtons Estate Agents says ..
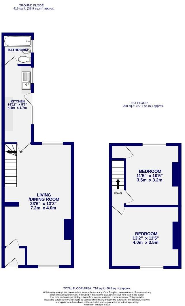
Ashtons Estate Agents are pleased to present this well presented two bedroom, traditional Victorian terrace home. Positioned in the popular residential area of Fishergate, just off Heslington Road and nestled just outside the historic city wall, The property is in close proximity to the city cent...
Property Oracle says ..
This two-bedroom, one-bathroom terraced house in York’s Fishergate area presents itself well. The property boasts a modern and well-maintained interior, as evident from the clear, high-quality photographs of the living spaces, kitchen, and bedrooms. The renovation and modernisation work undertaken are visually appealing, creating a contemporary feel. The kitchen appears to be updated with modern appliances and cabinetry. Both bedrooms feature modern decor and built-in storage. The bathroom shows a stylish, recently fitted suite. The property’s location in Fishergate offers proximity to the city centre, transport links, and several primary schools, making it attractive to families and professionals. A small, manageable, and well-maintained garden area also contributes positively. However, the lack of plot size and detailed information on the exact condition, potentially influencing the price, is lacking. Overall, this property is likely to appeal to buyers seeking a move-in ready home in a convenient York location. More information on the plot size and local average prices per sqft would allow for a more precise valuation.
Therefore, we give this property 6 / 10. *Disclaimer: This is our option and does constitute a recommendation or financial advice. Do your own research. *
- Price
- 7
- Condition
- 8
- Location
- 7
- Land
- 3
- Bedrooms
- 2
- Bathrooms
- 1
- Sqft (est)
- 715.80
The heatmap indicates the level of crime in the area. The color of the heatmap indicates the crime severity and recency.
Metrics Year-on-Year
- Average area value
- 391,421.00 £Increased by 20.41 %
- Est sale value
- 286,320.00 £Decreased by 8.05 %
- Average area rental value
- 1,243.00 £/moDecreased by 1.97 %
- Est letting value
- 715.80 £/moUnchanged by 0.00 %
- Est rental Yield
- 3.81 %Decreased by 18.59 %
- Crime Rate
- 5.00 %Unchanged by 0.00 %
Agent Activity
Ashtons Estate Agents marked this listing as sold.
Ashtons Estate Agents created the listing.
Nearby Schools
| Name | Type | Ofsted | Distance |
|---|---|---|---|
| St George'S Catholic Primary School - A Catholic Voluntary Academy | Academy Converter | 0.50 KM | |
| St Lawrence'S Church Of England Primary Academy | Academy Sponsor Led | Requires improvement | 0.56 KM |
| St Lawrence'S Children'S Centre | Children's Centre | 0.56 KM | |
| Fishergate Primary School | Community School | Good | 0.58 KM |
| Danesgate Community | Pupil Referral Unit | Good | 1.25 KM |
Images
Nearby Streets
| Name | Average Price | Average Sqft | Distance |
|---|---|---|---|
| Lawrence Court | £ 0 | 0 | 0.00 KM |
| Garden Court | £ 0 | 0 | 0.00 KM |
| St Ann's Court | £ 0 | 0 | 0.00 KM |
| Lawrence Lane | £ 0 | 0 | 0.00 KM |
| Dower Court | £ 0 | 0 | 0.00 KM |
Nearby Transport
| Name | NLC | TLC | Distance |
|---|---|---|---|
| York | 8263 | YRK | 2.58 KM |
| Poppleton | 8254 | POP | 9.02 KM |
Nearby Listings
| Address | Price | Type | Score | Distance |
|---|---|---|---|---|
| Wellington Street, York, North Yorkshire, YO10 | £ 260,000 | BUY | 6 / 10 | 0.04 KM |
| Wolsley Street, York | £ 290,000 | BUY | 7 / 10 | 0.04 KM |
| Wellington Street, York | £ 425,000 | BUY | 5 / 10 | 0.07 KM |
| Wolsley Street, York | £ 275,000 | BUY | 6 / 10 | 0.08 KM |
| Willis Street, York | £ 325,000 | BUY | 6 / 10 | 0.09 KM |
Nearby Properties
| Address | Price | Distance |
|---|---|---|
| 20 Gordon Street | £ 134,000 | 0.04 KM |
| 10 Gordon Street | £ 235,000 | 0.04 KM |
| 23 Gordon Street | £ 98,000 | 0.04 KM |
| 29 Gordon Street | £ 135,000 | 0.04 KM |
| 26 Gordon Street | £ 205,000 | 0.04 KM |