Hunters says ..
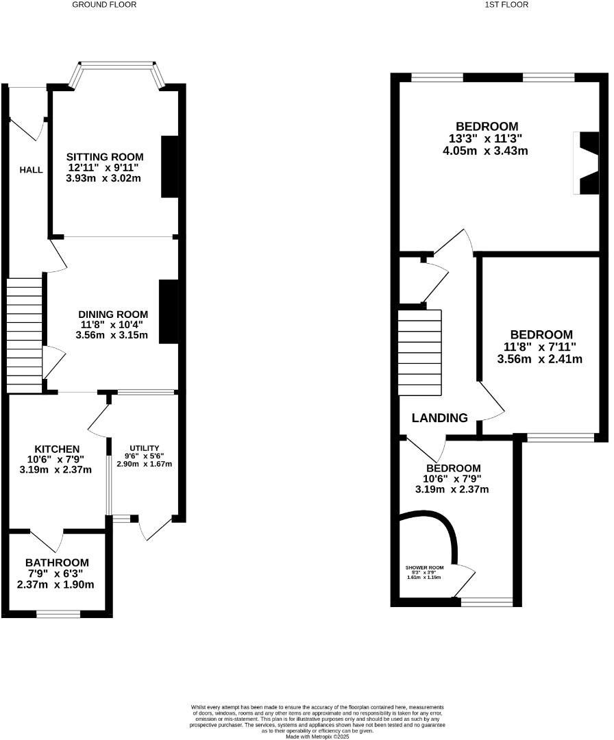
Situated close to Medway hospital on Shakespeare Road, this delightful mid-terrace house offers a perfect blend of comfort and character. With three well-proportioned bedrooms, this property is ideal for families or those seeking extra space. The entrance hall greets you with original features th...
Property Oracle says ..
This three-bedroom terraced house on Shakespeare Road, Gillingham is listed at £260,000. The property benefits from a good-sized rear garden, which is a valuable asset in a built-up area like Gillingham. The interior appears to be well-maintained and recently decorated, suggesting it is in good condition. The kitchen and bathrooms look modern and updated. The location is convenient, with several primary and secondary schools within a reasonable distance, including those rated as “Good” or “Outstanding” by Ofsted. Gillingham train station is also relatively close by, providing easy access to other parts of Kent and London. Comparing the list price to the average price per square foot in the area (£275), the property seems reasonably priced, considering its condition, location, and garden. However, it is worth noting that the provided data on nearby properties does not include square footage, making a precise comparison challenging.
Therefore, we give this property 7 / 10. *Disclaimer: This is our option and does constitute a recommendation or financial advice. Do your own research. *
- Price
- 7
- Condition
- 8
- Location
- 7
- Land
- 7
- Bedrooms
- 3
- Bathrooms
- 2
- Sqft (est)
- 1,028.38
The heatmap indicates the level of crime in the area. The color of the heatmap indicates the crime severity and recency.
Metrics Year-on-Year
- Average area value
- 253,389.00 £Increased by 1.64 %
- Est sale value
- 352,734.34 £Increased by 26.10 %
- Average area rental value
- 981.00 £/moDecreased by 6.12 %
- Est letting value
- 1,028.38 £/moUnchanged by 0.00 %
- Est rental Yield
- 4.65 %Decreased by 7.55 %
- Crime Rate
- 4.00 %Unchanged by 0.00 %
Agent Activity
Hunters created the listing.
Nearby Schools
| Name | Type | Ofsted | Distance |
|---|---|---|---|
| Chatham Grammar | Academy Converter | Good | 0.39 KM |
| Byron Primary School | Academy Sponsor Led | Requires improvement | 0.40 KM |
| Hospital And Medical Tuition Service | Miscellaneous | 0.45 KM | |
| Luton Primary School | Community School | Outstanding | 0.56 KM |
| Napier Community Primary And Nursery Academy | Academy Sponsor Led | Good | 0.96 KM |
Images
Nearby Streets
| Name | Average Price | Average Sqft | Distance |
|---|---|---|---|
| York Hill | £ 250,000 | 0 | 0.00 KM |
| Kimberley Road | £ 0 | 0 | 0.00 KM |
| Pretoria Road | £ 230,000 | 0 | 0.00 KM |
| Chickfield Gardens | £ 0 | 0 | 0.00 KM |
| Bus Lane | £ 0 | 0 | 0.00 KM |
Nearby Transport
| Name | NLC | TLC | Distance |
|---|---|---|---|
| Gillingham (Kent) | 5169 | GLM | 1.28 KM |
| Chatham | 5199 | CTM | 2.74 KM |
| Rochester | 5203 | RTR | 4.04 KM |
| Strood (Kent) | 5191 | SOO | 5.51 KM |
| Rainham (Kent) | 5177 | RAI | 7.36 KM |
Nearby Listings
| Address | Price | Type | Score | Distance |
|---|---|---|---|---|
| Shakespeare Road | £ 260,000 | BUY | 7 / 10 | 0.00 KM |
| Shakespeare Road, Gillingham, Kent, ME7 | £ 265,000 | BUY | 6 / 10 | 0.05 KM |
| Shakespeare Road, Gillingham, ME7 | £ 225,000 | BUY | 6 / 10 | 0.06 KM |
| Shakespeare Road, Gillingham | £ 250,000 | BUY | 7 / 10 | 0.06 KM |
| Tennyson Road, Gillingham, Kent, ME7 | £ 260,000 | BUY | 7 / 10 | 0.09 KM |
Nearby Properties
| Address | Price | Distance |
|---|---|---|
| 168 Shakespeare Road | £ 199,995 | 0.05 KM |
| 154 Shakespeare Road | £ 165,000 | 0.05 KM |
| 140 Shakespeare Road | £ 200,000 | 0.05 KM |
| 110 Shakespeare Road | £ 110,000 | 0.05 KM |
| 146 Shakespeare Road | £ 240,000 | 0.05 KM |