HAUZOO says ..
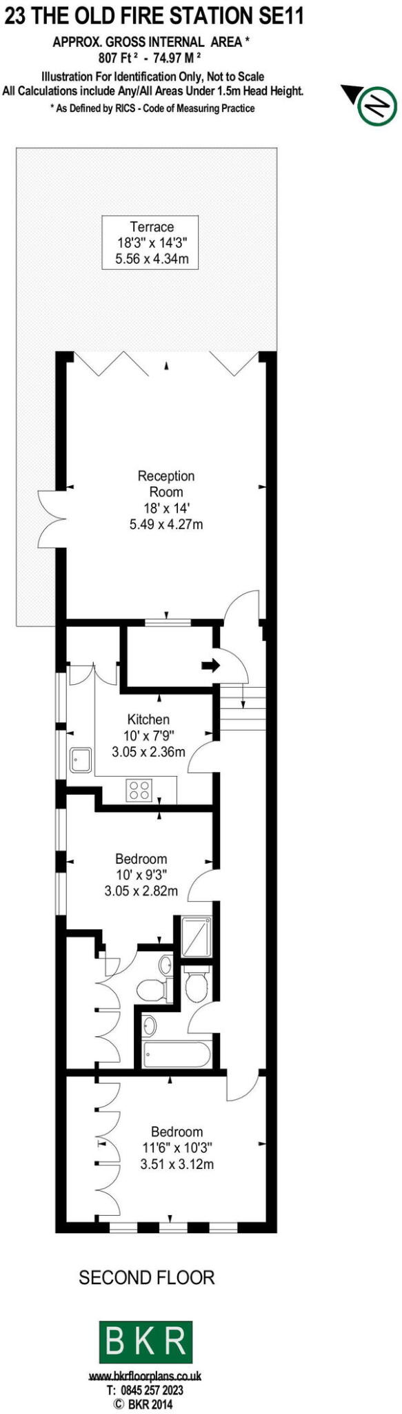
A wonderful 2 bedroom apartment located on the 2nd floor of a converted fire station in Kennington, benefitting form a large private terrace and close to transport links and amenities.
Property Oracle says ..
Therefore, we give this property 5 / 10. *Disclaimer: This is our option and does constitute a recommendation or financial advice. Do your own research. *
- Price
- 6
- Condition
- 6
- Location
- 8
- Land
- 3
- Bedrooms
- 2
- Bathrooms
- 1
- Sqft (est)
- 799.87
The heatmap indicates the level of crime in the area. The color of the heatmap indicates the crime severity and recency.
Metrics Year-on-Year
- Average area value
- 706,538.00 £Decreased by 28.53 %
- Est sale value
- 659,892.75 £Decreased by 26.47 %
- Average area rental value
- 2,182.00 £/moDecreased by 19.10 %
- Est letting value
- 1,599.74 £/moDecreased by 33.33 %
- Est rental Yield
- 3.71 %Increased by 13.46 %
- Crime Rate
- 1.00 %Unchanged by 0.00 %
from 988,544.00 £
from 897,454.14 £
from 2,697.00 £/mo
from 2,399.61 £/mo
from 3.27 %
from 1.00 %
Agent Activity
HAUZOO created the listing.
Nearby Schools
| Name | Type | Ofsted | Distance |
|---|---|---|---|
| Charlotte Sharman Primary School | Foundation School | Requires improvement | 0.41 KM |
| Archbishop Sumner Church Of England Primary School | Voluntary Aided School | Outstanding | 0.47 KM |
| St Jude'S Church Of England Primary School | Voluntary Aided School | Good | 0.53 KM |
| Notre Dame Roman Catholic Girls' School | Voluntary Aided School | Outstanding | 0.55 KM |
| London College Of Printing & Distributive Trades | Miscellaneous | 0.56 KM |
Images
Nearby Streets
| Name | Average Price | Average Sqft | Distance |
|---|---|---|---|
| George Mathers Road | £ 375,000 | 0 | 0.00 KM |
| Cotton Gardens | £ 362,500 | 0 | 0.00 KM |
| Longville Road | £ 0 | 0 | 0.00 KM |
| Dante Place | £ 0 | 0 | 0.00 KM |
| St Mary's Walk | £ 0 | 0 | 0.00 KM |
Nearby Transport
| Name | NLC | TLC | Distance |
|---|---|---|---|
| Elephant And Castle | 5246 | EPH | 0.80 KM |
| Waterloo East | 5158 | WAE | 1.38 KM |
| Waterloo | 5598 | WAT | 1.49 KM |
| Vauxhall | 5597 | VXH | 2.01 KM |
| Blackfriars | 5112 | BFR | 2.21 KM |
Nearby Listings
| Address | Price | Type | Score | Distance |
|---|---|---|---|---|
| Renfrew Road, London, SE11 | £ 675,000 | BUY | 5 / 10 | 0.00 KM |
| Renfrew Road, London, SE11 | £ 675,000 | BUY | Unknown | 0.00 KM |
| Renfrew Road, London, SE11 | £ 525,000 | BUY | 6 / 10 | 0.01 KM |
| Renfrew Road, London, SE11 | £ 375,000 | BUY | 6 / 10 | 0.01 KM |
| Renfrew Road, Kennington | £ 425,000 | BUY | 8 / 10 | 0.01 KM |
Nearby Properties
| Address | Price | Distance |
|---|---|---|
| 23 Renfrew Road | £ 198,000 | 0.01 KM |
| 50 Renfrew Road | £ 565,000 | 0.01 KM |
| 27 Renfrew Road | £ 430,000 | 0.01 KM |
| 25 Renfrew Road | £ 365,000 | 0.01 KM |
| 21 Heralds Place | £ 210,000 | 0.11 KM |