Pearsons says ..
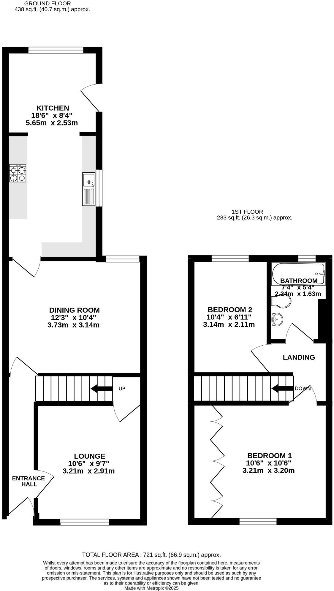
Sold with no forward chain, this two-bedroom mid-terrace house is offered in generally good repair, although there is an opportunity for upgrading and improving. The internal accommodation comprises: entrance hall, lounge, a second reception room and an extended kitchen with windows and a door to...
Property Oracle says ..
This property is a two-bedroom terraced house located in Fratton, Portsmouth. The location is convenient, with nearby schools (Newbridge Junior School, Manor Infant and Nursery School, The Portsmouth Academy, and Madani Academy, all rated “Good” by Ofsted) and transportation links (Fratton train station is approximately 1.18km away). The property includes a small garden. Based on the provided images, the property appears to be in livable condition, although some minor cosmetic updates or repairs might enhance its overall appeal. The list price of £205,000 seems reasonable considering comparable properties in the area, although a precise price per square foot comparison is impossible without more data on the square footage of nearby properties.
Therefore, we give this property 6 / 10. *Disclaimer: This is our option and does constitute a recommendation or financial advice. Do your own research. *
- Price
- 7
- Condition
- 6
- Location
- 7
- Land
- 4
- Bedrooms
- 2
- Bathrooms
- 1
- Sqft (est)
- 721.00
The heatmap indicates the level of crime in the area. The color of the heatmap indicates the crime severity and recency.
Metrics Year-on-Year
- Average area value
- 225,874.00 £Increased by 4.56 %
- Est sale value
- 253,071.00 £Increased by 35.00 %
- Average area rental value
- 914.00 £/moDecreased by 25.20 %
- Est letting value
- 721.00 £/moUnchanged by 0.00 %
- Est rental Yield
- 4.86 %Decreased by 28.42 %
- Crime Rate
- 5.00 %Unchanged by 0.00 %
Agent Activity
Pearsons created the listing.
Nearby Schools
| Name | Type | Ofsted | Distance |
|---|---|---|---|
| Newbridge Junior School | Academy Converter | Good | 0.40 KM |
| Manor Infant And Nursery School | Community School | Good | 0.43 KM |
| The Portsmouth Academy | Academy Sponsor Led | Good | 0.46 KM |
| Madani Academy | Other Independent School | Good | 0.65 KM |
| North End And Willows Children'S Centre | Children's Centre | 0.73 KM |
Images
Nearby Streets
| Name | Average Price | Average Sqft | Distance |
|---|---|---|---|
| Fourth Street | £ 0 | 0 | 0.00 KM |
| Trafalgar Place | £ 0 | 0 | 0.00 KM |
| Bowler Court | £ 0 | 0 | 0.00 KM |
| Drayton Road | £ 297,500 | 0 | 0.00 KM |
| Proctor Lane | £ 0 | 0 | 0.00 KM |
Nearby Transport
| Name | NLC | TLC | Distance |
|---|---|---|---|
| Fratton | 5509 | FTN | 1.18 KM |
| Portsmouth And Southsea | 5537 | PMS | 2.31 KM |
| Hilsea | 5539 | HLS | 2.79 KM |
| Cosham | 5896 | CSA | 3.95 KM |
| Portsmouth Harbour | 5540 | PMH | 4.14 KM |
Nearby Listings
| Address | Price | Type | Score | Distance |
|---|---|---|---|---|
| Daulston Road, Portsmouth | £ 205,000 | BUY | 6 / 10 | 0.00 KM |
| Daulston Road, Portsmouth | £ 240,000 | BUY | 7 / 10 | 0.01 KM |
| Daulston Road, Portsmouth, Hampshire | £ 220,000 | BUY | Unknown | 0.02 KM |
| Daulston Road, Portsmouth, Hampshire | £ 145,500 | BUY | Unknown | 0.02 KM |
| Daulston Road, Portsmouth, PO1 | £ 220,000 | BUY | 6 / 10 | 0.05 KM |
Nearby Properties
| Address | Price | Distance |
|---|---|---|
| 46 Daulston Road | £ 243,100 | 0.03 KM |
| 60 Daulston Road | £ 126,995 | 0.03 KM |
| 20 Daulston Road | £ 191,250 | 0.03 KM |
| 48 Daulston Road | £ 220,000 | 0.03 KM |
| 56 Daulston Road | £ 186,500 | 0.03 KM |