TO
56 Henllan Street, Denbigh, Denbighshire, LL16 3PE
By Town & Country Property Auctions
£ 180,000
Reviews
2 out of 5 stars
Town & Country Property Auctions says ..
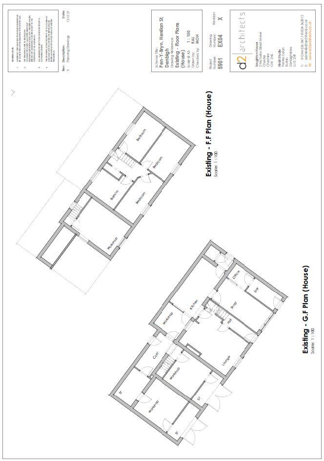
Guide Price £180000 to £210000 For sale by unconditional online auction, registration is now open. A Potential Redevelopment Site Extending To 0.11 HA Or Thereabouts, Being Located On The Outskirts Of The Historic North Wales Town Of Denbigh and Currently Comprising A Detached...
Property Oracle says ..
Therefore, we give this property 5 / 10. *Disclaimer: This is our option and does constitute a recommendation or financial advice. Do your own research. *
- Price
- 8
- Condition
- 2
- Location
- 6
- Land
- 6
- Bedrooms
- 5
- Bathrooms
- 0
The heatmap indicates the level of crime in the area. The color of the heatmap indicates the crime severity and recency.
Metrics Year-on-Year
- Average area value
- 326,418.00 £Decreased by 0.78 %
- Average area rental value
- 1,459.00 £/moIncreased by 29.46 %
- Est rental Yield
- 5.36 %Increased by 30.41 %
- Crime Rate
- 46.00 %Unchanged by 0.00 %
from 328,985.00 £
from 1,127.00 £/mo
from 4.11 %
from 46.00 %
Agent Activity
Town & Country Property Auctions created the listing.
Nearby Schools
| Name | Type | Ofsted | Distance |
|---|---|---|---|
| Denbigh High School | Welsh Establishment | 1.85 KM | |
| Ysgol Twm O'R Nant | Welsh Establishment | 1.86 KM | |
| Ysgol Frongoch | Welsh Establishment | 1.90 KM | |
| Ysgol Y Parc Infants | Welsh Establishment | 2.10 KM | |
| Ysgol Plas Brondyffryn | Welsh Establishment | 2.67 KM |
Images
Nearby Streets
| Name | Average Price | Average Sqft | Distance |
|---|---|---|---|
| Accar-y-Forwyn | £ 0 | 0 | 0.00 KM |
| Maes yr Eglwys | £ 265,000 | 0 | 0.00 KM |
| Maesglas Avenue | £ 170,000 | 0 | 0.00 KM |
| Pwll-y-Grawys | £ 0 | 0 | 0.00 KM |
| Mount Pleasant | £ 235,000 | 0 | 0.00 KM |
Nearby Listings
| Address | Price | Type | Score | Distance |
|---|---|---|---|---|
| 56 Henllan Street, Denbigh, Denbighshire, LL16 3PE | £ 180,000 | BUY | 5 / 10 | 0.00 KM |
| Accar Y Forwyn, Denbigh | £ 250,000 | BUY | 7 / 10 | 0.07 KM |
| Accar Y Forwyn, Denbigh | £ 220,000 | BUY | Unknown | 0.07 KM |
| Henllan Street, Denbigh | £ 115,000 | BUY | 5 / 10 | 0.08 KM |
| Henllan Street, Denbigh | £ 125,000 | BUY | 6 / 10 | 0.10 KM |
Nearby Properties
| Address | Price | Distance |
|---|---|---|
| 38 Accar Y Forwyn | £ 185,000 | 0.09 KM |
| 29 Accar Y Forwyn | £ 173,000 | 0.09 KM |
| 3 Accar Y Forwyn | £ 205,000 | 0.09 KM |
| 11 Accar Y Forwyn | £ 153,000 | 0.09 KM |
| 19 Accar Y Forwyn | £ 120,000 | 0.09 KM |