ST PATRICKS ROAD, LANARK
By West Homes Estate Agents
£ 180,000
Reviews
2 out of 5 stars
West Homes Estate Agents says ..
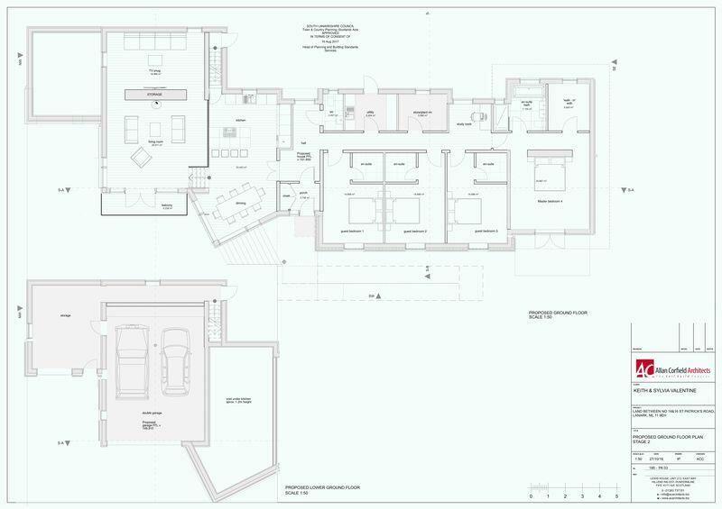
West Homes is excited to offer an extraordinary plot opportunity, featuring approved planning permission for a luxurious 4-bedroom, 4-bathroom family home.
Property Oracle says ..
This property in Lanark, South Lanarkshire, is a building plot with approved planning permission for a 4-bedroom, 4-bathroom house. The location offers proximity to the Lanark train station, making it convenient for commuters. Nearby street averages show that the property’s location is within a competitive property market. However, the property itself is currently under construction, as indicated by the images showing an undeveloped site and earthworks. The architectural designs are modern and well-planned. The list price is approximately £180,000. While the current lack of a finished property makes the evaluation difficult, the average prices of other homes in nearby streets help to suggest that the listing price may be a competitive one for the potential home that will be built on the plot. Overall, it presents a unique opportunity for buyers who are willing to manage the building process and are looking for a finished product that fits the design provided. The lack of square footage details on the plot and on the planned house make it difficult to fully assess the value proposition. Further data on schools in the area would also enhance the assessment. Once constructed, and with additional details the final assessment of this property could be much more informative
Therefore, we give this property 5 / 10. *Disclaimer: This is our option and does constitute a recommendation or financial advice. Do your own research. *
- Price
- 7
- Condition
- 3
- Location
- 7
- Land
- 6
- Bedrooms
- 4
- Bathrooms
- 4
The heatmap indicates the level of crime in the area. The color of the heatmap indicates the crime severity and recency.
Metrics Year-on-Year
- Average area value
- 166,167.00 £Decreased by 44.67 %
- Average area rental value
- 650.00 £/moDecreased by 23.08 %
- Est rental Yield
- 4.69 %Increased by 38.76 %
- Crime Rate
- 0.00 %
Agent Activity
West Homes Estate Agents created the listing.
Images
Nearby Streets
| Name | Average Price | Average Sqft | Distance |
|---|---|---|---|
| Park Drive | £ 179,000 | 0 | 0.00 KM |
| St Patrick's Court | £ 0 | 0 | 0.00 KM |
| Whitehill Terrace | £ 188,000 | 0 | 0.00 KM |
| Glasgow Road | £ 0 | 0 | 0.00 KM |
| The Berries | £ 310,000 | 0 | 0.00 KM |
Nearby Transport
| Name | NLC | TLC | Distance |
|---|---|---|---|
| Lanark | 9710 | LNK | 1.92 KM |
| Carluke | 9702 | CLU | 9.13 KM |
Nearby Listings
| Address | Price | Type | Score | Distance |
|---|---|---|---|---|
| ST PATRICKS ROAD, LANARK | £ 180,000 | BUY | 5 / 10 | 0.00 KM |
| St. Patricks Court, Lanark | £ 550,000 | BUY | 7 / 10 | 0.26 KM |
| Whitehill Crescent, Lanark, South Lanarkshire | £ 725,000 | BUY | Unknown | 0.28 KM |
| Whitehill Crescent, Lanark | £ 249,995 | BUY | Unknown | 0.29 KM |
| Whitehill Crescent, Lanark, ML11 | £ 375,000 | BUY | 7 / 10 | 0.33 KM |