Hawthorn Avenue, Bearsden

Rettie & Co says ..

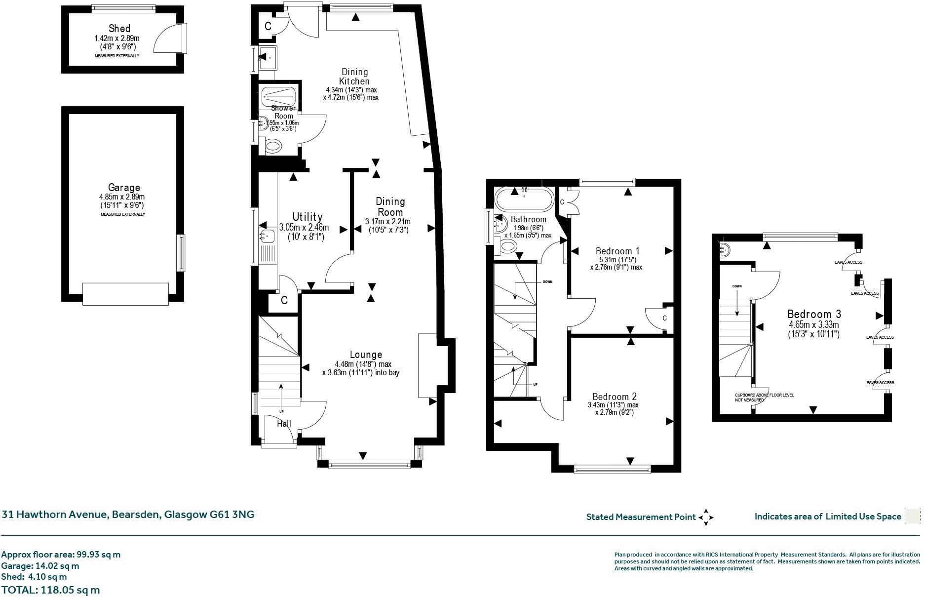
• Extended, three bedroomed semi-detached villa • Built by John MacDonald in a ‘Dutch’ style • Great location in Bearsden’s popular Burnbrae district • Three double bedrooms, large lounge/dining area, dining kitchen • Attractive back...

Property Oracle says ..

This is a three-bedroom semi-detached property located in Bearsden North. The property offers spacious accommodation, including a large living room, kitchen/dining area, and two bathrooms. The property has a garden to the rear and a driveway to the front. While the property is in reasonable condition, it would benefit from some modernisation, particularly in the kitchen and bathrooms. The property is located in a desirable residential area with good schools and amenities, and is within easy reach of Glasgow city centre. The property is priced competitively, potentially reflecting the need for some modernisation.

Therefore, we give this property 6 / 10. *Disclaimer: This is our option and does constitute a recommendation or financial advice. Do your own research. *

Price
7
Condition
6
Location
7
Land
6
Bedrooms
3
Bathrooms
2
Sqft (est)
1,270.68

The heatmap indicates the level of crime in the area. The color of the heatmap indicates the crime severity and recency.

Metrics Year-on-Year

Average area value
512,500.00 £
Increased by 58.76 %
from 322,824.00 £
Est sale value
870,415.80 £
Increased by 135.40 %
from 369,767.88 £
Average area rental value
1,100.00 £/mo
Decreased by 47.62 %
from 2,100.00 £/mo
Est letting value
1,270.68 £/mo
Unchanged by 0.00 %
from 1,270.68 £/mo
Est rental Yield
2.58 %
Decreased by 66.97 %
from 7.81 %
Crime Rate
0.00 %
from 0.00 %

Agent Activity

  • Rettie & Co created the listing.

Images

Picture 1 Picture 2 Picture 3 Picture 5 Picture 6 Picture 8 Picture 9 Pic Picture 24 Picture 26 Picture 27 Picture 29 Picture No. 32 Picture 11 Picture 12 Picture 13 Picture 14 Picture 15 Picture 16 Picture 17 Picture 18 Picture 19 Picture 20 Picture 22 Picture 23 Picture 31

Nearby Streets

NameAverage PriceAverage SqftDistance
Hazel Avenue £ 000.00 KM
Reid Avenue £ 000.00 KM
Oak Avenue £ 000.00 KM
Bears Way £ 000.00 KM
Braeside Avenue £ 258,33200.00 KM

Nearby Transport

NameNLCTLCDistance
Hillfoot9983HLF0.92 KM
Milngavie9985MLN1.53 KM
Bearsden9966BRN1.91 KM
Westerton9998WES3.15 KM
Maryhill9957MYH3.95 KM

Nearby Listings

AddressPriceTypeScoreDistance
Hawthorn Avenue, Bearsden £ 310,000BUY6 / 100.00 KM
Hawthorn Avenue, Bearsden, G61 £ 285,000BUYUnknown0.06 KM
Beech Avenue, Bearsden £ 360,000BUYUnknown0.11 KM
55 Beech Avenue, Bearsden, G61 3EU £ 395,000BUY7 / 100.12 KM
6 Beech Avenue, Bearsden, G61 3EX £ 390,000BUYUnknown0.18 KM