Stags says ..
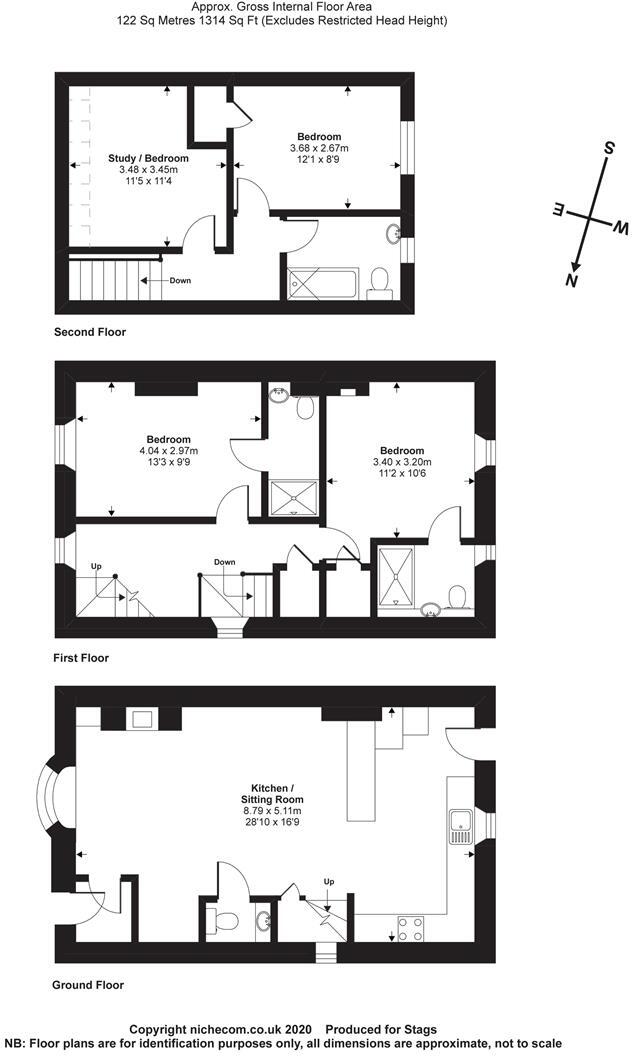
A stylishly renovated and beautifully presented, end-terrace cottage in the heart of a historic West Devon village, complete with a west-facing garden and a detached garage, all chain-free. Unique Three-storey Cottage; Three/Four Bedrooms; Three Bath/Shower Rooms; High-spec Refurbishment; Quiet V...
Property Oracle says ..
This semi-detached property in Buckland Monachorum offers a blend of traditional charm and modern convenience. The interior is well-presented, with updated bathrooms and a modern kitchen. The garden provides a pleasant outdoor space. While the price is on the higher end compared to nearby listings, the overall condition and location make it an attractive property. The proximity to a well-regarded primary school is a bonus for families with young children.
Therefore, we give this property 7 / 10. *Disclaimer: This is our option and does constitute a recommendation or financial advice. Do your own research. *
- Price
- 6
- Condition
- 8
- Location
- 7
- Land
- 7
- Bedrooms
- 4
- Bathrooms
- 3
The heatmap indicates the level of crime in the area. The color of the heatmap indicates the crime severity and recency.
Metrics Year-on-Year
- Average area value
- 293,023.00 £Increased by 0.76 %
- Average area rental value
- 1,170.00 £/moIncreased by 31.61 %
- Est rental Yield
- 4.79 %Increased by 30.52 %
- Crime Rate
- 136.00 %Unchanged by 0.00 %
Agent Activity
Stags created the listing.
Nearby Schools
| Name | Type | Ofsted | Distance |
|---|---|---|---|
| St Andrew'S Church Of England Primary School | Voluntary Aided School | Good | 0.04 KM |
| Horrabridge Primary & Nursery School | Foundation School | Outstanding | 4.42 KM |
| Whitchurch Community Primary School | Foundation School | Good | 4.66 KM |
| Tavistock College | Academy Converter | 5.82 KM | |
| Tavistock & District Children'S Centre | Children's Centre | 5.90 KM |
Images
Nearby Streets
| Name | Average Price | Average Sqft | Distance |
|---|---|---|---|
| Old Quarry Road | £ 450,000 | 0 | 0.00 KM |
| Abbey Close | £ 537,500 | 0 | 0.00 KM |
Nearby Transport
| Name | NLC | TLC | Distance |
|---|---|---|---|
| Bere Ferrers | 3550 | BFE | 7.42 KM |
| Bere Alston | 3549 | BAS | 7.78 KM |
| Calstock | 3562 | CSK | 8.67 KM |
Nearby Listings
| Address | Price | Type | Score | Distance |
|---|---|---|---|---|
| Buckland Monachorum, West Devon | £ 410,000 | BUY | 7 / 10 | 0.00 KM |
| Buckland Monachorum, Yelverton | £ 265,000 | BUY | 7 / 10 | 0.02 KM |
| Buckland Monachorum, Yelverton | £ 265,000 | BUY | 7 / 10 | 0.02 KM |
| The Village, Buckland Monachorum, PL20 7NA | £ 265,000 | BUY | 7 / 10 | 0.03 KM |
| Richmond Terrace, Buckland Monachorum, Yelverton | £ 299,950 | BUY | 7 / 10 | 0.07 KM |
Nearby Properties
| Address | Price | Distance |
|---|---|---|
| 2 Butt Park | £ 120,000 | 0.01 KM |
| 4 The Village | £ 77,000 | 0.02 KM |
| Bedford Cottage | £ 635,000 | 0.03 KM |
| 21 The Village | £ 170,000 | 0.03 KM |
| Easter Cottage | £ 145,000 | 0.03 KM |