Dover Road, Aldersbrook
By Petty Son & Prestwich Ltd
£ 880,000
Reviews
3 out of 5 stars
Petty Son & Prestwich Ltd says ..
*SOLD BY PETTY SON & PRESTWICH* Petty Son & Prestwich are delighted to offer this double bayed, three-bedroom, mid terraced home set in the sought after Aldersbrook Estate, oozing charm and character befitting its era.
Property Oracle says ..
This three-bedroom terraced house on Dover Road, Aldersbrook, offers a blend of period charm and modern convenience. Situated on the Aldersbrook Estate, known for its attractive period homes, the location benefits from good primary schooling and convenient transport links to central London. The property itself boasts period features including high ceilings and ornate cornices, which add character. The exterior is very well presented, with a neat front garden and a traditional façade. The interior has a comfortable feel, however, the current layout and finishes may require updating to appeal to the modern buyer. The kitchen and bathroom appear dated and would likely benefit from refurbishment. The property features a modest garden, providing some outdoor space. While the price of £880,000 may seem slightly high or low depending on the particular specifications of the property, its location and features could justify the cost in the current London property market. A thorough survey would be essential to fully ascertain the condition of the property and any potential costs associated with modernization.
Therefore, we give this property 6 / 10. *Disclaimer: This is our option and does constitute a recommendation or financial advice. Do your own research. *
- Price
- 7
- Condition
- 6
- Location
- 7
- Land
- 4
- Bedrooms
- 3
- Bathrooms
- 1
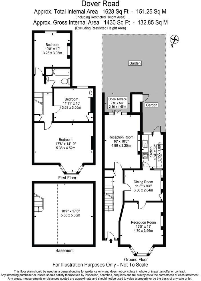
- Sqft (est)
- 1,628.04
The heatmap indicates the level of crime in the area. The color of the heatmap indicates the crime severity and recency.
Metrics Year-on-Year
- Average area value
- 787,500.00 £Decreased by 3.54 %
- Est sale value
- 1,247,078.64 £Increased by 36.79 %
- Average area rental value
- 1,657.00 £/moDecreased by 12.28 %
- Est letting value
- 1,628.04 £/moUnchanged by 0.00 %
- Est rental Yield
- 2.52 %Decreased by 9.35 %
- Crime Rate
- 5.00 %Unchanged by 0.00 %
Agent Activity
Petty Son & Prestwich Ltd marked this listing as sold.
Petty Son & Prestwich Ltd created the listing.
Nearby Schools
| Name | Type | Ofsted | Distance |
|---|---|---|---|
| Aldersbrook Children'S Centre | Children's Centre | 0.17 KM | |
| Aldersbrook Primary School | Community School | Outstanding | 0.40 KM |
| Wanstead High School | Community School | Good | 1.38 KM |
| Godwin Junior School | Community School | Good | 1.58 KM |
| Woodgrange Infant School | Community School | Good | 1.71 KM |
Images
Nearby Streets
| Name | Average Price | Average Sqft | Distance |
|---|---|---|---|
| Arran Drive | £ 0 | 0 | 0.00 KM |
| Jackson Court | £ 0 | 0 | 0.00 KM |
| The Chase | £ 350,000 | 0 | 0.00 KM |
| Warren Road | £ 1,400,000 | 0 | 0.00 KM |
| Balmoral Road | £ 220,000 | 0 | 0.00 KM |
Nearby Transport
| Name | NLC | TLC | Distance |
|---|---|---|---|
| Manor Park | 6883 | MNP | 1.52 KM |
| Woodgrange Park | 7467 | WGR | 1.73 KM |
| Wanstead Park | 7408 | WNP | 1.86 KM |
| Forest Gate | 6876 | FOG | 2.19 KM |
| Leytonstone High Road | 7403 | LER | 3.29 KM |
Nearby Listings
| Address | Price | Type | Score | Distance |
|---|---|---|---|---|
| Dover Road, Aldersbrook | £ 880,000 | BUY | 6 / 10 | 0.00 KM |
| Dover Road, Aldersbrook | £ 1,000,000 | BUY | 6 / 10 | 0.08 KM |
| Herongate Road, Aldersbrook, London, E12 | £ 950,000 | BUY | 7 / 10 | 0.08 KM |
| Herongate Road, Aldersbrook | £ 950,000 | BUY | 8 / 10 | 0.08 KM |
| Herongate Road, Aldersbrook | £ 950,000 | BUY | Unknown | 0.09 KM |
Nearby Properties
| Address | Price | Distance |
|---|---|---|
| 18 Herongate Road | £ 99,950 | 0.09 KM |
| 42 Herongate Road | £ 430,000 | 0.09 KM |
| 14 Herongate Road | £ 560,000 | 0.09 KM |
| 44 Herongate Road | £ 584,000 | 0.09 KM |
| 20 Herongate Road | £ 440,000 | 0.09 KM |