Chancellors says ..
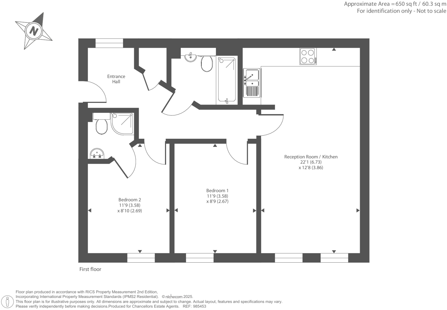
An opportunity to purchase a two double bedroom purpose apartment offering 650 sq ft of bright and spacious lateral accommodation. The property benefits from access from both Eynsham Road at the front and Cumnor Hill at the rear and is offered with a share of freehold and no forward chain.
Property Oracle says ..
This is a modern two-bedroom flat located in Botley, Oxford. The property appears to be in good condition and offers a reasonable amount of living space. The location is desirable, with good access to local amenities, schools, and transport links. While the property does have some land, it’s not particularly large. The price seems competitive for the area, making it an attractive option for potential buyers.
Therefore, we give this property 6 / 10. *Disclaimer: This is our option and does constitute a recommendation or financial advice. Do your own research. *
- Price
- 7
- Condition
- 8
- Location
- 7
- Land
- 5
- Bedrooms
- 2
- Bathrooms
- 2
- Sqft (est)
- 649.06
The heatmap indicates the level of crime in the area. The color of the heatmap indicates the crime severity and recency.
Metrics Year-on-Year
- Average area value
- 642,136.00 £Increased by 1.16 %
- Est sale value
- 305,707.26 £Increased by 3.29 %
- Average area rental value
- 1,750.00 £/moDecreased by 17.26 %
- Est letting value
- 649.06 £/moUnchanged by 0.00 %
- Est rental Yield
- 3.27 %Decreased by 18.25 %
- Crime Rate
- 5.00 %Unchanged by 0.00 %
Agent Activity
Chancellors created the listing.
Nearby Schools
| Name | Type | Ofsted | Distance |
|---|---|---|---|
| Botley School | Academy Sponsor Led | 0.68 KM | |
| Matthew Arnold School | Academy Converter | Good | 0.85 KM |
| North Hinksey Church Of England Primary School | Academy Converter | 1.96 KM | |
| West Oxford Community Primary School | Community School | Good | 3.04 KM |
| Cumnor Church Of England School (Voluntary Controlled) | Voluntary Controlled School | Good | 3.43 KM |
Images
Nearby Streets
| Name | Average Price | Average Sqft | Distance |
|---|---|---|---|
| West Way | £ 0 | 0 | 0.00 KM |
| Hope Way | £ 0 | 0 | 0.00 KM |
| West Way Square | £ 200,000 | 0 | 0.00 KM |
| Tilbury Lane | £ 0 | 0 | 0.00 KM |
| St Paul's Crescent | £ 452,500 | 0 | 0.00 KM |
Nearby Transport
| Name | NLC | TLC | Distance |
|---|---|---|---|
| Oxford | 3115 | OXF | 3.69 KM |
| Oxford Parkway | 3121 | OXP | 6.78 KM |
| Radley | 3118 | RAD | 9.97 KM |
Nearby Listings
| Address | Price | Type | Score | Distance |
|---|---|---|---|---|
| Botley, Oxford, OX2 | £ 375,000 | BUY | 6 / 10 | 0.00 KM |
| Eynsham Road, Botley, Oxford, Oxfordshire, OX2 | £ 1,150,000 | BUY | 6 / 10 | 0.09 KM |
| Eynsham Road, Botley, Oxford, Oxfordshire, OX2 | £ 435,000 | BUY | 7 / 10 | 0.11 KM |
| Cumnor Hill, Oxford, OX2 | £ 230,000 | BUY | 6 / 10 | 0.13 KM |
| Botley, Oxford, OX2 | £ 650,000 | BUY | 8 / 10 | 0.15 KM |
Nearby Properties
| Address | Price | Distance |
|---|---|---|
| 26 Eynsham Road | £ 175,000 | 0.12 KM |
| 16 Eynsham Road | £ 562,500 | 0.12 KM |
| 4 Eynsham Road | £ 480,000 | 0.12 KM |
| 40 Eynsham Road | £ 490,000 | 0.12 KM |
| 24 Eynsham Road | £ 357,000 | 0.12 KM |