Bradwell Road, New Bradwell, Milton Keynes, Buckinghamshire, MK13 0EJ
By Reynolds Estate And Letting Agents
£ 225,000
Reviews
3 out of 5 stars
Reynolds Estate And Letting Agents says ..
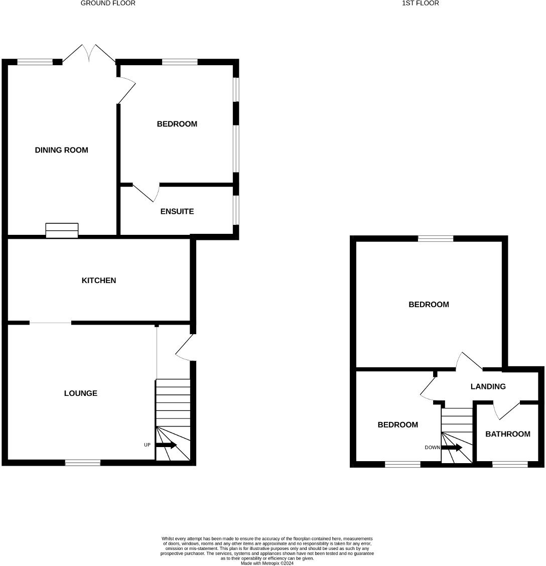
*NEW BRADWELL* *THREE BEDROOMS* *TWO BATHROOMS* *HIGH CEILINGS* *GAS CENTRAL HEATING* *UPVC DOUBLE GLAZING* *WALKING DISTANCE TO WOLVERTON STATION* * GOOD PUBLIC TRANSPORT LINKS* *CLOSE TO LOCAL AMEN...
Property Oracle says ..
This property is located in New Bradwell, Milton Keynes, an area with a mix of housing types and price points. The average house price in the area is significantly higher than the list price of this property, suggesting it may be undervalued. However, the property itself appears to be in need of some modernisation and updating, which could explain the lower price. The property has a small garden, which is a positive feature. The proximity to local schools and transportation links is also a plus. Overall, while the property requires some work, its location and potential value make it an interesting proposition.
Therefore, we give this property 6 / 10. *Disclaimer: This is our option and does constitute a recommendation or financial advice. Do your own research. *
- Price
- 8
- Condition
- 5
- Location
- 7
- Land
- 6
- Bedrooms
- 3
- Bathrooms
- 2
- Sqft (est)
- 1,280.00
The heatmap indicates the level of crime in the area. The color of the heatmap indicates the crime severity and recency.
Metrics Year-on-Year
- Average area value
- 414,375.00 £Increased by 32.13 %
- Est sale value
- 856,320.00 £Increased by 124.50 %
- Average area rental value
- 1,335.00 £/moDecreased by 2.20 %
- Est letting value
- 2,560.00 £/moIncreased by 100.00 %
- Est rental Yield
- 3.87 %Decreased by 25.86 %
- Crime Rate
- 18.00 %Unchanged by 0.00 %
Agent Activity
Reynolds Estate And Letting Agents created the listing.
Nearby Schools
| Name | Type | Ofsted | Distance |
|---|---|---|---|
| Rainbow Children'S Centre | Children's Centre | 0.38 KM | |
| Pepper Hill School | Community School | Good | 0.38 KM |
| New Bradwell Primary School | Academy Converter | 0.55 KM | |
| The Windmill Children'S Centre | Children's Centre | 0.60 KM | |
| Stanton School | Foundation School | Outstanding | 1.38 KM |
Images
Nearby Streets
| Name | Average Price | Average Sqft | Distance |
|---|---|---|---|
| Glyn Street | £ 0 | 0 | 0.00 KM |
| St Peters Way | £ 180,000 | 0 | 0.00 KM |
| Brampton Court | £ 0 | 0 | 0.00 KM |
| Townsend Grove | £ 0 | 0 | 0.00 KM |
| Fairfax | £ 250,000 | 0 | 0.00 KM |
Nearby Transport
| Name | NLC | TLC | Distance |
|---|---|---|---|
| Wolverton | 1364 | WOL | 1.75 KM |
| Milton Keynes Central | 1378 | MKC | 3.72 KM |
| Bletchley | 1360 | BLY | 9.62 KM |
Nearby Listings
| Address | Price | Type | Score | Distance |
|---|---|---|---|---|
| Bradwell Road, New Bradwell, Milton Keynes, Buckinghamshire, MK13 0EJ | £ 225,000 | BUY | 6 / 10 | 0.00 KM |
| Bradwell Road, New Bradwell, Milton Keynes, Buckinghamshire, MK13 0EJ | £ 120,000 | BUY | 4 / 10 | 0.00 KM |
| Harwood Street, New Bradwell, MK13 | £ 280,000 | BUY | 6 / 10 | 0.04 KM |
| Harwood Street, New Bradwell, MILTON KEYNES | £ 330,000 | BUY | 7 / 10 | 0.04 KM |
| Bradwell Road, New Bradwell, Milton Keynes, Buckinghamshire, MK13 0EJ | £ 185,000 | BUY | 5 / 10 | 0.05 KM |
Nearby Properties
| Address | Price | Distance |
|---|---|---|
| 13 Harwood Street | £ 129,500 | 0.04 KM |
| 17 Harwood Street | £ 152,000 | 0.04 KM |
| 1 Harwood Street | £ 220,000 | 0.04 KM |
| 3 Harwood Street | £ 122,000 | 0.04 KM |
| 19 Harwood Street | £ 155,000 | 0.04 KM |