SA
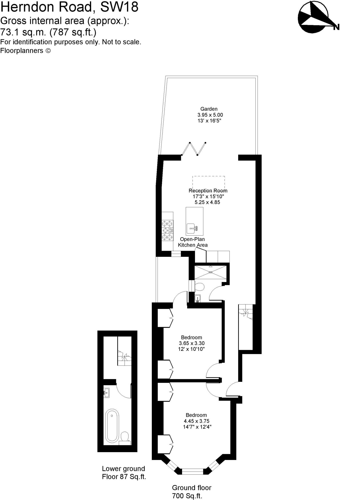
Herndon Road, Wandsworth, London, SW18
By Savills
£ 775,000
Reviews
3 out of 5 stars
Savills says ..
An attractive two bedroom, two bathroom ground floor garden flat.
Property Oracle says ..
Therefore, we give this property 7 / 10. *Disclaimer: This is our option and does constitute a recommendation or financial advice. Do your own research. *
- Price
- 6
- Condition
- 9
- Location
- 8
- Land
- 7
- Bedrooms
- 2
- Bathrooms
- 2
- Sqft (est)
- 770.79
The heatmap indicates the level of crime in the area. The color of the heatmap indicates the crime severity and recency.
Metrics Year-on-Year
- Average area value
- 538,795.00 £Decreased by 1.78 %
- Est sale value
- 469,411.11 £Increased by 2.18 %
- Average area rental value
- 2,144.00 £/moIncreased by 4.94 %
- Est letting value
- 1,541.58 £/moUnchanged by 0.00 %
- Est rental Yield
- 4.78 %Increased by 6.94 %
- Crime Rate
- 3.00 %Unchanged by 0.00 %
from 548,548.00 £
from 459,390.84 £
from 2,043.00 £/mo
from 1,541.58 £/mo
from 4.47 %
from 3.00 %
Agent Activity
Savills created the listing.
Nearby Schools
| Name | Type | Ofsted | Distance |
|---|---|---|---|
| St Anne'S Cofe Primary School | Voluntary Aided School | Good | 0.17 KM |
| St Faith'S Cofe Primary School | Voluntary Aided School | Good | 0.30 KM |
| Anglo Portuguese School Of London | Free Schools | 0.34 KM | |
| Allfarthing Primary School | Community School | Good | 0.39 KM |
| Wandsworth Preparatory School | Other Independent School | 0.47 KM |
Images
Nearby Streets
| Name | Average Price | Average Sqft | Distance |
|---|---|---|---|
| Marshall Close | £ 0 | 0 | 0.00 KM |
| Woodwell Street | £ 550,000 | 0 | 0.00 KM |
| Odyssey Way | £ 0 | 0 | 0.00 KM |
| Allfarthing Lane | £ 330,000 | 0 | 0.00 KM |
| Railway Walk | £ 0 | 0 | 0.00 KM |
Nearby Transport
| Name | NLC | TLC | Distance |
|---|---|---|---|
| Wandsworth Town | 5576 | WNT | 0.50 KM |
| Earlsfield | 5584 | EAD | 1.60 KM |
| Clapham Junction | 5595 | CLJ | 2.03 KM |
| Imperial Wharf | 9586 | IMW | 2.08 KM |
| Wandsworth Common | 5395 | WSW | 2.87 KM |
Nearby Listings
| Address | Price | Type | Score | Distance |
|---|---|---|---|---|
| Herndon Road, Wandsworth, London, SW18 | £ 775,000 | BUY | 7 / 10 | 0.00 KM |
| Herndon Road, Wandsworth, SW18 | £ 585,000 | BUY | 5 / 10 | 0.00 KM |
| Herndon Road, Wandsworth, SW18 | £ 595,000 | BUY | 6 / 10 | 0.03 KM |
| Knoll Road, London, SW18 | £ 850,000 | BUY | 8 / 10 | 0.05 KM |
| Knoll Road, SW18 | £ 400,000 | BUY | Unknown | 0.07 KM |
Nearby Properties
| Address | Price | Distance |
|---|---|---|
| 12b Herndon Road | £ 236,000 | 0.01 KM |
| 2 Herndon Road | £ 293,000 | 0.01 KM |
| 2a Herndon Road | £ 490,000 | 0.01 KM |
| 10 Herndon Road | £ 1,525,000 | 0.01 KM |
| 18a Herndon Road | £ 325,000 | 0.01 KM |