Heathview Avenue, Dartford, DA1 3QD
By James Gorey Estate Agents
£ 500,000
Reviews
3 out of 5 stars
James Gorey Estate Agents says ..
Driveway | Ground floor extension | Close to popular local schools | Amongst ample amenities | Moment away from Crayford train station | Easy access to A2 / M25 | Gas central heating system | Sold chain free | EPC: D (65) & Council Tax: D
Property Oracle says ..
Crayford, Dartford, DA1 3QD Property Report
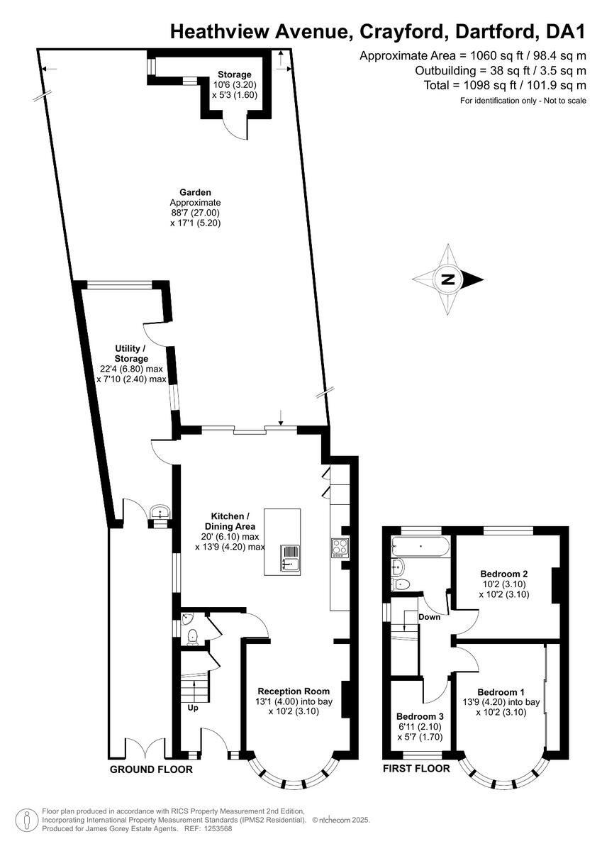
The property is a 3-bedroom, 1-bathroom house located in Crayford, Bexley. It has a total area of 2,344.22 sqft and sits on a plot of 1,098 sqft. The list price is £500,000. The average house price in the area is £330,578, with an average price per sqft of £444.
Based on the provided images, the property appears to be well-maintained and in good condition. The kitchen and bathrooms look recently updated or renovated. There is evidence of a garden, which is a desirable feature in the UK housing market. The property’s location near Crayford station offers convenient access to transportation links, including Southeastern trains for commuting to London. The proximity to schools is also a positive aspect for families.
Considering the property’s condition, the size (2,344.22 sqft), the presence of a garden, and its convenient location near transportation and schools, the asking price of £500,000 appears to be at the higher end of the market value, but potentially justifiable given the property’s apparent good condition and desirable features. However, a direct comparison to similar properties is difficult due to the lack of sqft data for nearby comparable listings. The average price per sqft in the area (£444) is significantly lower than what this property would represent at the asking price. Further investigation of comparable properties with similar sqft and features would be needed to fully assess the price’s reasonableness.
Therefore, we give this property 7 / 10. *Disclaimer: This is our option and does constitute a recommendation or financial advice. Do your own research. *
- Price
- 7
- Condition
- 9
- Location
- 8
- Land
- 7
- Bedrooms
- 3
- Bathrooms
- 1
- Sqft (est)
- 2,344.22
- Lot (est)
- 1,098.00
The heatmap indicates the level of crime in the area. The color of the heatmap indicates the crime severity and recency.
Metrics Year-on-Year
- Average area value
- 470,000.00 £Increased by 39.04 %
- Est sale value
- 1,073,652.76 £Increased by 8.79 %
- Average area rental value
- 1,288.00 £/moDecreased by 14.93 %
- Est letting value
- 2,344.22 £/moUnchanged by 0.00 %
- Est rental Yield
- 3.29 %Decreased by 38.73 %
- Crime Rate
- 10.00 %Unchanged by 0.00 %
Agent Activity
James Gorey Estate Agents created the listing.
Nearby Schools
| Name | Type | Ofsted | Distance |
|---|---|---|---|
| St Paulinus Church Of England Primary School | Academy Converter | Good | 0.87 KM |
| Haberdashers' Aske'S Crayford Academy | Academy Sponsor Led | Requires improvement | 1.02 KM |
| Crayford | Children's Centre Linked Site | 1.02 KM | |
| St Joseph'S Catholic Primary School | Voluntary Aided School | Good | 1.03 KM |
| Shenstone School | Academy Special Converter | Good | 1.06 KM |
Images
Nearby Streets
| Name | Average Price | Average Sqft | Distance |
|---|---|---|---|
| Alfriston Close | £ 0 | 0 | 0.00 KM |
| Chastilian Road | £ 0 | 0 | 0.00 KM |
| Lakedale Court | £ 0 | 0 | 0.00 KM |
| Laurel Way | £ 0 | 0 | 0.00 KM |
| Oak Close | £ 240,000 | 0 | 0.00 KM |
Nearby Transport
| Name | NLC | TLC | Distance |
|---|---|---|---|
| Crayford | 5100 | CRY | 0.12 KM |
| Slade Green | 5154 | SGR | 2.64 KM |
| Barnehurst | 5089 | BNH | 2.86 KM |
| Bexley | 5093 | BXY | 3.47 KM |
| Erith | 5104 | ERH | 3.84 KM |
Nearby Listings
| Address | Price | Type | Score | Distance |
|---|---|---|---|---|
| Heathview Avenue, Dartford, DA1 3QD | £ 500,000 | BUY | 7 / 10 | 0.00 KM |
| Lower Station Road, Crayford, Dartford | £ 400,000 | BUY | 6 / 10 | 0.04 KM |
| Lower Station Road, Crayford, Kent, DA1 | £ 400,000 | BUY | Unknown | 0.04 KM |
| Heathview Avenue, Crayford, Dartford, Kent | £ 425,000 | BUY | 7 / 10 | 0.08 KM |
| Heathview Avenue, Crayford, Kent | £ 475,000 | BUY | 6 / 10 | 0.09 KM |
Nearby Properties
| Address | Price | Distance |
|---|---|---|
| Wansunt Pumping Station Cottage | £ 256,000 | 0.09 KM |
| 35 Lower Station Road | £ 210,000 | 0.09 KM |
| 22 Lower Station Road | £ 175,000 | 0.09 KM |
| 31 Lower Station Road | £ 236,000 | 0.09 KM |
| 17 Lower Station Road | £ 315,000 | 0.11 KM |