Jacobs Steel says ..
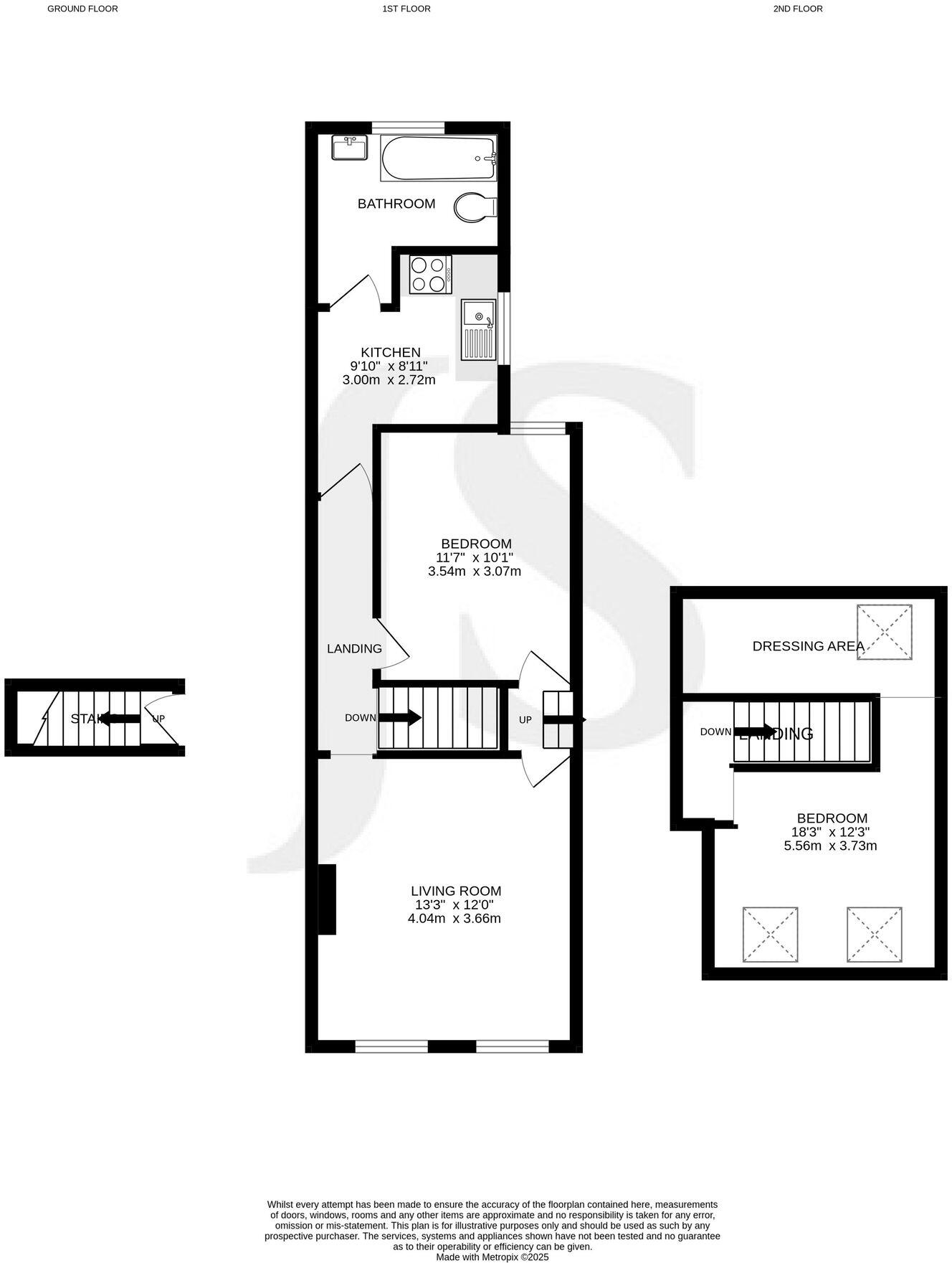
We are delighted to offer for sale this characterful and very well presented first & second floor Maisonette situated in the highly desirable West Worthing location, close to local shops, cafe's, seafront and train station. The apartment boasts one/two bedrooms, spacious living room, moder...
Property Oracle says ..
Therefore, we give this property 5 / 10. *Disclaimer: This is our option and does constitute a recommendation or financial advice. Do your own research. *
- Price
- 6
- Condition
- 8
- Location
- 7
- Land
- 1
- Bedrooms
- 2
- Bathrooms
- 1
- Sqft (est)
- 586.64
The heatmap indicates the level of crime in the area. The color of the heatmap indicates the crime severity and recency.
Metrics Year-on-Year
- Average area value
- 285,000.00 £Decreased by 9.41 %
- Est sale value
- 210,603.76 £Decreased by 3.49 %
- Average area rental value
- 1,252.00 £/moIncreased by 3.30 %
- Est letting value
- 586.64 £/moUnchanged by 0.00 %
- Est rental Yield
- 5.27 %Increased by 14.07 %
- Crime Rate
- 4.00 %Unchanged by 0.00 %
from 314,610.00 £
from 218,230.08 £
from 1,212.00 £/mo
from 586.64 £/mo
from 4.62 %
from 4.00 %
Agent Activity
Jacobs Steel created the listing.
Nearby Schools
| Name | Type | Ofsted | Distance |
|---|---|---|---|
| Elm Grove Primary School, Worthing | Community School | Good | 0.35 KM |
| Thomas A Becket Infant School | Community School | Good | 1.25 KM |
| Tarring Children And Family Centre | Children's Centre Linked Site | 1.27 KM | |
| Durrington High School | Academy Converter | Good | 1.57 KM |
| Thomas A Becket Junior School | Community School | Good | 1.59 KM |
Images
Nearby Streets
| Name | Average Price | Average Sqft | Distance |
|---|---|---|---|
| Rugby Road | £ 0 | 0 | 0.00 KM |
| High Beeches | £ 515,000 | 0 | 0.00 KM |
| Sea Place | £ 0 | 0 | 0.00 KM |
| Bath Road | £ 0 | 0 | 0.00 KM |
| Rectory Road | £ 0 | 0 | 0.00 KM |
Nearby Transport
| Name | NLC | TLC | Distance |
|---|---|---|---|
| West Worthing | 5278 | WWO | 0.65 KM |
| Durrington-On-Sea | 5282 | DUR | 1.45 KM |
| Worthing | 5279 | WRH | 2.48 KM |
| Goring-By-Sea | 5272 | GBS | 3.83 KM |
| East Worthing | 5283 | EWR | 4.86 KM |
Nearby Listings
| Address | Price | Type | Score | Distance |
|---|---|---|---|---|
| Rugby Road, Worthing, BN11 5NB | £ 240,000 | BUY | 5 / 10 | 0.00 KM |
| Rugby Road, Worthing, West Sussex, BN11 | £ 440,000 | BUY | 6 / 10 | 0.02 KM |
| Reigate Road, Worthing, BN11 5NE | £ 650,000 | BUY | 7 / 10 | 0.07 KM |
| Reigate Road, Worthing, West Sussex, BN11 | £ 565,000 | BUY | 7 / 10 | 0.08 KM |
| Reigate Road, Worthing, West Sussex, BN11 | £ 400,000 | BUY | 5 / 10 | 0.08 KM |
Nearby Properties
| Address | Price | Distance |
|---|---|---|
| 43 Rugby Road | £ 375,000 | 0.01 KM |
| 65 Rugby Road | £ 435,000 | 0.01 KM |
| 58 Rugby Road | £ 215,000 | 0.01 KM |
| 72 Rugby Road | £ 380,000 | 0.01 KM |
| 55a Rugby Road | £ 165,000 | 0.01 KM |