Lady Herbert Way, Shrewsbury, SY3 9BJ
By Floreat Living
£ 525,000
Reviews
3 out of 5 stars
Floreat Living says ..
Scandinavian-Inspired Detached Home | Stylish, Light-Filled & Energy-EfficientThis beautifully crafted home blends VAULTED CEILINGS, open-plan living, and PREMIUM FINISHES with flexible spaces, a SOUTH-FACING GARDEN, and eco-conscious design-perfect for modern, LOW-MAINTENANCE LIVING.
Property Oracle says ..
Therefore, we give this property 7 / 10. *Disclaimer: This is our option and does constitute a recommendation or financial advice. Do your own research. *
- Price
- 5
- Condition
- 9
- Location
- 8
- Land
- 7
- Bedrooms
- 3
- Bathrooms
- 0
- Sqft (est)
- 750.00
The heatmap indicates the level of crime in the area. The color of the heatmap indicates the crime severity and recency.
Metrics Year-on-Year
- Average area value
- 305,833.00 £Decreased by 15.42 %
- Est sale value
- 213,750.00 £Decreased by 25.59 %
- Average area rental value
- 1,050.00 £/moDecreased by 23.75 %
- Est letting value
- 0.00 £/moDecreased by 100.00 %
- Est rental Yield
- 4.12 %Decreased by 9.85 %
- Crime Rate
- 4.00 %Unchanged by 0.00 %
from 361,600.00 £
from 287,250.00 £
from 1,377.00 £/mo
from 750.00 £/mo
from 4.57 %
from 4.00 %
Agent Activity
Floreat Living created the listing.
Nearby Schools
| Name | Type | Ofsted | Distance |
|---|---|---|---|
| Radbrook Primary School | Academy Converter | Good | 0.35 KM |
| St George'S Junior School | Academy Converter | 1.02 KM | |
| Woodfield Infant School | Academy Converter | 1.04 KM | |
| The Priory School | Academy Converter | Outstanding | 1.16 KM |
| Meole Brace School | Academy Converter | 1.34 KM |
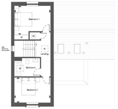
Images
Nearby Streets
| Name | Average Price | Average Sqft | Distance |
|---|---|---|---|
| Minton Court | £ 700,000 | 0 | 0.00 KM |
| St. Antony's Road | £ 262,500 | 0 | 0.00 KM |
| Newham Way | £ 0 | 0 | 0.00 KM |
| Pembroke Way | £ 210,000 | 0 | 0.00 KM |
| Moor Way | £ 0 | 0 | 0.00 KM |
Nearby Transport
| Name | NLC | TLC | Distance |
|---|---|---|---|
| Shrewsbury | 4387 | SHR | 3.36 KM |
Nearby Listings
| Address | Price | Type | Score | Distance |
|---|---|---|---|---|
| Lady Herbert Way, Shrewsbury, SY3 9BJ | £ 725,000 | BUY | 7 / 10 | 0.00 KM |
| Lady Herbert Way, Shrewsbury, SY3 9BJ | £ 775,000 | BUY | 7 / 10 | 0.00 KM |
| Lady Herbert Way, Shrewsbury, SY3 9BJ | £ 590,000 | BUY | 8 / 10 | 0.00 KM |
| Lady Herbert Way, Shrewsbury, SY3 9BJ | £ 605,000 | BUY | 6 / 10 | 0.00 KM |
| Lady Herbert Way, Shrewsbury, SY3 9BJ | £ 525,000 | BUY | 7 / 10 | 0.00 KM |
Nearby Properties
| Address | Price | Distance |
|---|---|---|
| 4 Marlpool Close | £ 95,000 | 0.12 KM |
| 7 Marlpool Close | £ 157,500 | 0.12 KM |
| 12 Marlpool Close | £ 142,000 | 0.12 KM |
| 1 Marlpool Close | £ 199,995 | 0.12 KM |
| 8 Marlpool Close | £ 154,000 | 0.12 KM |