Choices says ..
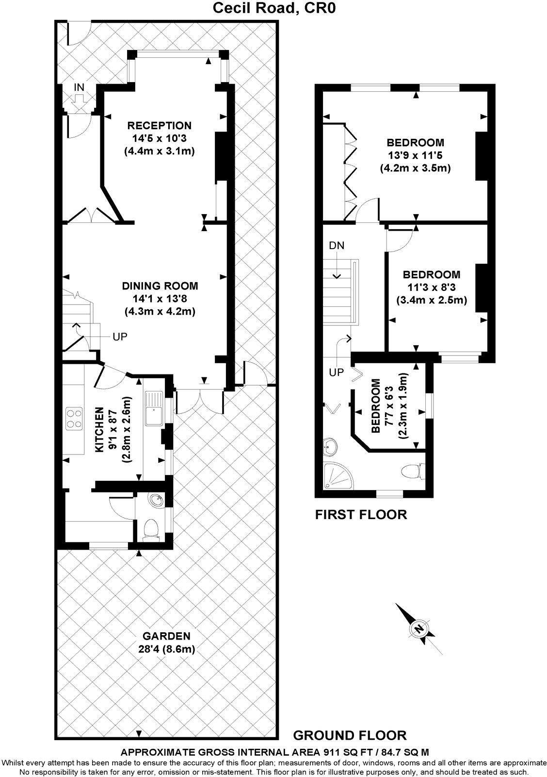
Spacious three-bedroom end of terrace family home, boasting period features and situated on the sought-after Cecil Road, Croydon. Ideally positioned on the borders of Mitcham, Croydon, and Thornton Heath, the property offers convenient access to excellent transport links, local schools, a variety...
Property Oracle says ..
This end-of-terrace property on Cecil Road, Croydon, presents a blend of potential and practicality. Its location offers proximity to schools and transportation, making it suitable for families and commuters. While the property is in fair condition, it would benefit from modernization, particularly in the kitchen and bathroom. The inclusion of a garden is a notable asset. The asking price of £400,000 appears reasonable given the local market and property characteristics, though renovation costs should be considered. Overall, this property offers a solid foundation with opportunities for improvement and personalization.
Therefore, we give this property 6 / 10. *Disclaimer: This is our option and does constitute a recommendation or financial advice. Do your own research. *
- Price
- 7
- Condition
- 6
- Location
- 7
- Land
- 7
- Bedrooms
- 3
- Bathrooms
- 1
- Sqft (est)
- 586.05
The heatmap indicates the level of crime in the area. The color of the heatmap indicates the crime severity and recency.
Metrics Year-on-Year
- Average area value
- 1,268,750.00 £Increased by 29.81 %
- Est sale value
- 928,889.25 £Increased by 115.35 %
- Average area rental value
- 2,317.00 £/moIncreased by 19.00 %
- Est letting value
- 1,172.10 £/moIncreased by 100.00 %
- Est rental Yield
- 2.19 %Decreased by 8.37 %
- Crime Rate
- 5.00 %Unchanged by 0.00 %
Agent Activity
Choices created the listing.
Nearby Schools
| Name | Type | Ofsted | Distance |
|---|---|---|---|
| West Thornton Primary School | Academy Sponsor Led | 0.17 KM | |
| Peppermint Children'S Centre | Children's Centre Linked Site | 0.69 KM | |
| Broad Green Sure Start | Children's Centre Linked Site | 0.71 KM | |
| Addington Valley Academy | Free Schools Special | 0.71 KM | |
| Harris Primary Academy Croydon | Academy Sponsor Led | 0.89 KM |
Images
Nearby Streets
| Name | Average Price | Average Sqft | Distance |
|---|---|---|---|
| Drake Road | £ 0 | 0 | 0.00 KM |
| Fairmead Road | £ 0 | 0 | 0.00 KM |
| Franklin Way | £ 0 | 0 | 0.00 KM |
| Allen Road | £ 0 | 0 | 0.00 KM |
| Rosemary Close | £ 0 | 0 | 0.00 KM |
Nearby Transport
| Name | NLC | TLC | Distance |
|---|---|---|---|
| Waddon | 5392 | WDO | 2.28 KM |
| West Croydon | 5411 | WCY | 2.49 KM |
| Norbury | 5428 | NRB | 2.73 KM |
| Thornton Heath | 5388 | TTH | 2.87 KM |
| Hackbridge | 5364 | HCB | 3.52 KM |
Nearby Listings
| Address | Price | Type | Score | Distance |
|---|---|---|---|---|
| Cecil Road, Croydon, CR0 | £ 400,000 | BUY | 6 / 10 | 0.00 KM |
| Tankerton Terrace, Croydon, CR0 | £ 400,000 | BUY | 7 / 10 | 0.06 KM |
| Mitcham Road, Croydon | £ 350,000 | BUY | Unknown | 0.06 KM |
| Mitcham Road, Croydon, CR0 | £ 475,000 | BUY | 7 / 10 | 0.08 KM |
| Cecil Road, Croydon, Surrey | £ 281,000 | BUY | 7 / 10 | 0.08 KM |
Nearby Properties
| Address | Price | Distance |
|---|---|---|
| 82 Cecil Road | £ 300,000 | 0.08 KM |
| 68 Cecil Road | £ 223,500 | 0.08 KM |
| 90 Cecil Road | £ 183,000 | 0.08 KM |
| 76 Cecil Road | £ 190,000 | 0.08 KM |
| 92 Cecil Road | £ 161,500 | 0.08 KM |