Thomas Michael says ..
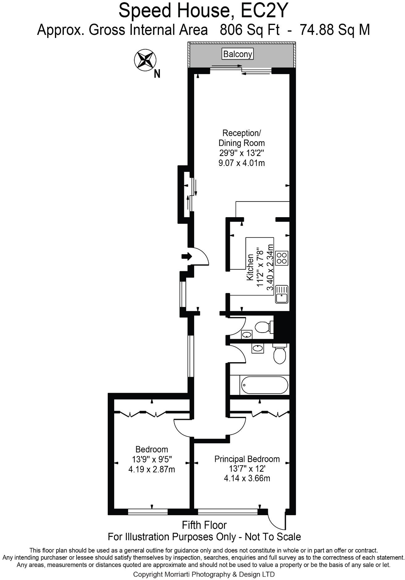
This terrific 5th floor two bedroom flat (Type 21) has a bright south facing living room with ceiling to floor glass and a sliding door leading onto a balcony overlooking Speed Gardens. Extended lease and chain free.
Property Oracle says ..
This Barbican flat benefits from a central London location, close to excellent transport links and schools. The property itself is presented in good condition, with a modern kitchen and bathroom. While the square footage is above average for the area, the lack of outdoor space is a notable drawback, especially considering the high price point. Compared to similar properties in the area, the list price is slightly above average, but not excessively so given the desirable location and modern finishes. The Barbican development is known for its unique architecture and communal green spaces, which may add value to some buyers.
Therefore, we give this property 6 / 10. *Disclaimer: This is our option and does constitute a recommendation or financial advice. Do your own research. *
- Price
- 7
- Condition
- 8
- Location
- 9
- Land
- 1
- Bedrooms
- 2
- Bathrooms
- 1
- Sqft (est)
- 806.00
The heatmap indicates the level of crime in the area. The color of the heatmap indicates the crime severity and recency.
Metrics Year-on-Year
- Average area value
- 661,667.00 £Decreased by 40.84 %
- Est sale value
- 939,796.00 £Decreased by 22.11 %
- Average area rental value
- 1,929.00 £/moDecreased by 47.65 %
- Est letting value
- 2,418.00 £/moDecreased by 25.00 %
- Est rental Yield
- 3.50 %Decreased by 11.39 %
- Crime Rate
- 4.00 %Unchanged by 0.00 %
Agent Activity
Thomas Michael created the listing.
Nearby Schools
| Name | Type | Ofsted | Distance |
|---|---|---|---|
| Guildhall School Of Music And Drama | Higher Education Institutions | 0.11 KM | |
| Golden Lane Children'S Centre | Children's Centre | 0.32 KM | |
| Prior Weston Primary School And Children'S Centre | Community School | Requires improvement | 0.33 KM |
| City Of London School For Girls | Other Independent School | 0.35 KM | |
| City Of London Primary Academy, Islington | Free Schools | Outstanding | 0.65 KM |
Images
Nearby Streets
| Name | Average Price | Average Sqft | Distance |
|---|---|---|---|
| Moorfields Highwalk | £ 775,000 | 0 | 0.00 KM |
| Andrewes Highwalk | £ 995,000 | 0 | 0.00 KM |
| Ropemaker Street | £ 0 | 0 | 0.00 KM |
| Milton Court | £ 0 | 0 | 0.00 KM |
| Wood Street | £ 0 | 0 | 0.00 KM |
Nearby Transport
| Name | NLC | TLC | Distance |
|---|---|---|---|
| Moorgate | 6005 | MOG | 0.29 KM |
| Old Street | 6003 | OLD | 0.77 KM |
| Cannon Street | 5142 | CST | 0.91 KM |
| Liverpool Street | 6965 | LST | 1.11 KM |
| City Thameslink | 5121 | CTK | 1.48 KM |
Nearby Listings
| Address | Price | Type | Score | Distance |
|---|---|---|---|---|
| Barbican, London, EC2Y | £ 995,000 | BUY | 6 / 10 | 0.00 KM |
| Barbican, Speed House | £ 899,950 | BUY | 5 / 10 | 0.01 KM |
| Brandon Mews, Barbican, London | £ 715,000 | BUY | 6 / 10 | 0.06 KM |
| Barbican, Speed House | £ 1,100,000 | BUY | 7 / 10 | 0.06 KM |
| Speed House, Barbican, London, EC2Y | £ 925,000 | BUY | 5 / 10 | 0.06 KM |
Nearby Properties
| Address | Price | Distance |
|---|---|---|
| 21 Brandon Mews | £ 499,950 | 0.06 KM |
| 16 Brandon Mews | £ 160,000 | 0.06 KM |
| 22 Brandon Mews | £ 315,000 | 0.06 KM |
| 25 Brandon Mews | £ 185,250 | 0.06 KM |
| 14 Brandon Mews | £ 380,000 | 0.06 KM |