WI
Cae Ysgawen, Brynteg, Anglesey, LL78
By Williams & Goodwin The Property People
£ 349,950
Reviews
3 out of 5 stars
Williams & Goodwin The Property People says ..
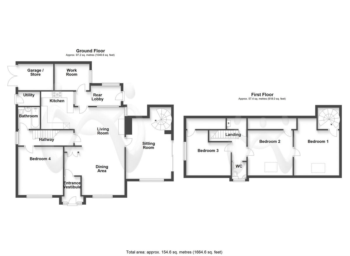
Brynteg Isle of Anglesey. Sitting in a superb spot and set back from the main road with a small green to the front is this generous four double bedroom home having been extensively renovated by the current owners to what is now a comfortable modern house
Property Oracle says ..
Therefore, we give this property 7 / 10. *Disclaimer: This is our option and does constitute a recommendation or financial advice. Do your own research. *
- Price
- 8
- Condition
- 7
- Location
- 6
- Land
- 7
- Bedrooms
- 4
- Bathrooms
- 1
- Sqft (est)
- 1,664.10
The heatmap indicates the level of crime in the area. The color of the heatmap indicates the crime severity and recency.
Metrics Year-on-Year
- Average area value
- 281,484.00 £Decreased by 31.90 %
- Est sale value
- 482,589.00 £Decreased by 8.81 %
- Average area rental value
- 725.00 £/moDecreased by 46.42 %
- Est letting value
- 0.00 £/moDecreased by 100.00 %
- Est rental Yield
- 3.09 %Decreased by 21.37 %
- Crime Rate
- 56.00 %Unchanged by 0.00 %
from 413,313.00 £
from 529,183.80 £
from 1,353.00 £/mo
from 1,664.10 £/mo
from 3.93 %
from 56.00 %
Agent Activity
Williams & Goodwin The Property People created the listing.
Nearby Schools
| Name | Type | Ofsted | Distance |
|---|---|---|---|
| Ysgol Gymuned Moelfre | Welsh Establishment | 2.90 KM | |
| Ysgol Goronwy Owen | Welsh Establishment | 3.40 KM | |
| Ysgol Gynradd Llanbedrgoch | Welsh Establishment | 3.64 KM | |
| Ysgol Gynradd Talwrn | Welsh Establishment | 5.29 KM | |
| Ysgol Gymuned Pentraeth | Welsh Establishment | 6.18 KM |
Images
Nearby Streets
| Name | Average Price | Average Sqft | Distance |
|---|---|---|---|
| Parc Delfryn | £ 0 | 0 | 0.00 KM |
| Parc Del Fryn | £ 270,000 | 0 | 0.00 KM |
| Lôn Las | £ 0 | 0 | 0.00 KM |
| Tan Y Marian Uchaf | £ 0 | 0 | 0.00 KM |
| Lôn Bryn Mair | £ 0 | 0 | 0.00 KM |
Nearby Listings
| Address | Price | Type | Score | Distance |
|---|---|---|---|---|
| Cae Ysgawen, Brynteg, Anglesey, LL78 | £ 349,950 | BUY | 7 / 10 | 0.00 KM |
| B5110, Brynteg, LL78 | £ 395,000 | BUY | 5 / 10 | 0.07 KM |
| Cae Ysgawen, Brynteg, Sir Ynys Mon, LL78 | £ 295,000 | BUY | 6 / 10 | 0.08 KM |
| Cae Ysgawen, Brynteg, Sir Ynys Mon, LL78 | £ 295,000 | BUY | Unknown | 0.08 KM |
| Cae Ysgawen, Brynteg, Sir Ynys Mon, LL78 | £ 495,000 | BUY | Unknown | 0.08 KM |
Nearby Properties
| Address | Price | Distance |
|---|---|---|
| 18 Cae Rhos | £ 168,000 | 0.13 KM |
| 5 Cae Rhos | £ 49,950 | 0.13 KM |
| 10 Cae Rhos | £ 175,000 | 0.13 KM |
| 12 Cae Rhos | £ 156,000 | 0.13 KM |
| 7 Cae Rhos | £ 170,000 | 0.13 KM |