Highland Road, Badgers Mount, TN14
By Langford Rae Chelsfield
£ 1,100,000
Reviews
4 out of 5 stars
Langford Rae Chelsfield says ..
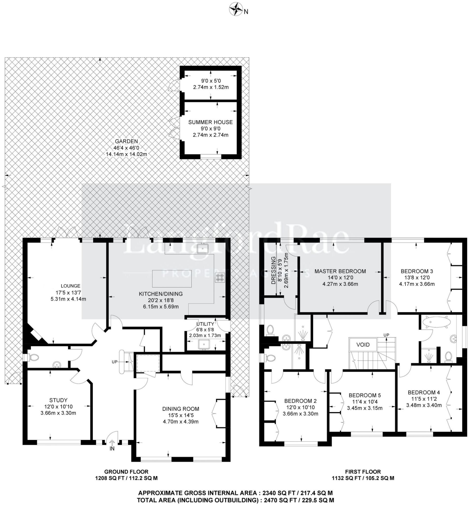
Attractive five bedroom detached family home within a mile of Knockholt train station, and positioned in Badgers Mount with direct bus links to Tonbridge and Sevenoaks secondary schools.Badgers Oak is set in a semi rural location opposite woodland and was built in 2008.
Property Oracle says ..
This property is a 5 bedroom, 3 bathroom house located in Badgers Mount, Kent. It is listed at £1,100,000 and has 3,658 sqft of living space and a 2,470 sqft plot. The property appears to be in excellent condition, with modern fixtures and fittings throughout. The location is desirable, with good access to local schools and transport links. The price seems reasonable considering the size, condition, and location of the property. The average price for properties in the area is £882,222, and the average price per sqft is £576. This property is priced at £299 per sqft, which is below average.
Therefore, we give this property 8 / 10. *Disclaimer: This is our option and does constitute a recommendation or financial advice. Do your own research. *
- Price
- 8
- Condition
- 10
- Location
- 9
- Land
- 8
- Bedrooms
- 5
- Bathrooms
- 3
- Sqft (est)
- 3,658.00
- Lot (est)
- 2,470.00
The heatmap indicates the level of crime in the area. The color of the heatmap indicates the crime severity and recency.
Metrics Year-on-Year
- Average area value
- 1,145,000.00 £Increased by 51.85 %
- Est sale value
- 2,919,084.00 £Increased by 52.58 %
- Average area rental value
- 1,717.00 £/moDecreased by 6.07 %
- Est letting value
- 3,658.00 £/moUnchanged by 0.00 %
- Est rental Yield
- 1.80 %Decreased by 38.14 %
- Crime Rate
- 11.00 %Unchanged by 0.00 %
Agent Activity
Langford Rae Chelsfield created the listing.
Nearby Schools
| Name | Type | Ofsted | Distance |
|---|---|---|---|
| Browns School | Other Independent Special School | Good | 2.57 KM |
| Chelsfield Primary School | Academy Converter | Good | 3.19 KM |
| Shoreham Village School | Community School | Good | 3.54 KM |
| Pratts Bottom Primary School | Academy Converter | Good | 3.66 KM |
| The Highway Primary School | Academy Converter | Good | 4.75 KM |
Images
Nearby Streets
| Name | Average Price | Average Sqft | Distance |
|---|---|---|---|
| Charles Road | £ 0 | 0 | 0.00 KM |
| Badgers Rise | £ 0 | 0 | 0.00 KM |
| Station Road | £ 590,000 | 0 | 0.00 KM |
Nearby Transport
| Name | NLC | TLC | Distance |
|---|---|---|---|
| Knockholt | 5109 | KCK | 2.06 KM |
| Shoreham (Kent) | 5074 | SEH | 4.66 KM |
| Chelsfield | 5098 | CLD | 4.73 KM |
| Dunton Green | 5102 | DNG | 5.18 KM |
| Otford | 5071 | OTF | 6.09 KM |
Nearby Listings
| Address | Price | Type | Score | Distance |
|---|---|---|---|---|
| Highland Road, Badgers Mount, TN14 | £ 1,100,000 | BUY | 8 / 10 | 0.00 KM |
| Highland Road, Badgers Mount, TN14 | £ 585,000 | BUY | 6 / 10 | 0.09 KM |
| Highland Road, Badgers Mount, TN14 | £ 1,050,000 | BUY | Unknown | 0.10 KM |
| Development Plot, Badgers Mount, TN14 | £ 475,000 | BUY | 6 / 10 | 0.11 KM |
| Highland Road, Badgers Mount, Sevenoaks, Kent, TN14 | £ 1,650,000 | BUY | 7 / 10 | 0.23 KM |
Nearby Properties
| Address | Price | Distance |
|---|---|---|
| Conifers | £ 875,000 | 0.11 KM |
| Abbots Dene | £ 460,500 | 0.11 KM |
| Woodview | £ 332,500 | 0.11 KM |
| Star House | £ 362,000 | 0.11 KM |
| Carderry | £ 395,000 | 0.11 KM |