12 Wenlock Way, Stourport
G

12 Wenlock Way, Stourport

By G Herbert Banks

£ 270,000

Reviews

3 out of 5 stars

G Herbert Banks says ..

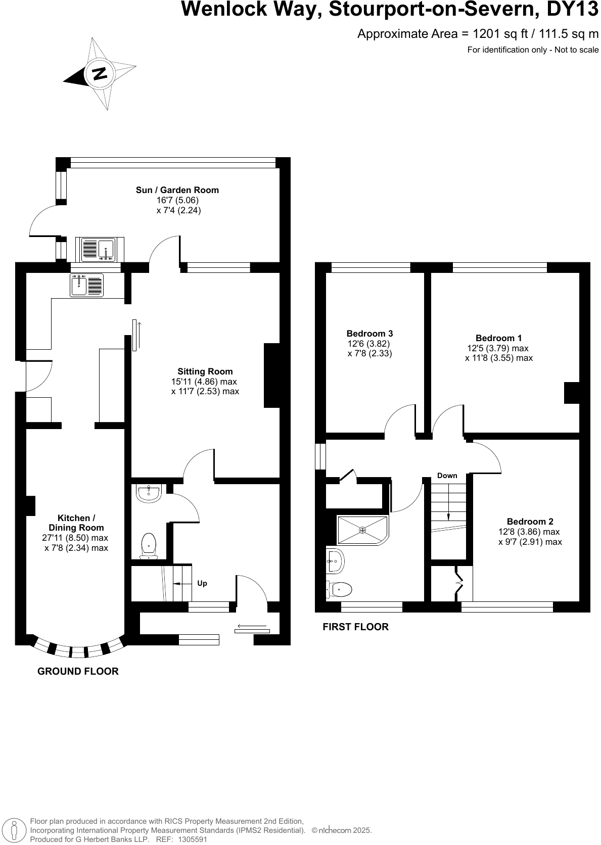
A generously proportioned semi-detached family home in a quiet and sought after cul-de-sac location, well suited to families and for those wishing to work from home. - Quiet, no through cul-de-sac - Located in the village of Arley Kings - Generous parking - Well maintained gardens - Separate di...

Property Oracle says ..

This is a three-bedroom semi-detached house in Stourport. The property offers a good amount of living space at 1,201 sqft and includes a garden. While the property is in reasonable condition, it would benefit from some modernisation. The location is convenient, with schools and amenities nearby. The asking price of £270,000 seems reasonable given the size and location of the property.

Therefore, we give this property 6 / 10. *Disclaimer: This is our option and does constitute a recommendation or financial advice. Do your own research. *

Price
7
Condition
6
Location
7
Land
7
Bedrooms
3
Bathrooms
1
Sqft (est)
1,201.00

The heatmap indicates the level of crime in the area. The color of the heatmap indicates the crime severity and recency.

Metrics Year-on-Year

Average area value
290,687.00 £
Decreased by 3.78 %
from 302,106.00 £
Est sale value
390,325.00 £
Increased by 82.58 %
from 213,778.00 £
Average area rental value
1,095.00 £/mo
Increased by 20.59 %
from 908.00 £/mo
Est letting value
1,201.00 £/mo
from 0.00 £/mo
Est rental Yield
4.52 %
Increased by 25.21 %
from 3.61 %
Crime Rate
6.00 %
Unchanged by 0.00 %
from 6.00 %

Agent Activity

  • G Herbert Banks created the listing.

Nearby Schools

NameTypeOfstedDistance
St Bartholomew'S Cofe Vc Primary SchoolAcademy ConverterGood0.41 KM
Half Crown Wood Children'S CentreChildren's Centre0.41 KM
Lickhill Primary SchoolAcademy ConverterRequires improvement1.68 KM
Stourport Primary AcademyAcademy ConverterGood1.70 KM
St Wulstan'S Catholic Primary SchoolAcademy ConverterGood1.71 KM

Images

9-1305591-1-6852a... 1305591-11-6852a4... 1305591-9-6852a3f... 1305591-17-6852a5... 1305591-18-6852a5... 1305591-19-6852a5... 1305591-14-6852a4... 1305591-15-6852a4... 1305591-20-6852a6... 1305591-16-6852a4... 1305591-5-6852a32... 1305591-6-6852a33... 1305591-4-6852a30... 1305591-7-6852a34... 1305591-8-6852a36... 1305591-2-6852a2d... 1305591-12-6852a4... 1305591-13-6852a4... 1305591-10-6852a4...

Nearby Streets

NameAverage PriceAverage SqftDistance
Windmill Bank £ 000.00 KM
Yarranton Close £ 145,00000.00 KM
Wesley Avenue £ 217,47500.00 KM
Chiltern Close £ 000.00 KM
Marlborough Drive £ 195,00000.00 KM

Nearby Transport

NameNLCTLCDistance
Hartlebury4579HBY7.91 KM
Kidderminster4581KID8.43 KM

Nearby Listings

AddressPriceTypeScoreDistance
12 Wenlock Way, Stourport £ 270,000BUY6 / 100.00 KM
Abberley Avenue, Stourport-on-Severn, Worcestershire £ 219,950BUYUnknown0.07 KM
Heightington Place, Stourport-On-Severn £ 350,000BUY6 / 100.08 KM
Heightington Place, Stourport-on-Severn, Worcestershire £ 395,000BUYUnknown0.09 KM
Heightington Place, Stourport-on-Severn, DY13 £ 350,000BUY6 / 100.09 KM

Nearby Properties

AddressPriceDistance
3 Wenlock Way £ 225,0000.01 KM
16 Wenlock Way £ 72,0000.01 KM
1 Wenlock Way £ 199,9500.01 KM
209 Abberley Avenue £ 159,9500.07 KM
201 Abberley Avenue £ 125,0000.07 KM