Cornish Road, Chipping Norton, OX7
By King and Woolley
£ 185,000
Reviews
3 out of 5 stars
King and Woolley says ..
A SPACIOUS/WELL PRESENTED TWO BEDROOM FIRST FLOOR MAISONETTE WITH PRIVATE GARDEN, LOFT STORAGE SPACE & BRICK OUTBUILDING CONVENIENTLY SITUATED ON A BUS ROUTE.
Property Oracle says ..
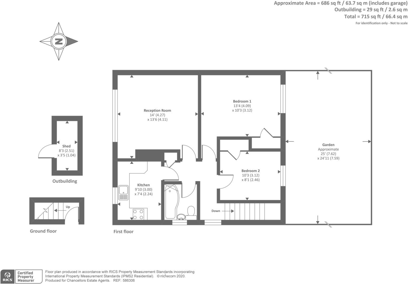
This maisonette is located in Chipping Norton, Oxfordshire, and is on the market for £185,000. The property has two bedrooms and one bathroom, and is 715 square feet in size. The average price for a property in this area is £197,829, with an average price per square foot of £272. The property benefits from a garden, which is a desirable feature. Nearby listings range in price from £158,000 to £500,000, suggesting a range of property values in the area. The property appears to be in good condition, with modern fixtures and fittings. The location is close to several schools with good Ofsted ratings, and is also within reasonable distance of several train stations. Considering the condition, location, and size of the property, the asking price of £185,000 seems reasonable, potentially even slightly below average for the area.
Therefore, we give this property 7 / 10. *Disclaimer: This is our option and does constitute a recommendation or financial advice. Do your own research. *
- Price
- 8
- Condition
- 8
- Location
- 7
- Land
- 7
- Bedrooms
- 2
- Bathrooms
- 1
- Sqft (est)
- 715.00
The heatmap indicates the level of crime in the area. The color of the heatmap indicates the crime severity and recency.
Metrics Year-on-Year
- Average area value
- 380,333.00 £Decreased by 5.70 %
- Est sale value
- 324,610.00 £Increased by 92.37 %
- Average area rental value
- 1,100.00 £/moDecreased by 9.76 %
- Est letting value
- 715.00 £/mo
- Est rental Yield
- 3.47 %Decreased by 4.41 %
- Crime Rate
- 42.00 %Unchanged by 0.00 %
Agent Activity
King and Woolley created the listing.
Nearby Schools
| Name | Type | Ofsted | Distance |
|---|---|---|---|
| St Mary'S Church Of England (Aided) Primary School, Chipping Norton | Voluntary Aided School | Good | 1.09 KM |
| The Ace Centre Nursery School | Local Authority Nursery School | Outstanding | 1.25 KM |
| Chipping Norton School | Academy Converter | Good | 1.33 KM |
| Holy Trinity Catholic School, Chipping Norton | Academy Converter | Outstanding | 2.10 KM |
| Park School | Other Independent Special School | Outstanding | 4.89 KM |
Images
Nearby Streets
| Name | Average Price | Average Sqft | Distance |
|---|---|---|---|
| Walter Craft Court | £ 450,000 | 0 | 0.00 KM |
| Marshall Close | £ 0 | 0 | 0.00 KM |
| Ellis Lane | £ 438,333 | 0 | 0.00 KM |
| Johnston's Way | £ 0 | 0 | 0.00 KM |
| Bell Yard | £ 270,000 | 0 | 0.00 KM |
Nearby Transport
| Name | NLC | TLC | Distance |
|---|---|---|---|
| Ascott-Under-Wychwood | 3003 | AUW | 7.46 KM |
| Shipton | 3009 | SIP | 8.65 KM |
| Kingham | 3008 | KGM | 8.89 KM |
| Charlbury | 3004 | CBY | 9.93 KM |
Nearby Listings
| Address | Price | Type | Score | Distance |
|---|---|---|---|---|
| Cornish Road, Chipping Norton, OX7 | £ 185,000 | BUY | 7 / 10 | 0.00 KM |
| Cornish Road, Chipping Norton, OX7 | £ 275,000 | BUY | 7 / 10 | 0.11 KM |
| Cornish Road, Chipping Norton | £ 325,000 | BUY | 6 / 10 | 0.16 KM |
| Lords Piece Road, Chipping Norton, OX7 | £ 475,000 | BUY | 7 / 10 | 0.18 KM |
| Chipping Norton, Oxfordshire, OX7 | £ 375,000 | BUY | Unknown | 0.19 KM |
Nearby Properties
| Address | Price | Distance |
|---|---|---|
| 19 Cornish Road | £ 158,000 | 0.00 KM |
| 43 Cornish Road | £ 167,500 | 0.00 KM |
| 75 Cornish Road | £ 220,000 | 0.00 KM |
| 73 Cornish Road | £ 275,000 | 0.00 KM |
| 45 Cornish Road | £ 160,000 | 0.00 KM |