Hatfield Road, Ipswich
WO

Hatfield Road, Ipswich

By Woodcock & Son

£ 395,000

Reviews

3 out of 5 stars

Woodcock & Son says ..

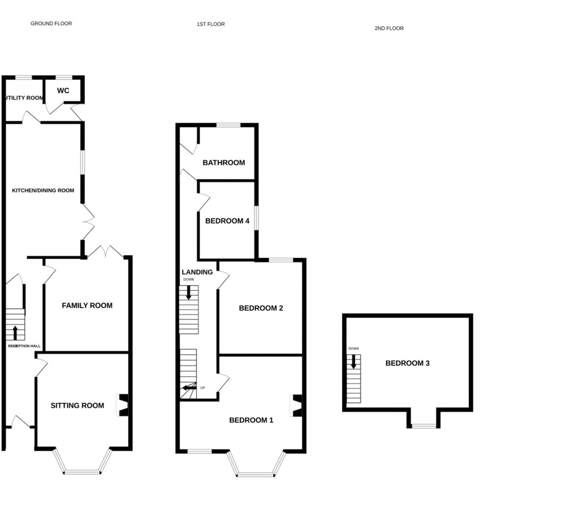
A superbly presented semi detached 4 bedroom Victorian family house in immaculate order, sensitively modernised to impeccable standard, with 2 reception rooms, impressive kitchen, cloakroom. Parking for 2 cars.

Property Oracle says ..

This property is a 4-bedroom, 1-bathroom semi-detached house located on Hatfield Road in the Priory Heath area of Ipswich, Suffolk. The property is listed at £395,000. The property appears to be in good condition, well-maintained and tastefully decorated throughout. The kitchen has been recently modernised, featuring modern appliances and ample storage. The property also benefits from a good-sized garden with a patio area, ideal for outdoor entertaining. There is also a garden shed. The location is within easy reach of local amenities, including schools and transportation links. Rose Hill Primary School is 0.32km away, and Murrayfield Primary School is 0.60km away. Derby Road train station is 0.41km away, providing convenient access to Ipswich town centre and beyond. While the square footage is not provided, the list price of £395,000 is slightly above the average price for the area (£246,500). However, considering the property’s apparent good condition, the modern kitchen, and the sizeable garden, the price may be justified. More information on the property’s square footage would allow for a more precise evaluation of the price per square foot and a definitive assessment of value.

Therefore, we give this property 7 / 10. *Disclaimer: This is our option and does constitute a recommendation or financial advice. Do your own research. *

Price
7
Condition
8
Location
7
Land
7
Bedrooms
4
Bathrooms
1

The heatmap indicates the level of crime in the area. The color of the heatmap indicates the crime severity and recency.

Metrics Year-on-Year

Average area value
255,769.00 £
Decreased by 9.91 %
from 283,905.00 £
Average area rental value
1,124.00 £/mo
Increased by 8.18 %
from 1,039.00 £/mo
Est rental Yield
5.27 %
Increased by 20.05 %
from 4.39 %
Crime Rate
8.00 %
Unchanged by 0.00 %
from 8.00 %

Agent Activity

  • Woodcock & Son marked this listing as sold.

  • Woodcock & Son created the listing.

Nearby Schools

NameTypeOfstedDistance
Rose Hill PrimaryAcademy Converter0.32 KM
Murrayfield Primary - A Paradigm AcademyAcademy Sponsor LedGood0.60 KM
East Ipswich Children'S CentreChildren's Centre0.68 KM
Clifford Road Primary School & NurseryCommunity SchoolGood1.16 KM
Britannia Primary School And NurseryAcademy Sponsor Led1.25 KM

Images

IMG-20250307-WA0007.jpg IMG-20250307-WA0000.jpg IMG-20250307-WA0020.jpg IMG-20250307-WA0001.jpg IMG-20250307-WA0015.jpg IMG-20250307-WA0018.jpg IMG-20250307-WA0021.jpg IMG-20250307-WA0022.jpg IMG-20250307-WA0002.jpg IMG-20250307-WA0010.jpg IMG-20250307-WA0009.jpg IMG-20250307-WA0019.jpg IMG-20250307-WA0003.jpg IMG-20250307-WA0013.jpg IMG-20250307-WA0014.jpg IMG-20250307-WA0012.jpg IMG-20250307-WA0005.jpg IMG-20250307-WA0004.jpg IMG-20250307-WA0006.jpg IMG-20250307-WA0008.jpg IMG-20250307-WA0016.jpg IMG-20250307-WA0017.jpg IMG-20250307-WA0011.jpg

Nearby Streets

NameAverage PriceAverage SqftDistance
Wye Road £ 295,00000.00 KM
Lee Road £ 495,00000.00 KM
Churchill Avenue £ 000.00 KM
Derby Close £ 000.00 KM
Eden Road £ 300,00000.00 KM

Nearby Transport

NameNLCTLCDistance
Derby Road (Ipswich)7212DBR0.41 KM
Ipswich7217IPS4.15 KM
Westerfield7226WFI4.18 KM

Nearby Listings

AddressPriceTypeScoreDistance
Hatfield Road, Ipswich £ 395,000BUY7 / 100.00 KM
Hatfield Road, Ipswich £ 315,000BUYUnknown0.03 KM
Hatfield Road, Ipswich £ 220,000BUYUnknown0.07 KM
Hatfield Road, Ipswich £ 180,000BUY6 / 100.09 KM
Hatfield Road, Ipswich £ 260,000BUY6 / 100.10 KM

Nearby Properties

AddressPriceDistance
210 Felixstowe Road £ 195,0000.05 KM
196 Felixstowe Road £ 200,0000.05 KM
194 Felixstowe Road £ 215,0000.05 KM
198 Felixstowe Road £ 180,0000.06 KM
208a Felixstowe Road £ 194,0000.06 KM