Edge View Crescent, Merrymans Lane, Alderley Edge
By Gascoigne Halman
£ 595,000
Reviews
4 out of 5 stars
Gascoigne Halman says ..
A well balanced and high specification home of distinction. Enjoying a favorable location within this modern gated development. Boasting a generous plot surrounded by open farmland and conveniently positioned for all amenities within Aldelerley Edge village.
Property Oracle says ..
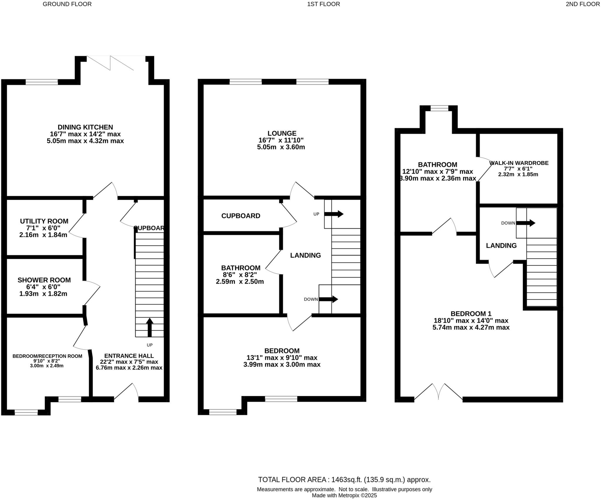
This property is a modern three bedroom end of terrace house located in Alderley Edge, Cheshire. The property benefits from a modern fitted kitchen and three modern bathrooms. There is also a good sized garden. The average house price in the area is significantly higher than the list price of this property, suggesting that it may represent good value for money. However, further information on the property’s condition and plot size would be needed to make a definitive conclusion.
Therefore, we give this property 8 / 10. *Disclaimer: This is our option and does constitute a recommendation or financial advice. Do your own research. *
- Price
- 8
- Condition
- 9
- Location
- 9
- Land
- 7
- Bedrooms
- 3
- Bathrooms
- 3
- Sqft (est)
- 1,463.00
The heatmap indicates the level of crime in the area. The color of the heatmap indicates the crime severity and recency.
Metrics Year-on-Year
- Average area value
- 607,999.00 £Decreased by 19.74 %
- Est sale value
- 623,238.00 £Decreased by 8.58 %
- Average area rental value
- 1,708.00 £/moDecreased by 59.57 %
- Est letting value
- 1,463.00 £/moDecreased by 50.00 %
- Est rental Yield
- 3.37 %Decreased by 49.63 %
- Crime Rate
- 0.00 %
Agent Activity
Gascoigne Halman marked this listing as sold.
Gascoigne Halman created the listing.
Nearby Schools
| Name | Type | Ofsted | Distance |
|---|---|---|---|
| David Lewis School | Non-maintained Special School | Good | 1.76 KM |
| The David Lewis Centre | Special Post 16 Institution | Outstanding | 1.76 KM |
| Chelford Cofe Primary School | Voluntary Controlled School | Good | 2.59 KM |
| Lindow Community Primary School | Community School | Good | 2.75 KM |
| The Ryleys School | Other Independent School | 3.18 KM |
Images
Nearby Transport
| Name | NLC | TLC | Distance |
|---|---|---|---|
| Chelford (Cheshire) | 2764 | CEL | 2.54 KM |
| Alderley Edge | 2760 | ALD | 3.97 KM |
| Wilmslow | 2774 | WML | 6.30 KM |
| Styal | 2868 | SYA | 7.20 KM |
| Mobberley | 2849 | MOB | 8.22 KM |
Nearby Listings
| Address | Price | Type | Score | Distance |
|---|---|---|---|---|
| Edge View Crescent, Merrymans Lane, Alderley Edge | £ 595,000 | BUY | 8 / 10 | 0.00 KM |
| Edge View Crescent, Merrymans Lane, Alderley Edge | £ 550,000 | BUY | 7 / 10 | 0.00 KM |
| Edge View Crescent, Merrymans Lane, Alderley Edge | £ 499,995 | BUY | 7 / 10 | 0.03 KM |
| Merrymans Lane, Alderley Edge, Cheshire, SK9 | £ 500,000 | BUY | 8 / 10 | 0.03 KM |
| Edge View Crescent, Merrymans Lane, Alderley Edge | £ 550,000 | BUY | 8 / 10 | 0.15 KM |
Nearby Properties
| Address | Price | Distance |
|---|---|---|
| Dane Villa Farm | £ 1,095,000 | 0.57 KM |
| Swan Bank | £ 770,000 | 0.57 KM |
| Manorfield | £ 425,000 | 0.57 KM |
| Beyond The Edge | £ 2,900,000 | 0.57 KM |
| Kynnersley | £ 685,000 | 0.57 KM |