eXp UK says ..
Welcome to this stunning and deceptively spacious 2-bedroom semi-detached property, a true gem ready for you to move straight in. Nestled on a generous end plot, this home boasts a convenient two-car driveway alongside the property, featuring an EV car charger. The large, flat garden at the re...
Property Oracle says ..
This property is a 2-bedroom, 2-bathroom semi-detached house located in Bedwas, Caerphilly, with a list price of £230,000. The property is modern and well-maintained, as seen in the provided images. It features a small, well-maintained garden with artificial turf and a decked area. The location is reasonably convenient, with several schools and train stations within a 2-5km radius. However, the plot size is quite small. Compared to the average price per square foot in the area (£301), this property is slightly below average at approximately £350 per sqft. The lower price may be attributed to the smaller plot size compared to other properties in the area.
Therefore, we give this property 6 / 10. *Disclaimer: This is our option and does constitute a recommendation or financial advice. Do your own research. *
- Price
- 7
- Condition
- 9
- Location
- 7
- Land
- 4
- Bedrooms
- 2
- Bathrooms
- 2
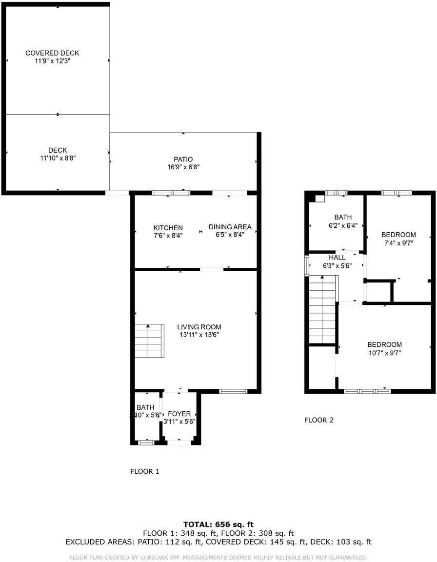
- Sqft (est)
- 656.00
The heatmap indicates the level of crime in the area. The color of the heatmap indicates the crime severity and recency.
Metrics Year-on-Year
- Average area value
- 226,667.00 £Decreased by 21.42 %
- Est sale value
- 204,672.00 £Increased by 21.88 %
- Average area rental value
- 925.00 £/moDecreased by 1.70 %
- Est letting value
- 656.00 £/mo
- Est rental Yield
- 4.90 %Increased by 25.32 %
- Crime Rate
- 8.00 %Unchanged by 0.00 %
Agent Activity
eXp UK created the listing.
Nearby Schools
| Name | Type | Ofsted | Distance |
|---|---|---|---|
| Ysgol G.G. Caerffili | Welsh Establishment | 1.50 KM | |
| Bedwas Infant School | Welsh Establishment | 1.74 KM | |
| Plasyfelin Primary | Welsh Establishment | 1.76 KM | |
| Coed-Y-Brain Primary School | Welsh Establishment | 1.84 KM | |
| Bedwas Junior School | Welsh Establishment | 1.87 KM |
Images
Nearby Streets
| Name | Average Price | Average Sqft | Distance |
|---|---|---|---|
| Stonefield Road | £ 400,000 | 0 | 0.00 KM |
| Bro Ger Y Nant | £ 0 | 0 | 0.00 KM |
| LLwybrY Coetir | £ 0 | 0 | 0.00 KM |
| Heol Ty Merchant | £ 0 | 0 | 0.00 KM |
| Clos-Y-Cedr | £ 365,000 | 0 | 0.00 KM |
Nearby Transport
| Name | NLC | TLC | Distance |
|---|---|---|---|
| Energlyn And Churchill Park | 375 | ECP | 1.96 KM |
| Llanbradach | 4018 | LNB | 2.15 KM |
| Caerphilly | 3812 | CPH | 2.61 KM |
| Aber | 3813 | ABE | 2.72 KM |
| Ystrad Mynach | 4026 | YSM | 5.86 KM |
Nearby Listings
| Address | Price | Type | Score | Distance |
|---|---|---|---|---|
| Bedwas, Caerphilly, CF83 8JT | £ 230,000 | BUY | 6 / 10 | 0.00 KM |
| Trehir Farm, Llanbradach | £ 820,000 | BUY | 7 / 10 | 0.08 KM |
| Holly Field Rise, Bedwas, CF83 | £ 400,000 | BUY | Unknown | 0.08 KM |
| Stone Field Road, Caerphilly | £ 239,950 | BUY | 7 / 10 | 0.11 KM |
| Kiln Field Drive, Bedwas, Caerphilly | £ 337,500 | BUY | Unknown | 0.12 KM |
Nearby Properties
| Address | Price | Distance |
|---|---|---|
| 5 Dan Y Deri | £ 290,000 | 0.41 KM |
| 23 Dan Y Deri | £ 62,995 | 0.41 KM |
| 9 Dan Y Deri | £ 174,950 | 0.41 KM |
| 20 Dan Y Deri | £ 225,000 | 0.41 KM |
| 2 Dan Y Deri | £ 205,000 | 0.41 KM |