CR
Saltash Road, Hainault, IG6
By Cranbrook Lettings & Sales
£ 550,000
Reviews
3 out of 5 stars
Cranbrook Lettings & Sales says ..
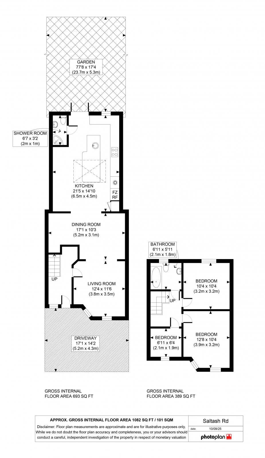
Huge Potential For Extension STP Close to Hainault Station Three Bedroom Terrace House. Sought After Location Short Distance to Fairlop Waters
Property Oracle says ..
Therefore, we give this property 6 / 10. *Disclaimer: This is our option and does constitute a recommendation or financial advice. Do your own research. *
- Price
- 6
- Condition
- 7
- Location
- 7
- Land
- 7
- Bedrooms
- 3
- Bathrooms
- 2
The heatmap indicates the level of crime in the area. The color of the heatmap indicates the crime severity and recency.
Metrics Year-on-Year
- Average area value
- 434,167.00 £Decreased by 19.75 %
- Average area rental value
- 2,458.00 £/moIncreased by 10.08 %
- Est rental Yield
- 6.79 %Increased by 37.17 %
- Crime Rate
- 10.00 %Unchanged by 0.00 %
from 541,007.00 £
from 2,233.00 £/mo
from 4.95 %
from 10.00 %
Agent Activity
Cranbrook Lettings & Sales created the listing.
Nearby Schools
| Name | Type | Ofsted | Distance |
|---|---|---|---|
| New Rush Hall School | Community Special School | Outstanding | 0.25 KM |
| Fairlop Primary School | Community School | Good | 0.72 KM |
| Limes Farm Infant School And Nursery | Academy Converter | 0.76 KM | |
| Limes Farm Junior School | Community School | Good | 0.76 KM |
| Epp5 True Stars Family Hub Delivery Site | Children's Centre Linked Site | 0.76 KM |
Images
Nearby Streets
| Name | Average Price | Average Sqft | Distance |
|---|---|---|---|
| Hughes Road | £ 462,500 | 0 | 0.00 KM |
| Southdale | £ 0 | 0 | 0.00 KM |
| Ascot Close | £ 481,250 | 0 | 0.00 KM |
| Stanwyck Drive | £ 0 | 0 | 0.00 KM |
| The Bungalows | £ 750,000 | 0 | 0.00 KM |
Nearby Transport
| Name | NLC | TLC | Distance |
|---|---|---|---|
| Seven Kings | 6893 | SVK | 4.32 KM |
| Goodmayes | 6878 | GMY | 4.80 KM |
| Ilford | 6881 | IFD | 5.08 KM |
| Chadwell Heath | 6874 | CTH | 5.97 KM |
| Barking | 7492 | BKG | 6.93 KM |
Nearby Listings
| Address | Price | Type | Score | Distance |
|---|---|---|---|---|
| Saltash Road, Hainault, IG6 | £ 550,000 | BUY | 6 / 10 | 0.00 KM |
| Saltash Road, Hainault | £ 530,000 | BUY | 7 / 10 | 0.09 KM |
| New North Road, Ilford, London, IG6 | £ 475,000 | BUY | 7 / 10 | 0.12 KM |
| Trehearn Road, Hainault | £ 500,000 | BUY | 5 / 10 | 0.17 KM |
| Trehearn Road, Ilford, IG6 | £ 525,000 | BUY | 7 / 10 | 0.20 KM |
Nearby Properties
| Address | Price | Distance |
|---|---|---|
| 4 Saltash Road | £ 250,000 | 0.00 KM |
| 29 Saltash Road | £ 425,000 | 0.00 KM |
| 11 Saltash Road | £ 440,000 | 0.00 KM |
| 9 Saltash Road | £ 245,000 | 0.00 KM |
| 36 Saltash Road | £ 250,000 | 0.00 KM |