Mill Mount Lodge, Mill Mount, York, YO24 1BG
By Hudson Moody
£ 280,000
Reviews
3 out of 5 stars
Hudson Moody says ..
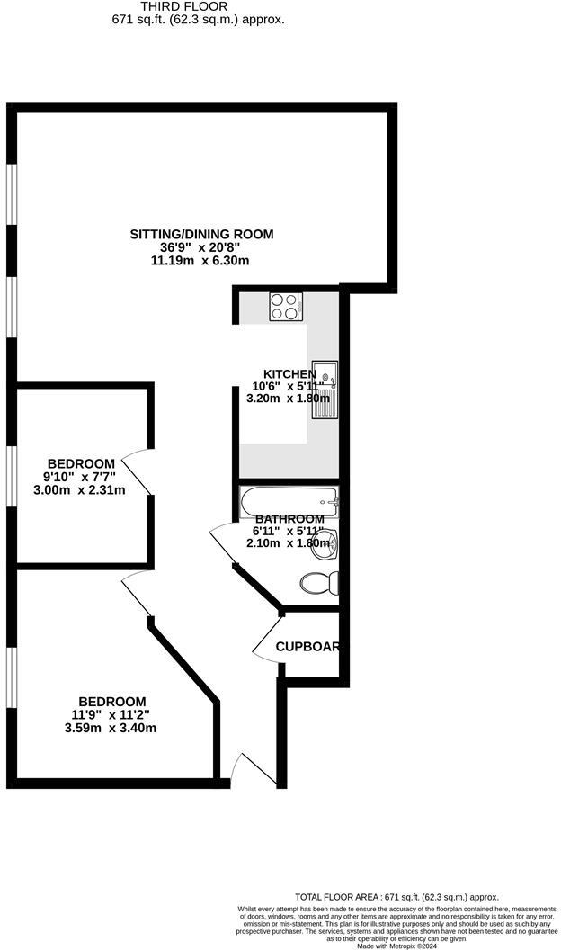
A well presented TWO DOUBLE BEDROOM APARTMENT, situated on THE MOUNT, a highly desirable area of York, within walking distance of the city centre and train station.
Property Oracle says ..
This property is a 2-bedroom apartment located in York, North Yorkshire. The apartment is in good condition and appears well-maintained based on the provided images. While the plot size is 0.00 sqft, the property benefits from access to communal garden space. The location is excellent, situated close to several schools, including The Mount School, Scarcroft Primary School and St Paul’s Church of England Primary School, all within a 1km radius. York train station is also conveniently located nearby. The list price of £280,000 is below the average price for the area (£415,447), and while the average price per sqft is higher (£426.00 vs. approximately £417.60 for this property), this is offset by the smaller size and lack of private outdoor space. Considering the location, condition, and amenities, the price appears reasonable.
Therefore, we give this property 6 / 10. *Disclaimer: This is our option and does constitute a recommendation or financial advice. Do your own research. *
- Price
- 7
- Condition
- 8
- Location
- 9
- Land
- 3
- Bedrooms
- 2
- Bathrooms
- 1
- Sqft (est)
- 670.59
The heatmap indicates the level of crime in the area. The color of the heatmap indicates the crime severity and recency.
Metrics Year-on-Year
- Average area value
- 542,496.00 £Increased by 34.28 %
- Est sale value
- 280,306.62 £Increased by 33.55 %
- Average area rental value
- 1,435.00 £/moIncreased by 6.30 %
- Est letting value
- 670.59 £/moUnchanged by 0.00 %
- Est rental Yield
- 3.17 %Decreased by 20.95 %
- Crime Rate
- 2.00 %Unchanged by 0.00 %
Agent Activity
Hudson Moody created the listing.
Nearby Schools
| Name | Type | Ofsted | Distance |
|---|---|---|---|
| The Mount School (York) | Other Independent School | 0.28 KM | |
| Scarcroft Primary School | Academy Converter | 0.58 KM | |
| St Paul'S Church Of England Voluntary Controlled Primary School | Voluntary Controlled School | Good | 0.59 KM |
| Millthorpe School | Academy Converter | Good | 0.62 KM |
| St Paul'S Nursery School | Local Authority Nursery School | Good | 0.66 KM |
Images
Nearby Streets
| Name | Average Price | Average Sqft | Distance |
|---|---|---|---|
| Knavesmire Road | £ 350,000 | 0 | 0.00 KM |
| Nunnery Lane | £ 0 | 0 | 0.00 KM |
| Loverose Street | £ 375,900 | 0 | 0.00 KM |
| Barker Lane | £ 2,950,000 | 0 | 0.00 KM |
| Riverside Lodge | £ 0 | 0 | 0.00 KM |
Nearby Transport
| Name | NLC | TLC | Distance |
|---|---|---|---|
| York | 8263 | YRK | 0.71 KM |
| Poppleton | 8254 | POP | 6.48 KM |
Nearby Listings
| Address | Price | Type | Score | Distance |
|---|---|---|---|---|
| Mill Mount Lodge, Mill Mount, York, YO24 1BG | £ 280,000 | BUY | 6 / 10 | 0.00 KM |
| Mill Mount, York | £ 450,000 | BUY | 7 / 10 | 0.01 KM |
| Mill Mount, York, North Yorkshire, YO24 | £ 240,000 | BUY | 7 / 10 | 0.03 KM |
| Mill Mount, York, YO24 | £ 750,000 | BUY | 8 / 10 | 0.05 KM |
| Kirk House, Mill Mount, York, YO24 | £ 615,000 | BUY | 8 / 10 | 0.12 KM |
Nearby Properties
| Address | Price | Distance |
|---|---|---|
| 120 The Mount | £ 150,000 | 0.13 KM |
| 132 The Mount | £ 1,132,000 | 0.13 KM |
| 124 The Mount | £ 917,500 | 0.13 KM |
| 126 The Mount | £ 900,000 | 0.13 KM |
| 122 The Mount | £ 1,150,000 | 0.13 KM |