Westbury, Shrewsbury
HO

Westbury, Shrewsbury

By Holland Broadbridge

£ 750,000

Reviews

3 out of 5 stars

Holland Broadbridge says ..

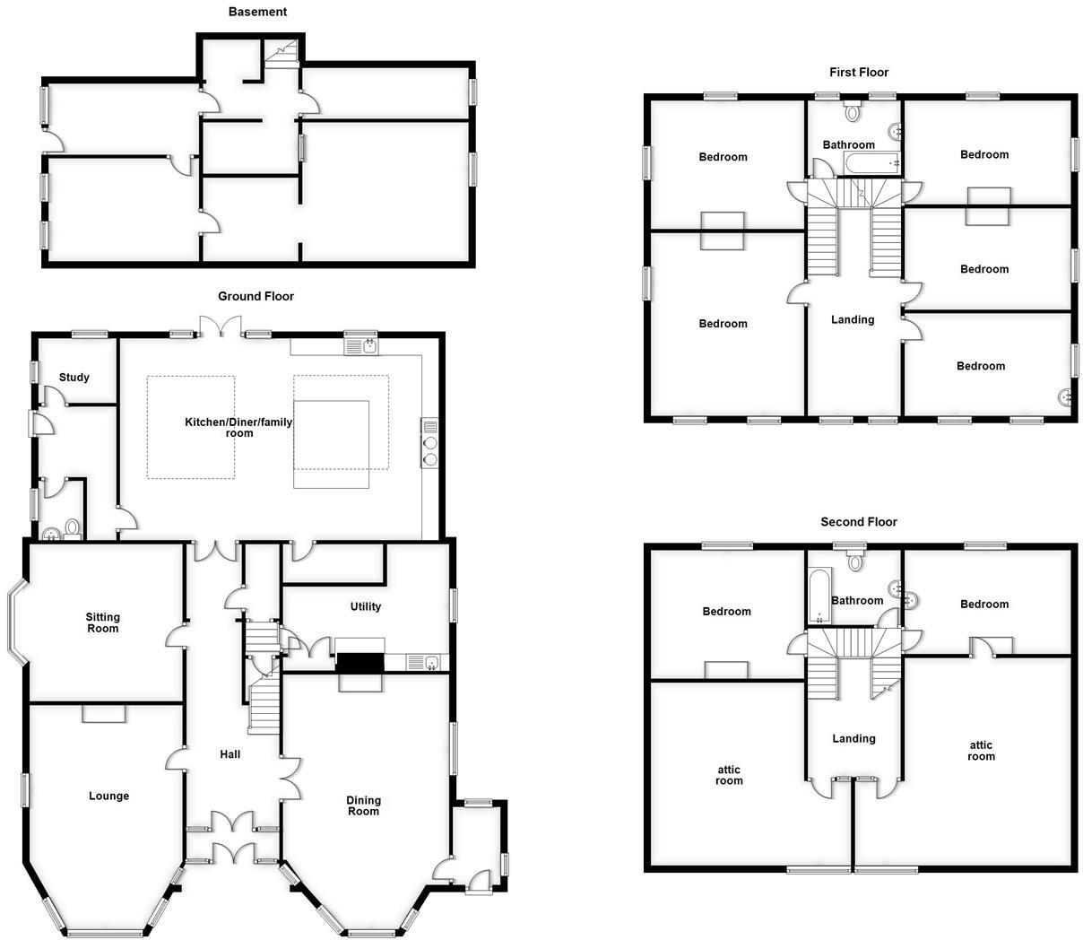
Station Lodge is a Victorian split level three storey detached house originally built as a Hotel by Wem Breweries in 1899. The property retains a wealth of period features and was tastefully extended in 2018 with a stunning open plan kitchen/dining/family living area. There is an impress...

Property Oracle says ..

This property is a large seven-bedroom house located in Westbury, Shrewsbury, Shropshire. The house appears to be in good condition, with a recently renovated kitchen. The interior shows signs of maintenance, although the style is traditional. The extensive grounds are a significant advantage. The location is rural, relatively close to Westbury School but may require a car for access to other amenities. The proximity to several schools with varying Ofsted ratings suggests a range of educational options. The average house price on nearby streets is significantly lower, suggesting that this property’s price may be at the higher end of the market for the area. Without more detailed information about the property’s square footage and the average price per square foot in the immediate vicinity, it’s difficult to definitively assess the value for money.

Therefore, we give this property 7 / 10. *Disclaimer: This is our option and does constitute a recommendation or financial advice. Do your own research. *

Price
7
Condition
8
Location
6
Land
9
Bedrooms
7
Bathrooms
2
Sqft (est)
2,000.00

The heatmap indicates the level of crime in the area. The color of the heatmap indicates the crime severity and recency.

Metrics Year-on-Year

Average area value
243,278.00 £
Decreased by 3.15 %
from 251,196.00 £
Est sale value
626,000.00 £
Increased by 28.81 %
from 486,000.00 £
Average area rental value
1,186.00 £/mo
Increased by 12.42 %
from 1,055.00 £/mo
Est letting value
2,000.00 £/mo
Unchanged by 0.00 %
from 2,000.00 £/mo
Est rental Yield
5.85 %
Increased by 16.07 %
from 5.04 %
Crime Rate
115.00 %
Unchanged by 0.00 %
from 115.00 %

Agent Activity

  • Holland Broadbridge created the listing.

Nearby Schools

NameTypeOfstedDistance
Westbury SchoolOther Independent Special School0.41 KM
Minsterley Primary SchoolCommunity SchoolGood5.65 KM
The Henslow And Evolution SchoolOther Independent Special SchoolOutstanding6.75 KM
Long Mountain Cofe Primary SchoolVoluntary Controlled SchoolGood7.45 KM
Brynhafren C.P. SchoolWelsh Establishment8.21 KM

Images

DJI_0001.JPG DJI_0005.JPG DSC_9036.JPG DSC_9025.JPG DSC_9026.JPG DSC_9022.JPG DSC_9023.JPG DSC_9024.JPG DSC_9009.JPG DSC_9029.JPG DSC_9030.JPG DSC_9031.JPG DSC_9032.JPG DSC_9033.JPG DSC_9034.JPG DSC_9035.JPG DSC_9028.JPG DSC_9019.JPG DSC_9020.JPG DSC_9027.JPG DSC_9014.JPG DSC_9015.JPG DSC_9011.JPG DSC_9007.JPG DSC_9008.JPG DSC_9017.JPG DSC_9018.JPG DSC_9012.JPG DSC_9016.JPG DSC_9037.JPG DSC_9038.JPG DJI_0002.JPG

Nearby Streets

NameAverage PriceAverage SqftDistance
The Beeches £ 425,00000.00 KM

Nearby Listings

AddressPriceTypeScoreDistance
Jubilee Mews, Westbury, Shrewsbury £ 230,000BUY6 / 100.09 KM
Jubilee Mews, Westbury, Shrewsbury, SY5 9EZ £ 230,000BUY6 / 100.09 KM
Jubilee Mews, Shrewsbury, SY5 £ 245,000BUYUnknown0.10 KM
Jubilee Mews, Westbury, Shrewsbury, SY5 9EZ £ 210,000BUY7 / 100.12 KM
Cureton Close, Westbury, Shrewsbury £ 560,000BUY7 / 100.18 KM

Nearby Properties

AddressPriceDistance
3 Jubilee Gardens £ 248,0000.10 KM
4 Jubilee Gardens £ 425,0000.10 KM
1 Jubilee Gardens £ 265,0000.10 KM
2 Jubilee Gardens £ 259,0000.10 KM
9 Jubilee Mews £ 150,0000.11 KM