Cressener Close, Hellesdon, Norwich, Norfolk, NR6
By Winkworth
£ 280,000
Reviews
3 out of 5 stars
Winkworth says ..
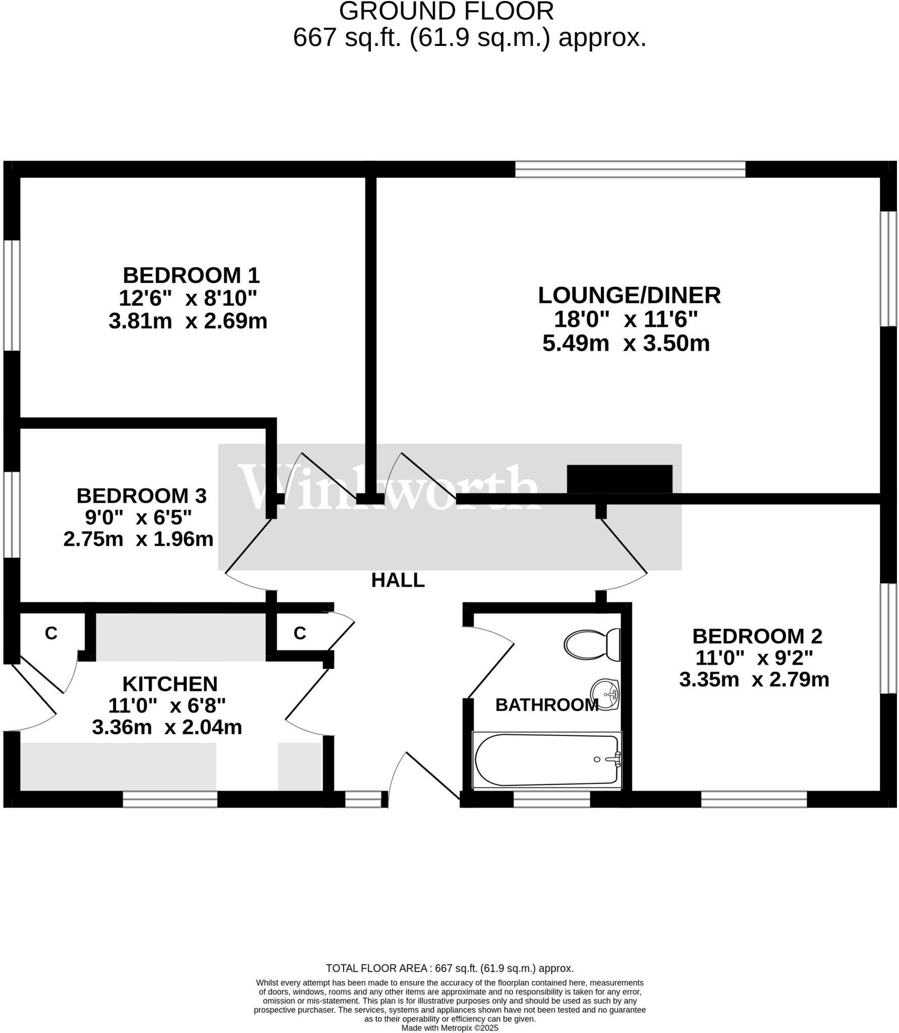
Situated on a generous and mature plot and located in a sought after cul de sac where properties seldom come up for sale is this three-bedroom detached bungalow with no onward chain. This superb property is in need of modernisation, however, with a realistic asking price and offering lots of pote...
Property Oracle says ..
This three-bedroom bungalow is situated in the Hellesdon area of Norwich. The property benefits from being close to local schools such as Hellesdon High School (0.43km) and Kinsale Infant School (0.57km), both of which received a good Ofsted rating. Norwich city centre is approximately 7km away, providing access to more amenities and transport links. The property itself is a traditional style bungalow, in need of some modernisation. The interior decor is dated, and some updates to the kitchen and bathrooms would likely improve the property’s overall appeal. The garden is a reasonable size and offers some privacy. While the property is smaller than the average for the area (575 sqft compared to 1226 sqft), the list price of £280,000 is relatively close to the average price of £346,152, considering the smaller size and need for modernisation. Nearby comparable properties range from £151,000 to £325,000, reflecting the variability in size and condition within the area.
Therefore, we give this property 6 / 10. *Disclaimer: This is our option and does constitute a recommendation or financial advice. Do your own research. *
- Price
- 6
- Condition
- 6
- Location
- 7
- Land
- 6
- Bedrooms
- 3
- Bathrooms
- 1
- Sqft (est)
- 575.39
- Lot (est)
- 667.00
The heatmap indicates the level of crime in the area. The color of the heatmap indicates the crime severity and recency.
Metrics Year-on-Year
- Average area value
- 417,969.00 £Increased by 36.61 %
- Est sale value
- 215,195.86 £Increased by 1.91 %
- Average area rental value
- 1,251.00 £/moIncreased by 48.05 %
- Est letting value
- 575.39 £/moUnchanged by 0.00 %
- Est rental Yield
- 3.59 %Increased by 8.46 %
- Crime Rate
- 6.00 %Unchanged by 0.00 %
Agent Activity
Winkworth marked this listing as sold.
Winkworth created the listing.
Nearby Schools
| Name | Type | Ofsted | Distance |
|---|---|---|---|
| Hellesdon High School | Academy Converter | Good | 0.43 KM |
| Kinsale Junior School | Academy Converter | 0.57 KM | |
| Kinsale Infant School | Community School | Good | 0.57 KM |
| Arden Grove Infant And Nursery School | Academy Converter | Outstanding | 0.76 KM |
| Firside Junior School | Academy Converter | Good | 1.63 KM |
Images
Nearby Streets
| Name | Average Price | Average Sqft | Distance |
|---|---|---|---|
| Saint Andrews Road | £ 335,000 | 0 | 0.00 KM |
| Pleasant Close | £ 240,000 | 0 | 0.00 KM |
| Oak Tree Lane | £ 0 | 0 | 0.00 KM |
| Beech Close | £ 0 | 0 | 0.00 KM |
| Shrub Lane | £ 290,000 | 0 | 0.00 KM |
Nearby Transport
| Name | NLC | TLC | Distance |
|---|---|---|---|
| Norwich | 7309 | NRW | 7.02 KM |
Nearby Listings
| Address | Price | Type | Score | Distance |
|---|---|---|---|---|
| Cressener Close, Hellesdon, Norwich, Norfolk, NR6 | £ 280,000 | BUY | 6 / 10 | 0.00 KM |
| 10 Cressener Close, Norwich, Norfolk NR6 5RF | £ 220,000 | BUY | 6 / 10 | 0.01 KM |
| Coppice Avenue, Norwich, Norfolk, NR6 | £ 260,000 | BUY | 7 / 10 | 0.06 KM |
| Coppice Avenue, Hellesdon | £ 240,000 | BUY | 7 / 10 | 0.06 KM |
| Coppice Avenue, Hellesdon, Norwich, Norfolk, NR6 | £ 300,000 | BUY | 7 / 10 | 0.06 KM |
Nearby Properties
| Address | Price | Distance |
|---|---|---|
| 9 Cressener Close | £ 250,000 | 0.02 KM |
| 12 Cressener Close | £ 151,000 | 0.02 KM |
| 31 Coppice Avenue | £ 220,000 | 0.07 KM |
| 33 Coppice Avenue | £ 210,000 | 0.07 KM |
| 25 Coppice Avenue | £ 78,000 | 0.07 KM |