Tregarthen, rare chance to create a unique home
By Mather Partnership
£ 299,950
Reviews
3 out of 5 stars
Mather Partnership says ..
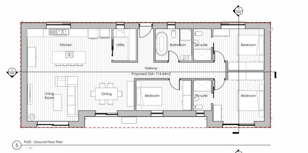
An exciting opportunity to create a bespoke single storey dwelling in a tucked away location within Tregarthen. Currently a pack house, the property benefits from planning permission to replace a previous Class Q permission with a single storey three bedroom residence. As detailed under Cornwall ...
Property Oracle says ..
This property is a barn conversion located in Cornwall. It is situated in a desirable location, with good schools and transportation links nearby. The property appears to be in good condition, with modern fixtures and fittings. It also has a decent sized garden. However, the square footage of the property is not specified, and it is difficult to determine whether the price is reasonable without more information.
Therefore, we give this property 7 / 10. *Disclaimer: This is our option and does constitute a recommendation or financial advice. Do your own research. *
- Price
- 6
- Condition
- 8
- Location
- 7
- Land
- 7
- Bedrooms
- 0
- Bathrooms
- 0
The heatmap indicates the level of crime in the area. The color of the heatmap indicates the crime severity and recency.
Metrics Year-on-Year
- Average area value
- 380,500.00 £Decreased by 7.95 %
- Average area rental value
- 1,550.00 £/moIncreased by 31.91 %
- Est rental Yield
- 4.89 %Increased by 43.40 %
- Crime Rate
- 0.00 %
Agent Activity
Mather Partnership created the listing.
Nearby Schools
| Name | Type | Ofsted | Distance |
|---|---|---|---|
| Ludgvan School | Academy Converter | Good | 2.18 KM |
| Gulval School | Academy Sponsor Led | Good | 2.81 KM |
| Marazion School | Foundation School | Good | 4.12 KM |
| St Mary'S Catholic School, Penzance | Academy Converter | Good | 4.29 KM |
| Penwith Alternative Provision Academy | Academy Alternative Provision Converter | Outstanding | 4.43 KM |
Images
Nearby Streets
| Name | Average Price | Average Sqft | Distance |
|---|---|---|---|
| St Michael's Way | £ 950,000 | 0 | 0.00 KM |
| St Michael's Way | £ 850,000 | 0 | 0.00 KM |
| Eglos Road | £ 0 | 0 | 0.00 KM |
| Poniou Lane | £ 0 | 0 | 0.00 KM |
| Castle View | £ 235,000 | 0 | 0.00 KM |
Nearby Transport
| Name | NLC | TLC | Distance |
|---|---|---|---|
| Penzance | 3526 | PNZ | 4.06 KM |
| St Erth | 3537 | SER | 7.11 KM |
| Carbis Bay | 3542 | CBB | 7.64 KM |
| Lelant Saltings | 3498 | LTS | 7.91 KM |
| St Ives (Cornwall) | 3538 | SIV | 8.17 KM |
Nearby Listings
| Address | Price | Type | Score | Distance |
|---|---|---|---|---|
| Tregarthen, rare chance to create a unique home | £ 299,950 | BUY | 7 / 10 | 0.00 KM |
| Long Rock, Penzance | £ 365,000 | BUY | 8 / 10 | 0.08 KM |
| Tregarthen, Gulval, Penzance, TR20 | £ 850,000 | BUY | 7 / 10 | 0.08 KM |
| Darlington Road, Long Rock, TR20 8JR | £ 275,000 | BUY | 5 / 10 | 0.79 KM |
| Trescoe Road, Long Rock, Penzance, Cornwall, TR20 | £ 310,000 | BUY | 6 / 10 | 0.89 KM |
Nearby Properties
| Address | Price | Distance |
|---|---|---|
| 46 Darlington Road | £ 200,000 | 0.76 KM |
| 36 Darlington Road | £ 225,000 | 0.76 KM |
| 34 Darlington Road | £ 225,000 | 0.76 KM |
| 30 Darlington Road | £ 249,995 | 0.76 KM |
| 32 Darlington Road | £ 190,000 | 0.76 KM |