Hillmorton Road, Rugby, Warwickshire CV22 5AG
By Fine & Country
£ 550,000
Reviews
3 out of 5 stars
Fine & Country says ..
A detached double fronted Victorian home, with a generous plot and a few minutes’ walk from Rugby railway station
Property Oracle says ..
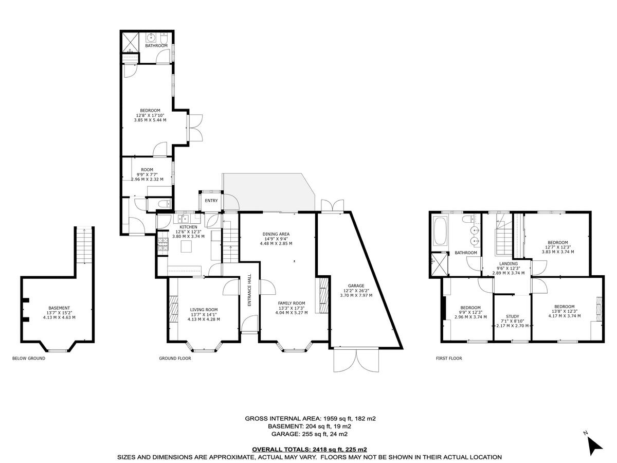
The property is located in Rugby, Warwickshire, close to good schools and transport links. It is a five-bedroom, two-bathroom detached period property with a sizeable garden. The house shows some signs of age and may benefit from modernisation in the kitchen and bathrooms, although the overall condition is good. The list price is high compared to similar properties in the area, but the garden and period features could justify a higher price.
Therefore, we give this property 7 / 10. *Disclaimer: This is our option and does constitute a recommendation or financial advice. Do your own research. *
- Price
- 6
- Condition
- 7
- Location
- 8
- Land
- 8
- Bedrooms
- 5
- Bathrooms
- 2
- Sqft (est)
- 2,418.00
The heatmap indicates the level of crime in the area. The color of the heatmap indicates the crime severity and recency.
Metrics Year-on-Year
- Average area value
- 311,000.00 £Decreased by 0.23 %
- Est sale value
- 563,394.00 £Increased by 10.43 %
- Average area rental value
- 1,156.00 £/moIncreased by 4.81 %
- Est letting value
- 0.00 £/mo
- Est rental Yield
- 4.46 %Increased by 4.94 %
- Crime Rate
- 4.00 %Unchanged by 0.00 %
Agent Activity
Fine & Country created the listing.
Nearby Schools
| Name | Type | Ofsted | Distance |
|---|---|---|---|
| Lawrence Sheriff School | Academy Converter | 0.78 KM | |
| Claremont Children'S Centre (Formerly Rugby Parents Centre) | Children's Centre | 0.81 KM | |
| St Andrew'S Benn Cofe (Voluntary Aided) Primary School | Voluntary Aided School | Good | 0.98 KM |
| Eastlands Primary School | Community School | Good | 1.10 KM |
| Northlands Primary School | Community School | Good | 1.24 KM |
Images
Nearby Streets
| Name | Average Price | Average Sqft | Distance |
|---|---|---|---|
| Willow Lane | £ 749,950 | 0 | 0.00 KM |
| Lawn Court | £ 0 | 0 | 0.00 KM |
| Barter Place | £ 0 | 0 | 0.00 KM |
| Gavel Drive | £ 0 | 0 | 0.00 KM |
| Craven Road | £ 200,000 | 0 | 0.00 KM |
Nearby Transport
| Name | NLC | TLC | Distance |
|---|---|---|---|
| Rugby | 1087 | RUG | 1.21 KM |
Nearby Listings
| Address | Price | Type | Score | Distance |
|---|---|---|---|---|
| Hillmorton Road, Rugby, Warwickshire CV22 5AG | £ 550,000 | BUY | 7 / 10 | 0.00 KM |
| Hillmorton Road, Rugby, CV22 | £ 595,000 | BUY | 6 / 10 | 0.05 KM |
| Hillmorton Road, Rugby | £ 650,000 | BUY | 7 / 10 | 0.06 KM |
| Iverley Place, Rugby | £ 289,950 | BUY | 7 / 10 | 0.08 KM |
| Hillmorton Road, Rugby, CV22 | £ 160,000 | BUY | 5 / 10 | 0.10 KM |
Nearby Properties
| Address | Price | Distance |
|---|---|---|
| 87 Hillmorton Road | £ 245,000 | 0.03 KM |
| 85 Hillmorton Road | £ 340,000 | 0.03 KM |
| 83 Hillmorton Road | £ 450,000 | 0.03 KM |
| 81 Hillmorton Road | £ 290,000 | 0.03 KM |
| 79a Hillmorton Road | £ 408,000 | 0.03 KM |