Red Street, Southfleet, Gravesend, Kent, DA13
By Key Property Consultants
£ 575,000
Reviews
3 out of 5 stars
Key Property Consultants says ..
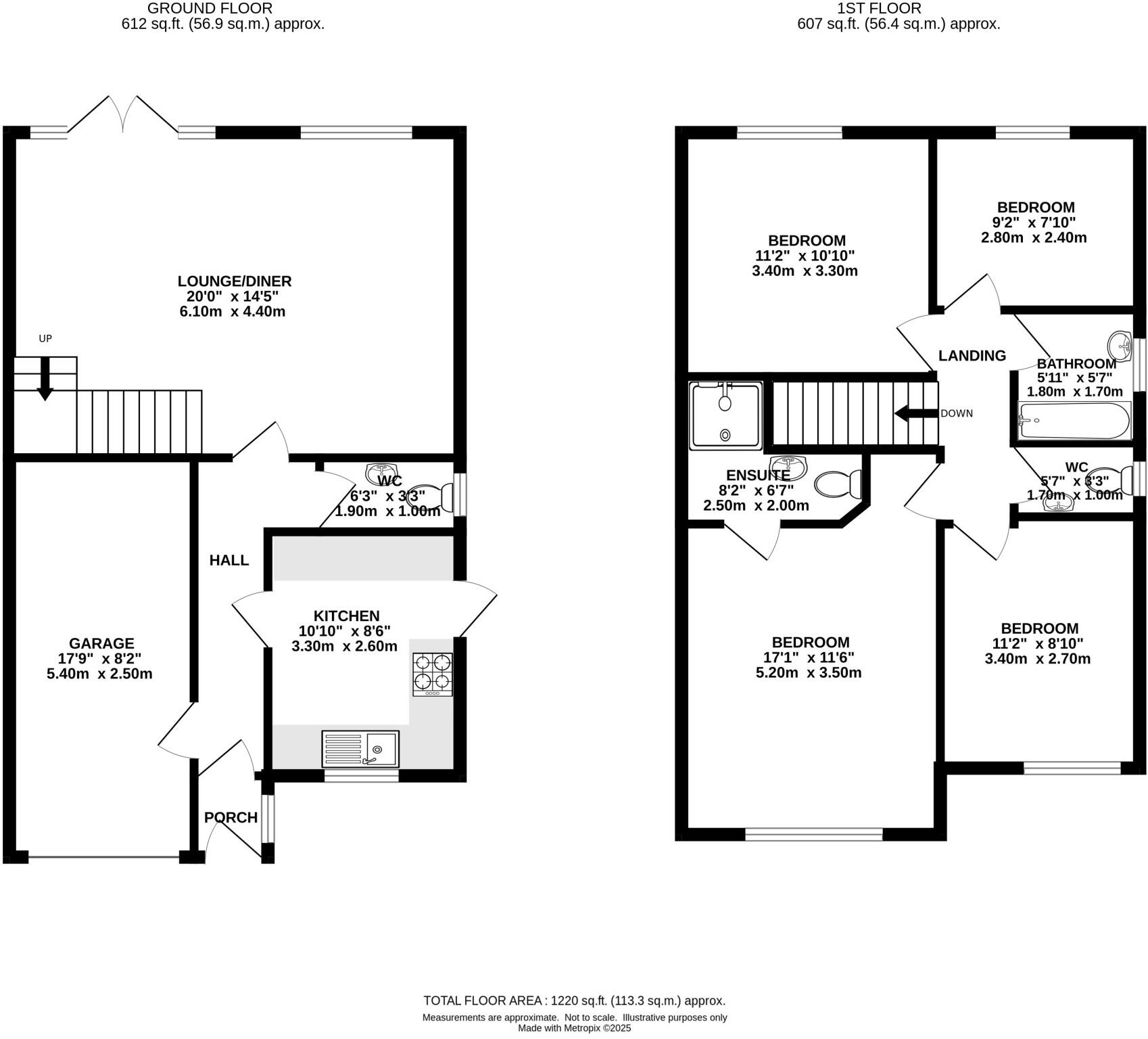
BACKING ONTO FIELDS! THIS FOUR BEDROOM SEMI DETATCHED FAMILY HOME HAS A LOUNGE/DINER, SEPARATE KITCHEN. DOWNSTAIRS CLOAKROOM. MASTER BEDROOM ENSUITE. THREE FURTHER BEDROOMS. FAMILY BATHROOM. GARDENS TO FRONT AND REAR. VIEW NOW!!
Property Oracle says ..
The property is a 4-bedroom, 2-bathroom semi-detached house located in Southfleet, Kent. It benefits from a good-sized rear garden. The house itself appears to be in reasonable condition, though some modernisation may be desirable to enhance its appeal. The location is convenient, with relatively close proximity to several primary schools rated ‘Good’ by Ofsted and several train stations providing links to London and other parts of Kent. The list price of £575,000 is slightly above the average house price in the area (£551,500), however, given the property’s size (1220 sqft) and the inclusion of a garden, the price appears relatively reasonable compared to similar properties in the area, although more data on the size of comparable properties would help to confirm this.
Therefore, we give this property 7 / 10. *Disclaimer: This is our option and does constitute a recommendation or financial advice. Do your own research. *
- Price
- 6
- Condition
- 7
- Location
- 7
- Land
- 8
- Bedrooms
- 4
- Bathrooms
- 2
- Sqft (est)
- 1,220.00
The heatmap indicates the level of crime in the area. The color of the heatmap indicates the crime severity and recency.
Metrics Year-on-Year
- Average area value
- 585,640.00 £Increased by 1.25 %
- Est sale value
- 536,800.00 £Increased by 7.58 %
- Average area rental value
- 1,663.00 £/moDecreased by 26.09 %
- Est letting value
- 1,220.00 £/moUnchanged by 0.00 %
- Est rental Yield
- 3.41 %Decreased by 26.98 %
- Crime Rate
- 0.00 %
Agent Activity
Key Property Consultants created the listing.
Nearby Schools
| Name | Type | Ofsted | Distance |
|---|---|---|---|
| Sedley'S Church Of England Voluntary Aided Primary School | Voluntary Aided School | Good | 0.51 KM |
| Rowhill School | Foundation Special School | Good | 2.08 KM |
| Langafel Church Of England Voluntary Controlled Primary School | Voluntary Controlled School | Good | 2.14 KM |
| Painters Ash Primary School | Foundation School | Good | 2.30 KM |
| Springhead Park Primary School | Free Schools | 2.42 KM |
Images
Nearby Streets
| Name | Average Price | Average Sqft | Distance |
|---|---|---|---|
| Banbury Villas | £ 370,000 | 0 | 0.00 KM |
| The Close | £ 600,000 | 0 | 0.00 KM |
| Starling Close | £ 575,000 | 0 | 0.00 KM |
| Firecrest Close | £ 0 | 0 | 0.00 KM |
| The Gables | £ 0 | 0 | 0.00 KM |
Nearby Transport
| Name | NLC | TLC | Distance |
|---|---|---|---|
| Longfield | 5114 | LGF | 2.98 KM |
| Ebbsfleet International | 5566 | EBD | 3.38 KM |
| Northfleet | 5120 | NFL | 3.71 KM |
| Swanscombe | 5156 | SWM | 4.28 KM |
| Meopham | 5116 | MEP | 4.87 KM |
Nearby Listings
| Address | Price | Type | Score | Distance |
|---|---|---|---|---|
| Red Street, Southfleet, Gravesend, Kent, DA13 | £ 550,000 | BUY | 6 / 10 | 0.00 KM |
| Red Street, Southfleet, Gravesend, Kent, DA13 | £ 575,000 | BUY | 7 / 10 | 0.00 KM |
| Red Street, Southfleet, Gravesend, Kent | £ 450,000 | BUY | 6 / 10 | 0.02 KM |
| Red Street, Southfleet, Gravesend, Kent | £ 297,500 | BUY | 6 / 10 | 0.02 KM |
| Red Street, Southfleet, Gravesend, Kent, DA13 | £ 800,000 | BUY | 7 / 10 | 0.03 KM |
Nearby Properties
| Address | Price | Distance |
|---|---|---|
| The Bungalow | £ 580,000 | 0.01 KM |
| 1 Lion Place | £ 588,490 | 0.01 KM |
| Victor Cottage | £ 227,500 | 0.02 KM |
| The Exchange | £ 200,000 | 0.05 KM |
| Ashleigh | £ 620,000 | 0.05 KM |