Jackie Stanley says ..
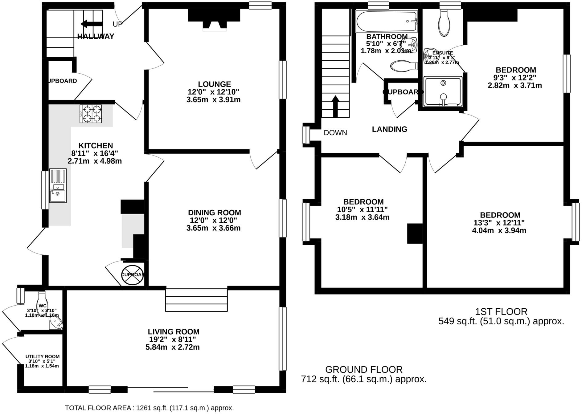
Situated less than 100 metres from the beautiful and revered sandy beach at Trevone Bay is Pengarth, a charming three bedroom detached home of fine presentation and character.
Property Oracle says ..
Therefore, we give this property 8 / 10. *Disclaimer: This is our option and does constitute a recommendation or financial advice. Do your own research. *
- Price
- 8
- Condition
- 8
- Location
- 9
- Land
- 7
- Bedrooms
- 3
- Bathrooms
- 2
- Sqft (est)
- 1,123.50
The heatmap indicates the level of crime in the area. The color of the heatmap indicates the crime severity and recency.
Metrics Year-on-Year
- Average area value
- 1,382,727.00 £Increased by 100.01 %
- Est sale value
- 914,529.00 £Increased by 36.58 %
- Average area rental value
- 1,638.00 £/moIncreased by 35.60 %
- Est letting value
- 0.00 £/moDecreased by 100.00 %
- Est rental Yield
- 1.42 %Decreased by 32.38 %
- Crime Rate
- 53.00 %Unchanged by 0.00 %
from 691,318.00 £
from 669,606.00 £
from 1,208.00 £/mo
from 1,123.50 £/mo
from 2.10 %
from 53.00 %
Agent Activity
Jackie Stanley created the listing.
Nearby Schools
| Name | Type | Ofsted | Distance |
|---|---|---|---|
| St Merryn School | Academy Converter | Good | 3.07 KM |
| Padstow School | Academy Converter | Requires improvement | 3.72 KM |
| Trevisker Primary School | Academy Converter | Good | 7.32 KM |
| St Issey Church Of England Primary School | Academy Converter | 7.55 KM | |
| St Minver School | Academy Converter | Good | 9.32 KM |
Images
Nearby Streets
| Name | Average Price | Average Sqft | Distance |
|---|---|---|---|
| The Close | £ 895,000 | 0 | 0.00 KM |
| Southway | £ 775,000 | 0 | 0.00 KM |
| Harlyn Bungalows | £ 0 | 0 | 0.00 KM |
| The Mews | £ 658,333 | 0 | 0.00 KM |
Nearby Listings
| Address | Price | Type | Score | Distance |
|---|---|---|---|---|
| Pengarth, Trevone, PL28 | £ 975,000 | BUY | 8 / 10 | 0.00 KM |
| Trevone Bay, Cornwall, PL28 | £ 1,100,000 | BUY | Unknown | 0.06 KM |
| West View, Trevone, Padstow | £ 375,000 | BUY | 6 / 10 | 0.13 KM |
| Bay Road, Trevone, PL28 | £ 1,500,000 | BUY | 8 / 10 | 0.19 KM |
| Bay Road, Trevone, PL28 | £ 1,500,000 | BUY | 8 / 10 | 0.23 KM |
Nearby Properties
| Address | Price | Distance |
|---|---|---|
| Beachside | £ 595,000 | 0.10 KM |
| Collindale | £ 490,000 | 0.10 KM |
| Morlanar | £ 667,207 | 0.10 KM |
| Coimbatoire | £ 59,995 | 0.11 KM |
| Bay House | £ 385,000 | 0.22 KM |