Eric Road, Chadwell Heath
HU

Eric Road, Chadwell Heath

By Hunters

£ 550,000

Reviews

3 out of 5 stars

Hunters says ..

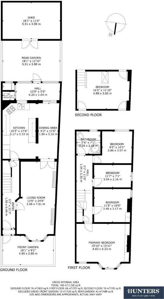
Nestled on Eric Road in the desirable area of Chadwell Heath, this impressive four-bedroom end of terrace family home offers a perfect blend of space and comfort. With two reception rooms, this property is ideal for both family living and entertaining guests. The through lounge provides a welcomi...

Property Oracle says ..

Therefore, we give this property 6 / 10. *Disclaimer: This is our option and does constitute a recommendation or financial advice. Do your own research. *

Price
7
Condition
6
Location
7
Land
5
Bedrooms
4
Bathrooms
2
Sqft (est)
2,257.30

The heatmap indicates the level of crime in the area. The color of the heatmap indicates the crime severity and recency.

Metrics Year-on-Year

Average area value
299,571.00 £
Decreased by 21.18 %
from 380,057.00 £
Est sale value
1,040,615.30 £
Decreased by 6.11 %
from 1,108,334.30 £
Average area rental value
2,530.00 £/mo
Increased by 49.44 %
from 1,693.00 £/mo
Est letting value
6,771.90 £/mo
Increased by 50.00 %
from 4,514.60 £/mo
Est rental Yield
10.13 %
Increased by 89.35 %
from 5.35 %
Crime Rate
12.00 %
Unchanged by 0.00 %
from 12.00 %

Agent Activity

  • Hunters marked this listing as sold.

  • Hunters created the listing.

Nearby Schools

NameTypeOfstedDistance
Furze Infant SchoolCommunity SchoolGood0.63 KM
Furze Children'S CentreChildren's Centre Linked Site0.70 KM
The Warren SchoolAcademy Sponsor LedGood1.03 KM
Warren Junior SchoolCommunity SchoolOutstanding1.11 KM
Henry Green Primary SchoolCommunity SchoolGood1.22 KM

Images

IMG_0706.jpg Eric-Road-05302025_124104.jpg Eric-Road-05302025_125032.jpeg Eric-Road-05302025_152013.jpeg Eric-Road-05302025_123900.jpeg Eric-Road-05302025_123933.jpg Eric-Road-05302025_124033.jpeg Eric-Road-05302025_124250.jpeg Eric-Road-05302025_124429.jpeg Eric-Road-05302025_130631.jpeg Eric-Road-05302025_131211.jpeg Eric-Road-05302025_131524.jpg Eric-Road-05302025_124352.jpeg Eric-Road-05302025_125435.jpeg Eric-Road-05302025_125954.jpeg Eric-Road-05302025_130126.jpeg Eric-Road-05302025_130252.jpg Eric-Road-05302025_152417.jpeg Eric-Road-05302025_171023.jpg IMG_0694.jpg IMG_0695.jpg IMG_0696.jpg IMG_0698.jpg IMG_0700.jpg IMG_0708.jpg Eric-Road-05302025_124757.jpeg Eric-Road-05302025_125603.jpeg Eric-Road-05302025_130333.jpeg Eric-Road-05302025_130902.jpeg Eric-Road-05302025_131243.jpeg Eric-Road-05302025_131627.jpeg Eric-Road-05302025_131805.jpeg Eric-Road-05302025_131855.jpeg Eric-Road-05302025_132051.jpeg Eric-Road-05302025_151859.jpeg Eric-Road-05302025_152229.jpeg

Nearby Streets

NameAverage PriceAverage SqftDistance
Junction Road West £ 000.00 KM
Heath Terrace, Eustace Road £ 000.00 KM
Station Road £ 000.00 KM
Chadwell Heath Lane £ 000.00 KM
The Chase £ 000.00 KM

Nearby Transport

NameNLCTLCDistance
Chadwell Heath6874CTH0.67 KM
Goodmayes6878GMY2.68 KM
Seven Kings6893SVK4.20 KM
Dagenham Dock7440DDK5.11 KM
Romford6886RMF5.41 KM

Nearby Listings

AddressPriceTypeScoreDistance
Eric Road, Chadwell Heath £ 550,000BUY6 / 100.00 KM
Cecil Road, Chadwell Heath, RM6 £ 480,000BUY7 / 100.09 KM
Eric Road, Romford, London, RM6 £ 420,000BUY4 / 100.10 KM
Kenneth Road, Chadwell Heath, RM6 £ 400,000BUYUnknown0.15 KM
Cecil Road, Chadwell Heath, RM6 £ 500,000BUY5 / 100.15 KM

Nearby Properties

AddressPriceDistance
98a Eric Road £ 170,0000.10 KM
50a Eric Road £ 240,0000.10 KM
88 Eric Road £ 67,0000.10 KM
100 Eric Road £ 156,6000.10 KM
66 Eric Road £ 425,0000.10 KM