Martin & Co says ..
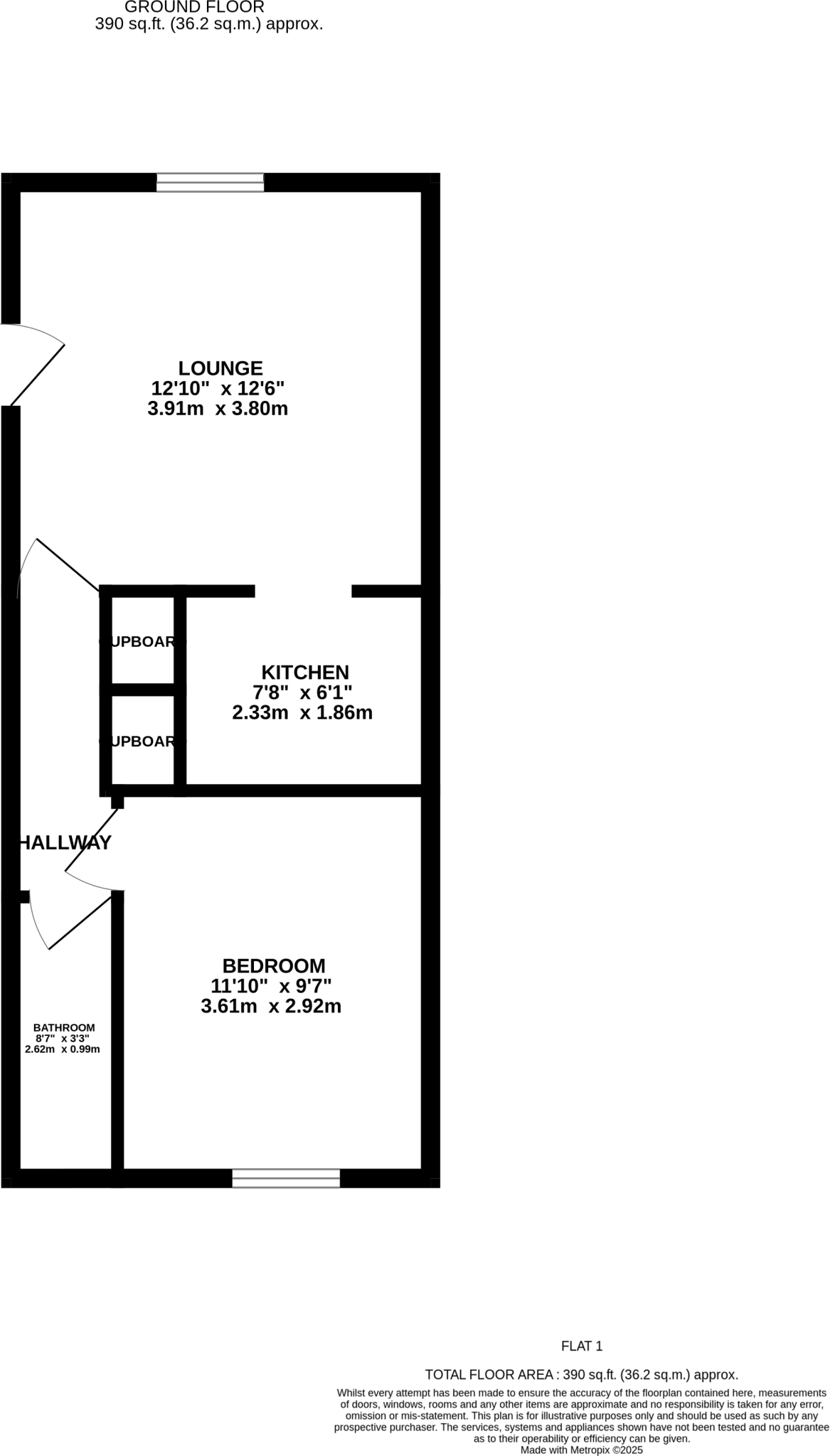
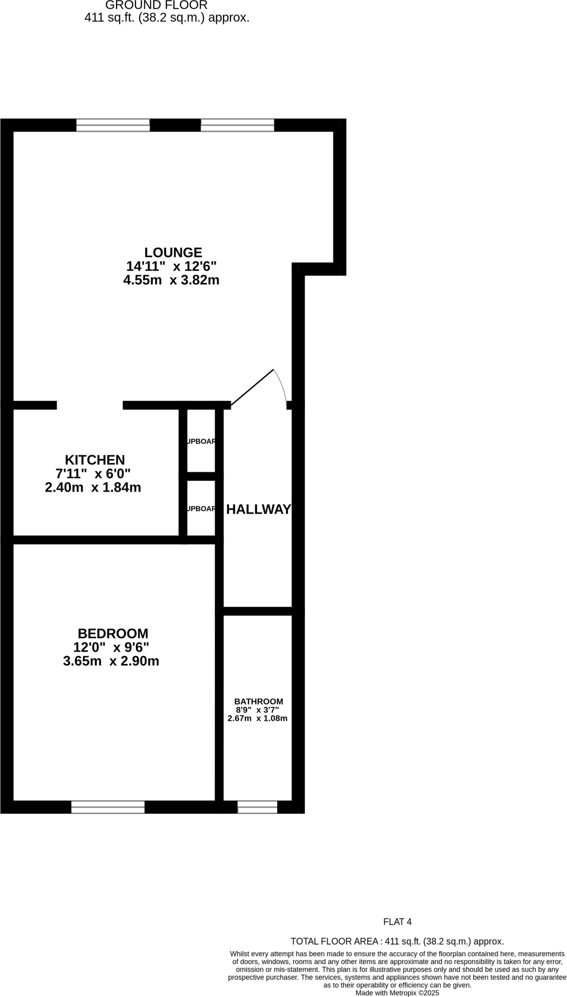
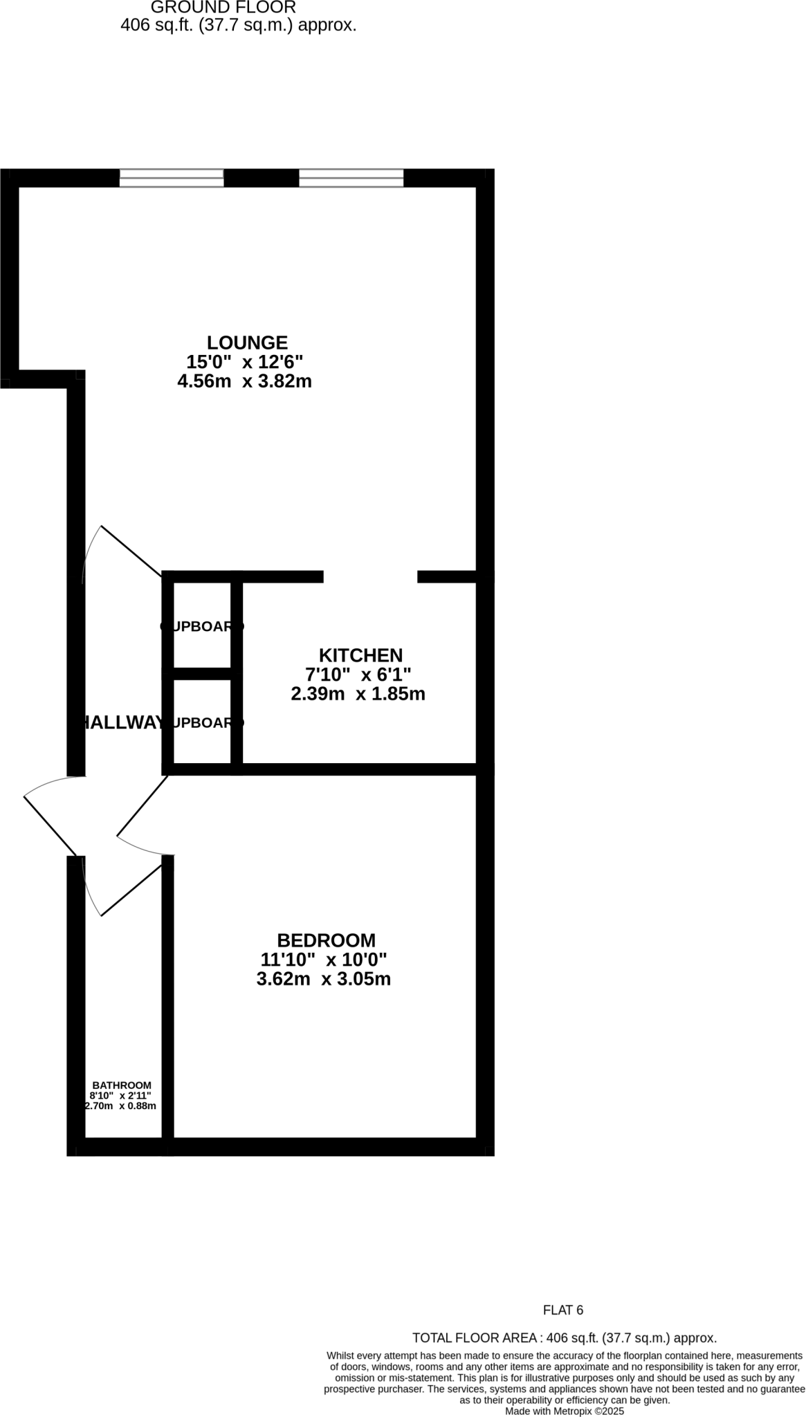
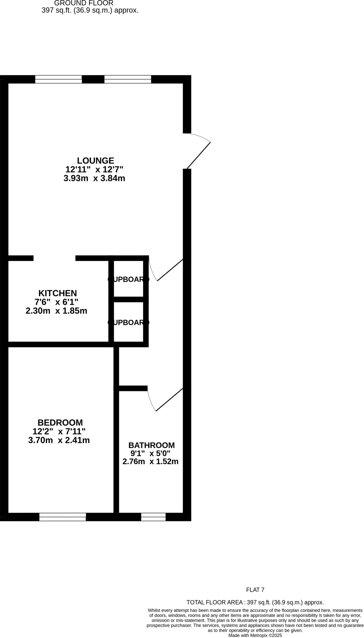
INVESTMENT OPPORTUNITY - Block of 8 x 1 bedroom flats for sale situated in the Barton area of Gloucester. The property comprises of 4 x ground floor flats and 4 x first floor flats and will be sold with tenants in situ. Each flat comprises of a lounge, separate kitchen, bathroom and double bedroo...
Property Oracle says ..
The property is a multi-unit building, likely a HMO (House of Multiple Occupancy) given the number of bedrooms and bathrooms. The exterior is a brick building that appears to be in reasonable condition, although some minor maintenance may be needed. The property benefits from a small rear garden. Based on the images provided, the interior condition of the individual units varies. Some units appear clean and well-maintained, while others show signs of wear and tear, and require some level of refurbishment or updating. The overall cleanliness and condition of the property is inconsistent across the units. The kitchens and bathrooms in particular show signs of wear and tear and could benefit from modernization. The location in Barton and Tredworth, Gloucester, places the property relatively close to Gloucester city centre and a railway station. The proximity to several schools, including Al Ashraf Primary School and Al-Ashraf Secondary School for Girls (both rated ‘Good’ by Ofsted), is a positive aspect for families or potential tenants. However, the area itself may not be considered a prime location compared to more affluent parts of Gloucester. Considering the average house price in the area is significantly lower (171,328) than the list price of 600,000, the price per square foot is also considerably higher (217.00) than the area average (217.00). Given the mixed condition of the property and the location, the list price appears significantly overpriced. The property may be suitable for investors looking for a rental yield, but the high purchase price needs to be carefully considered against potential refurbishment costs and rental income. The lack of information on rental yields in the area makes a full financial assessment difficult.
Therefore, we give this property 4 / 10. *Disclaimer: This is our option and does constitute a recommendation or financial advice. Do your own research. *
- Price
- 3
- Condition
- 6
- Location
- 6
- Land
- 4
- Bedrooms
- 8
- Bathrooms
- 8
- Sqft (est)
- 341.10
- Lot (est)
- 397.00
The heatmap indicates the level of crime in the area. The color of the heatmap indicates the crime severity and recency.
Metrics Year-on-Year
- Average area value
- 187,273.00 £Decreased by 3.50 %
- Est sale value
- 72,995.40 £Increased by 4.39 %
- Average area rental value
- 784.00 £/moDecreased by 3.80 %
- Est letting value
- 0.00 £/mo
- Est rental Yield
- 5.02 %Decreased by 0.40 %
- Crime Rate
- 7.00 %Unchanged by 0.00 %
Agent Activity
Martin & Co created the listing.
Nearby Schools
| Name | Type | Ofsted | Distance |
|---|---|---|---|
| Al Ashraf Primary School | Other Independent School | Good | 0.30 KM |
| Bartongate Children'S Centre | Children's Centre | 0.38 KM | |
| Al-Ashraf Secondary School For Girls | Other Independent School | Good | 0.44 KM |
| St James Church Of England Junior School | Voluntary Controlled School | Requires improvement | 0.56 KM |
| Tredworth Infant And Nursery Academy | Academy Converter | Good | 0.61 KM |
Images
Nearby Streets
| Name | Average Price | Average Sqft | Distance |
|---|---|---|---|
| Thomas Street | £ 0 | 0 | 0.00 KM |
| The Laurels | £ 0 | 0 | 0.00 KM |
| Albert Street | £ 0 | 0 | 0.00 KM |
| Furlong Road | £ 0 | 0 | 0.00 KM |
| Barnaby Close | £ 0 | 0 | 0.00 KM |
Nearby Transport
| Name | NLC | TLC | Distance |
|---|---|---|---|
| Gloucester | 4760 | GCR | 0.80 KM |
Nearby Listings
| Address | Price | Type | Score | Distance |
|---|---|---|---|---|
| Victoria Street, Barton | £ 600,000 | BUY | 4 / 10 | 0.00 KM |
| Ryecroft Street, Gloucester, Gloucestershire, GL1 | £ 250,000 | BUY | 5 / 10 | 0.07 KM |
| Ryecroft Street, Tredworth, Gloucester | £ 167,500 | BUY | 6 / 10 | 0.17 KM |
| Pembroke Street, Gloucester, Gloucestershire, GL1 | £ 240,000 | BUY | 6 / 10 | 0.17 KM |
| 27 Archibald Street, Gloucester | £ 145,000 | BUY | 4 / 10 | 0.19 KM |
Nearby Properties
| Address | Price | Distance |
|---|---|---|
| 11 Ryecroft Street | £ 118,000 | 0.05 KM |
| 57 Ryecroft Street | £ 74,500 | 0.05 KM |
| 17 Ryecroft Street | £ 127,500 | 0.05 KM |
| 15 Ryecroft Street | £ 80,000 | 0.05 KM |
| 25 Ryecroft Street | £ 203,000 | 0.05 KM |