Kingswood says ..
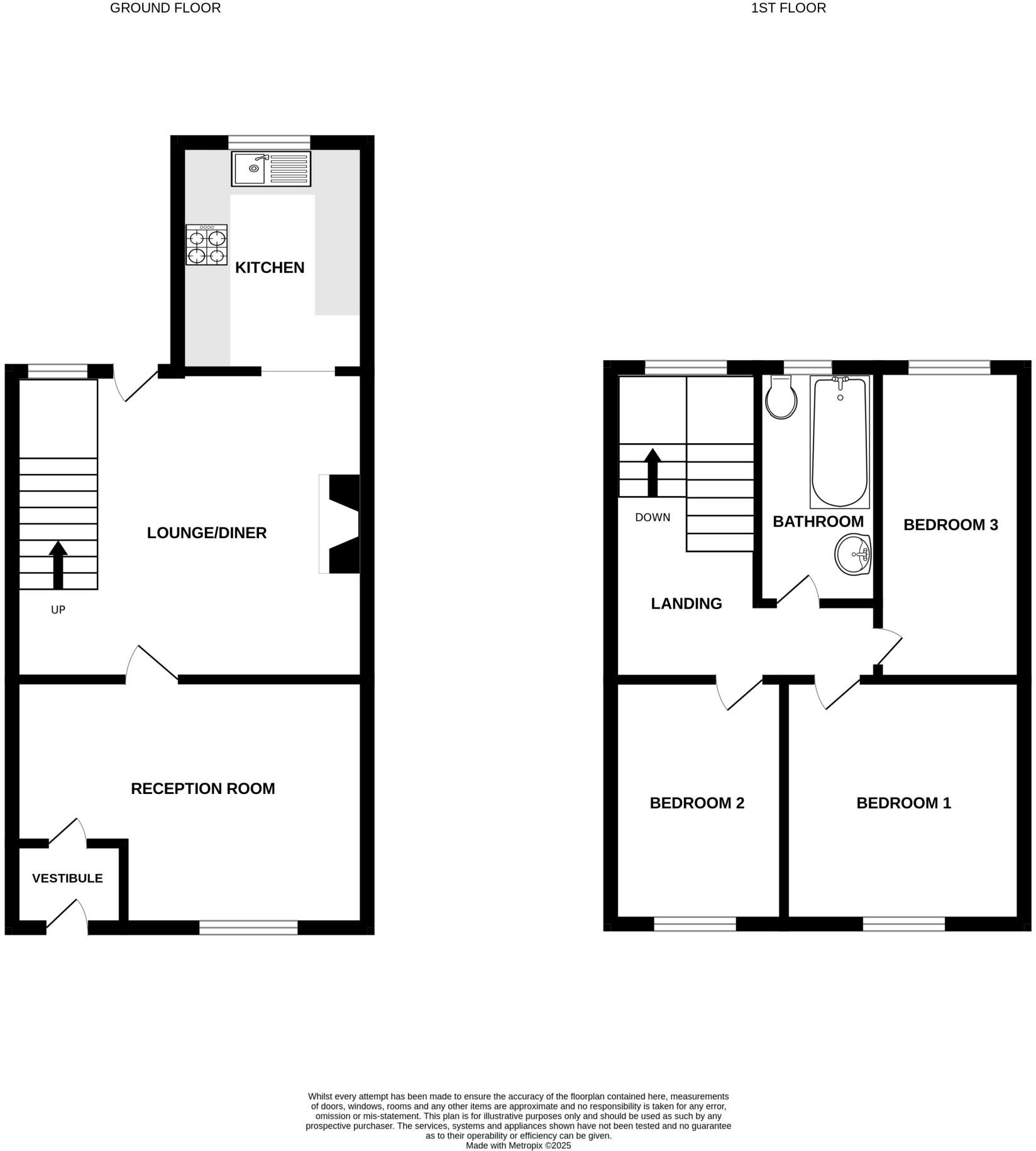
This spacious terraced house offers so much potential. With three bedrooms and two reception rooms, once it has been modernised it will be a great first step on the property ladder for a first time buyer or a brilliant buy to let investment. Call to arrange a viewing as soon as possible to avoid ...
Property Oracle says ..
Therefore, we give this property 5 / 10. *Disclaimer: This is our option and does constitute a recommendation or financial advice. Do your own research. *
- Price
- 7
- Condition
- 5
- Location
- 7
- Land
- 3
- Bedrooms
- 3
- Bathrooms
- 1
- Sqft (est)
- 951.52
The heatmap indicates the level of crime in the area. The color of the heatmap indicates the crime severity and recency.
Metrics Year-on-Year
- Average area value
- 236,183.00 £Increased by 10.24 %
- Est sale value
- 223,607.20 £Increased by 16.34 %
- Average area rental value
- 884.00 £/moIncreased by 4.49 %
- Est letting value
- 0.00 £/mo
- Est rental Yield
- 4.49 %Decreased by 5.27 %
- Crime Rate
- 17.00 %Unchanged by 0.00 %
from 214,235.00 £
from 192,207.04 £
from 846.00 £/mo
from 0.00 £/mo
from 4.74 %
from 17.00 %
Agent Activity
Kingswood created the listing.
Nearby Schools
| Name | Type | Ofsted | Distance |
|---|---|---|---|
| Sacred Heart Catholic Primary School | Voluntary Aided School | Requires improvement | 0.06 KM |
| Cedar Lodge School | Other Independent Special School | Outstanding | 0.63 KM |
| Spen Brook School | Other Independent Special School | Outstanding | 0.65 KM |
| The Limes School | Other Independent Special School | Good | 0.65 KM |
| The Roebuck School | Community School | Requires improvement | 0.88 KM |
Images
Nearby Streets
| Name | Average Price | Average Sqft | Distance |
|---|---|---|---|
| Customs Way | £ 139,950 | 0 | 0.00 KM |
| Strand St West | £ 0 | 0 | 0.00 KM |
| Cheviot Street | £ 0 | 0 | 0.00 KM |
| Hastings Road | £ 280,000 | 0 | 0.00 KM |
| Mayfield Road | £ 155,000 | 0 | 0.00 KM |
Nearby Transport
| Name | NLC | TLC | Distance |
|---|---|---|---|
| Preston (Lancs) | 2753 | PRE | 2.29 KM |
| Lostock Hall | 2689 | LOH | 6.35 KM |
| Bamber Bridge | 2561 | BMB | 8.49 KM |
| Leyland | 2710 | LEY | 8.64 KM |
Nearby Listings
| Address | Price | Type | Score | Distance |
|---|---|---|---|---|
| Poulton Street, Ashton-On-Ribble, PR2 | £ 120,000 | BUY | 6 / 10 | 0.00 KM |
| Poulton Street, Preston, PR2 | £ 125,000 | BUY | 5 / 10 | 0.00 KM |
| Poulton Street, Ashton, PR2 | £ 119,950 | BUY | 5 / 10 | 0.00 KM |
| Poulton Street, Ashton-on-Ribble, Preston, Lancashire, PR2 | £ 120,000 | BUY | 5 / 10 | 0.03 KM |
| Poulton Street,Ashton-on-Ribble,Preston,PR2 2SA | £ 130,000 | BUY | 5 / 10 | 0.04 KM |
Nearby Properties
| Address | Price | Distance |
|---|---|---|
| 45 Poulton Street | £ 90,000 | 0.03 KM |
| 11 Poulton Street | £ 56,950 | 0.03 KM |
| 17 Poulton Street | £ 98,000 | 0.03 KM |
| 43 Poulton Street | £ 100,000 | 0.03 KM |
| 53 Poulton Street | £ 89,000 | 0.03 KM |