Ivy & Stone says ..
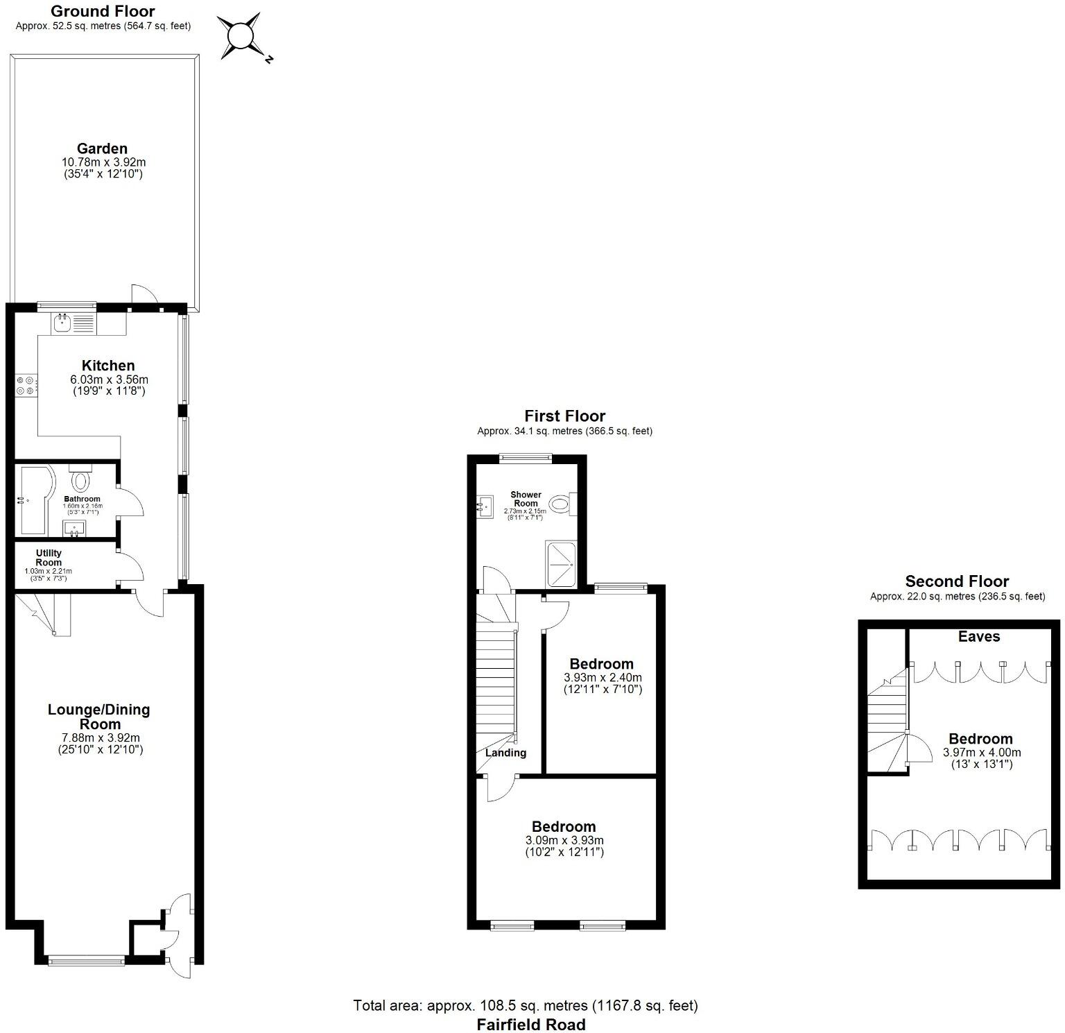
Fairfield Road is a beautifully presented two-bedroom house with a versatile loft room and two bathrooms, offering a perfect combination of style and practicality. With its contemporary design, high-quality finishes, and excellent location, this property is ideal for families, professionals, or anyo
Property Oracle says ..
The property is a modernised terraced house with a garden, located on Fairfield Road in Higham Hill, Waltham Forest, London (E17).
Therefore, we give this property 7 / 10. *Disclaimer: This is our option and does constitute a recommendation or financial advice. Do your own research. *
- Price
- 7
- Condition
- 9
- Location
- 8
- Land
- 7
- Bedrooms
- 2
- Bathrooms
- 2
- Sqft (est)
- 1,167.88
The heatmap indicates the level of crime in the area. The color of the heatmap indicates the crime severity and recency.
Metrics Year-on-Year
- Average area value
- 575,556.00 £Increased by 7.78 %
- Est sale value
- 967,004.64 £Increased by 115.06 %
- Average area rental value
- 2,123.00 £/moIncreased by 0.05 %
- Est letting value
- 3,503.64 £/moIncreased by 200.00 %
- Est rental Yield
- 4.43 %Decreased by 7.13 %
- Crime Rate
- 5.00 %Unchanged by 0.00 %
Agent Activity
Ivy & Stone created the listing.
Nearby Schools
| Name | Type | Ofsted | Distance |
|---|---|---|---|
| Hillyfield Primary Academy | Academy Converter | Good | 0.20 KM |
| Whittingham Primary Academy | Academy Converter | Good | 0.64 KM |
| Big Creative Academy | Free Schools 16 To 19 | Good | 0.79 KM |
| The Winns Primary School | Community School | Good | 0.86 KM |
| Stoneydown Park School | Community School | Good | 0.87 KM |
Images
Nearby Streets
| Name | Average Price | Average Sqft | Distance |
|---|---|---|---|
| Fairfield Road | £ 750,000 | 0 | 0.00 KM |
| Hamilton Road | £ 731,250 | 0 | 0.00 KM |
| Bramley Close | £ 450,000 | 0 | 0.00 KM |
| Luton Road | £ 682,286 | 0 | 0.00 KM |
| Windsor Avenue | £ 0 | 0 | 0.00 KM |
Nearby Transport
| Name | NLC | TLC | Distance |
|---|---|---|---|
| Blackhorse Road | 7400 | BHO | 1.17 KM |
| St James Street | 6973 | SJS | 1.29 KM |
| Walthamstow Queen'S Road | 7407 | WMW | 1.56 KM |
| Walthamstow Central | 6953 | WHC | 1.77 KM |
| Northumberland Park | 6971 | NUM | 2.59 KM |
Nearby Listings
| Address | Price | Type | Score | Distance |
|---|---|---|---|---|
| London, Greater London, E17 | £ 750,000 | BUY | 7 / 10 | 0.00 KM |
| London, Greater London, E17 | £ 525,000 | BUY | Unknown | 0.02 KM |
| Fairfield Road, Walthamstow London | £ 775,000 | BUY | 8 / 10 | 0.04 KM |
| Fairfield Road, Walthamstow | £ 699,995 | BUY | 7 / 10 | 0.05 KM |
| Fairfield Road, Walthamstow, London, E17 | £ 700,000 | BUY | 7 / 10 | 0.05 KM |
Nearby Properties
| Address | Price | Distance |
|---|---|---|
| 23 Fairfield Road | £ 242,000 | 0.01 KM |
| 15 Fairfield Road | £ 480,000 | 0.01 KM |
| 35 Fairfield Road | £ 497,200 | 0.01 KM |
| 28 Fairfield Road | £ 227,000 | 0.01 KM |
| 1 Fairfield Road | £ 245,000 | 0.01 KM |