Durham Road, London, E12
By John D Wood & Co, Docklands & City
£ 525,000
Reviews
3 out of 5 stars
John D Wood & Co, Docklands & City says ..
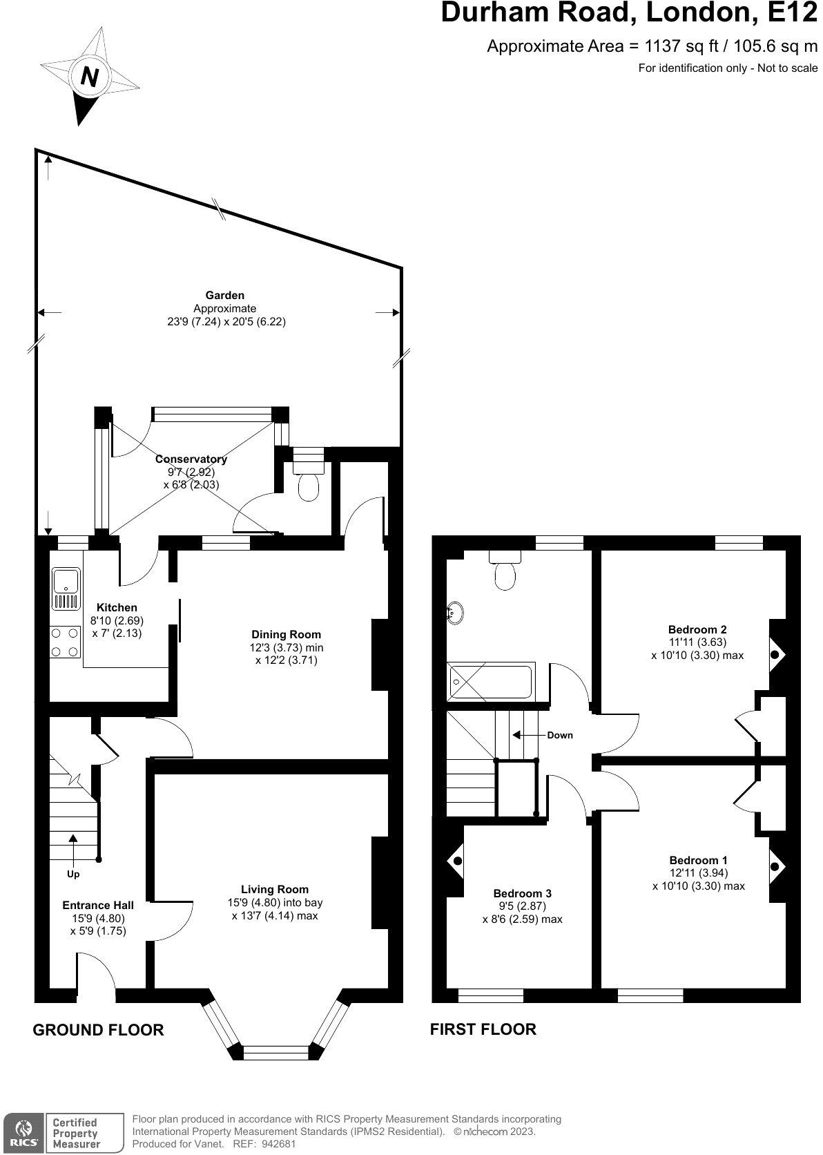
*CHAIN FREE* Set within a short stroll to Manor Park Station (Elizabeth Line) is this spacious three bedroom terraced house on Durham Road, E12. In need of some modernisation, this family home offers plenty of potential with the ground floor accommodation benefiting from a spacious rece...
Property Oracle says ..
The property is a three bedroom terraced house in Manor Park, London. It is located close to transport links and schools. The property requires renovation. The price is above the local average but the property is larger than average.
Therefore, we give this property 6 / 10. *Disclaimer: This is our option and does constitute a recommendation or financial advice. Do your own research. *
- Price
- 7
- Condition
- 4
- Location
- 7
- Land
- 6
- Bedrooms
- 3
- Bathrooms
- 1
- Sqft (est)
- 1,137.00
The heatmap indicates the level of crime in the area. The color of the heatmap indicates the crime severity and recency.
Metrics Year-on-Year
- Average area value
- 383,000.00 £Increased by 11.30 %
- Est sale value
- 590,103.00 £Increased by 48.29 %
- Average area rental value
- 1,425.00 £/moDecreased by 0.90 %
- Est letting value
- 1,137.00 £/moUnchanged by 0.00 %
- Est rental Yield
- 4.46 %Decreased by 10.98 %
- Crime Rate
- 3.00 %Unchanged by 0.00 %
Agent Activity
John D Wood & Co, Docklands & City created the listing.
Nearby Schools
| Name | Type | Ofsted | Distance |
|---|---|---|---|
| Salisbury Primary School | Community School | Good | 0.54 KM |
| Monega Primary School | Academy Sponsor Led | 0.63 KM | |
| Avenue Primary School | Community School | Good | 0.88 KM |
| William Davies Primary School | Community School | Good | 0.94 KM |
| Sandringham Primary School | Community School | Outstanding | 0.98 KM |
Images
Nearby Streets
| Name | Average Price | Average Sqft | Distance |
|---|---|---|---|
| Carlton Road | £ 0 | 0 | 0.00 KM |
| The Chase | £ 350,000 | 0 | 0.00 KM |
| Salisbury Road | £ 475,000 | 0 | 0.00 KM |
| Bluebell Avenue | £ 237,500 | 0 | 0.00 KM |
| Balmoral Road | £ 0 | 0 | 0.00 KM |
Nearby Transport
| Name | NLC | TLC | Distance |
|---|---|---|---|
| Woodgrange Park | 7467 | WGR | 0.31 KM |
| Manor Park | 6883 | MNP | 0.48 KM |
| Wanstead Park | 7408 | WNP | 1.77 KM |
| Forest Gate | 6876 | FOG | 1.99 KM |
| Ilford | 6881 | IFD | 3.16 KM |
Nearby Listings
| Address | Price | Type | Score | Distance |
|---|---|---|---|---|
| Durham Road, London, E12 | £ 525,000 | BUY | 6 / 10 | 0.00 KM |
| Durham Road, Manor Park, London, E12 | £ 350,000 | BUY | 4 / 10 | 0.03 KM |
| Durham Road, Manor Park | £ 800,000 | BUY | 7 / 10 | 0.04 KM |
| Durham Road, Manor Park, E12 5AX | £ 315,000 | BUY | Unknown | 0.04 KM |
| Durham Road, London, E12 | £ 650,000 | BUY | Unknown | 0.04 KM |
Nearby Properties
| Address | Price | Distance |
|---|---|---|
| 27a Durham Road | £ 115,500 | 0.01 KM |
| 45 Durham Road | £ 215,000 | 0.01 KM |
| 11 Durham Road | £ 362,000 | 0.01 KM |
| 83 Durham Road | £ 240,000 | 0.01 KM |
| 3 Durham Road | £ 235,000 | 0.01 KM |