David Andrew says ..
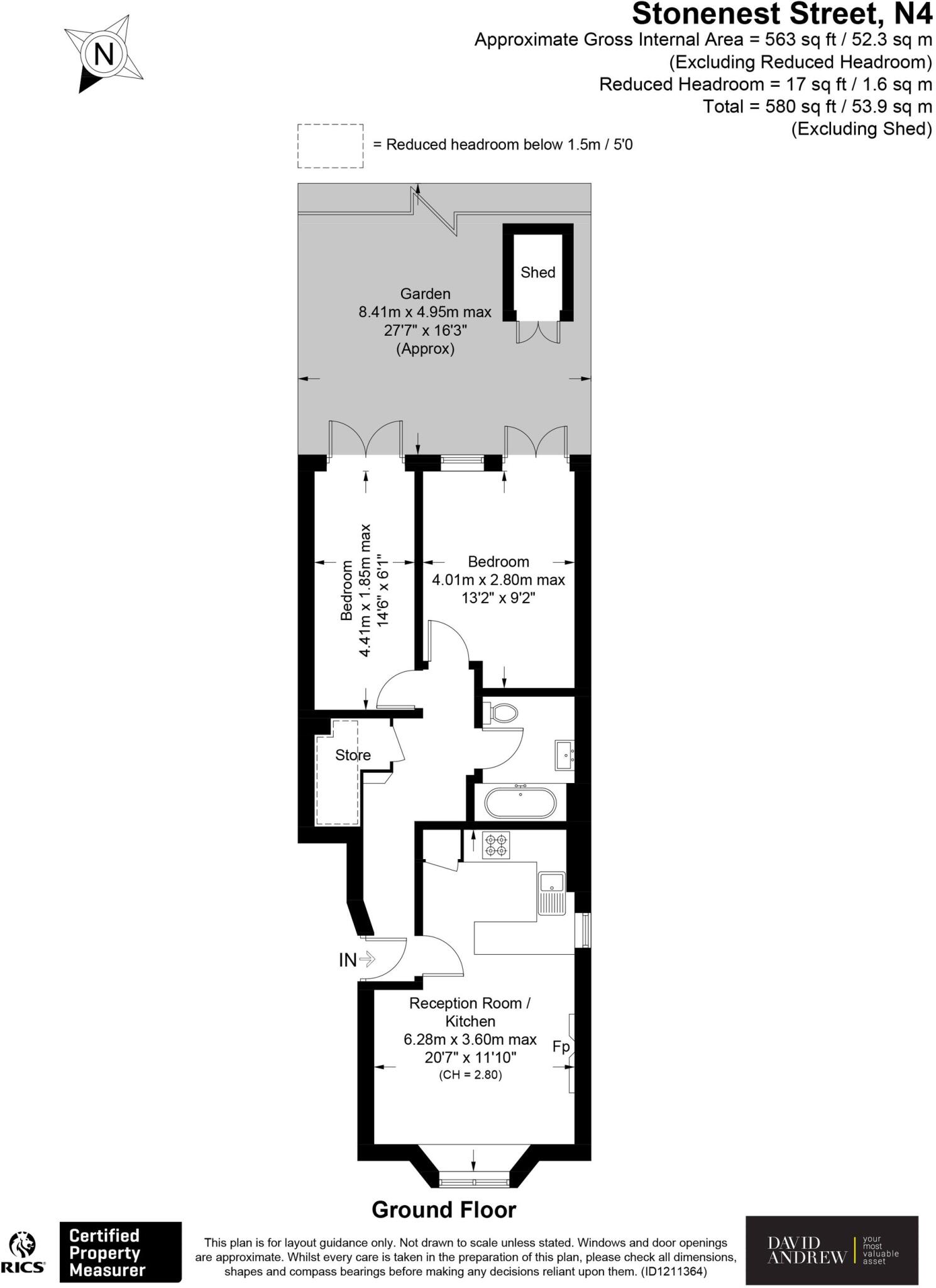
*Guide Price £600,000 - £650,000*Welcome to Stonenest Street - a beautifully presented two-bedroom ground-floor apartment set within a handsome period conversion, ideally located on a peaceful residential turning in the heart of Stroud Green.
Property Oracle says ..
Therefore, we give this property 7 / 10. *Disclaimer: This is our option and does constitute a recommendation or financial advice. Do your own research. *
- Price
- 8
- Condition
- 7
- Location
- 8
- Land
- 7
- Bedrooms
- 2
- Bathrooms
- 1
- Sqft (est)
- 907.35
The heatmap indicates the level of crime in the area. The color of the heatmap indicates the crime severity and recency.
Metrics Year-on-Year
- Average area value
- 770,833.00 £Increased by 10.52 %
- Est sale value
- 1,028,027.55 £Increased by 19.14 %
- Average area rental value
- 2,248.00 £/moDecreased by 5.39 %
- Est letting value
- 2,722.05 £/moUnchanged by 0.00 %
- Est rental Yield
- 3.50 %Decreased by 14.43 %
- Crime Rate
- 2.00 %Unchanged by 0.00 %
from 697,483.00 £
from 862,889.85 £
from 2,376.00 £/mo
from 2,722.05 £/mo
from 4.09 %
from 2.00 %
Agent Activity
David Andrew created the listing.
Nearby Schools
| Name | Type | Ofsted | Distance |
|---|---|---|---|
| North Islington Nursery School And Children'S Centre | Children's Centre | 0.13 KM | |
| North Islington Nursery School | Local Authority Nursery School | Good | 0.13 KM |
| Christ The King Catholic Primary School | Voluntary Aided School | Good | 0.16 KM |
| Arts And Media School Islington | Foundation School | Good | 0.20 KM |
| Pooles Park Primary School | Community School | Good | 0.35 KM |
Images
Nearby Streets
| Name | Average Price | Average Sqft | Distance |
|---|---|---|---|
| Dulas Street | £ 0 | 0 | 0.00 KM |
| Osborne Road | £ 0 | 0 | 0.00 KM |
| Franchise Place | £ 0 | 0 | 0.00 KM |
| Tollington Mews | £ 0 | 0 | 0.00 KM |
| Cornwallis Square | £ 250,000 | 0 | 0.00 KM |
Nearby Transport
| Name | NLC | TLC | Distance |
|---|---|---|---|
| Crouch Hill | 7406 | CRH | 0.54 KM |
| Finsbury Park | 6119 | FPK | 0.94 KM |
| Harringay | 6012 | HGY | 1.48 KM |
| Upper Holloway | 1524 | UHL | 1.75 KM |
| Drayton Park | 6000 | DYP | 1.90 KM |
Nearby Listings
| Address | Price | Type | Score | Distance |
|---|---|---|---|---|
| Stonenest Street, N4 3BA | £ 600,000 | BUY | 7 / 10 | 0.00 KM |
| Stonenest Street, N4 3BA | £ 1,250,000 | BUY | 7 / 10 | 0.05 KM |
| Tollington Park, London, N4 | £ 450,000 | BUY | Unknown | 0.07 KM |
| Tollington Park,, London | £ 550,000 | BUY | 5 / 10 | 0.08 KM |
| Marriott Road, Finsbury Park N4 | £ 900,000 | BUY | 7 / 10 | 0.08 KM |
Nearby Properties
| Address | Price | Distance |
|---|---|---|
| 10 Stonenest Street | £ 1,250,000 | 0.03 KM |
| 67 Tollington Park | £ 435,000 | 0.07 KM |
| 61b Tollington Park | £ 344,000 | 0.07 KM |
| 63c Tollington Park | £ 450,000 | 0.07 KM |
| 61c Tollington Park | £ 600,000 | 0.07 KM |