WI
Hillcourt Road, East Dulwich, London, SE22
By Winkworth
£ 1,250,000
Reviews
3 out of 5 stars
Winkworth says ..
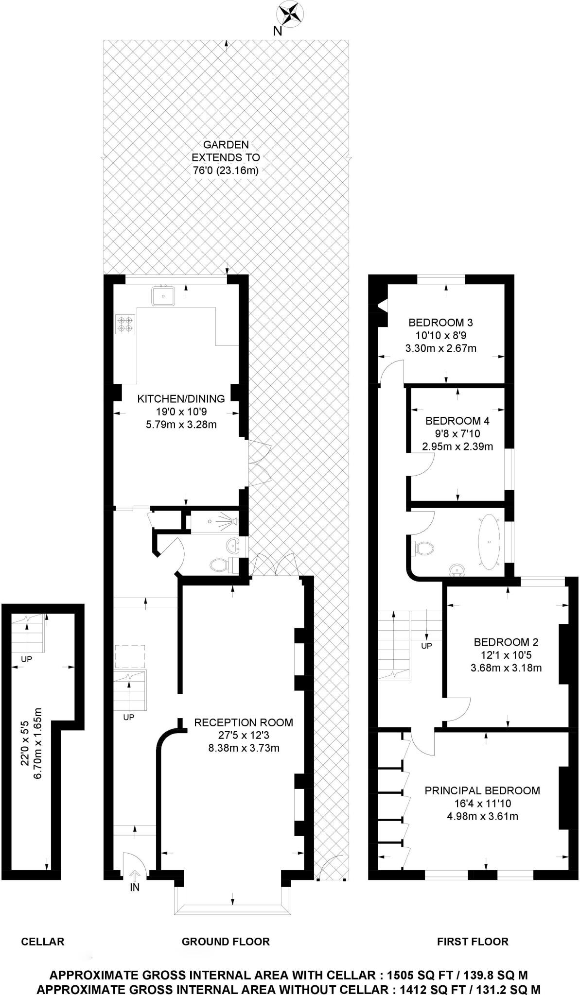
A stunning, spacious and grand Semi detached Victorian family home offered to the market in fantastic condition.
Property Oracle says ..
Therefore, we give this property 7 / 10. *Disclaimer: This is our option and does constitute a recommendation or financial advice. Do your own research. *
- Price
- 6
- Condition
- 8
- Location
- 9
- Land
- 7
- Bedrooms
- 4
- Bathrooms
- 2
- Sqft (est)
- 1,031.72
The heatmap indicates the level of crime in the area. The color of the heatmap indicates the crime severity and recency.
Metrics Year-on-Year
- Average area value
- 563,125.00 £Decreased by 31.99 %
- Est sale value
- 626,254.04 £Decreased by 24.88 %
- Average area rental value
- 3,400.00 £/moIncreased by 36.27 %
- Est letting value
- 3,095.16 £/moIncreased by 50.00 %
- Est rental Yield
- 7.25 %Increased by 100.28 %
- Crime Rate
- 6.00 %Unchanged by 0.00 %
from 827,974.00 £
from 833,629.76 £
from 2,495.00 £/mo
from 2,063.44 £/mo
from 3.62 %
from 6.00 %
Agent Activity
Winkworth created the listing.
Nearby Schools
| Name | Type | Ofsted | Distance |
|---|---|---|---|
| Goodrich Community Primary School | Community School | Good | 0.36 KM |
| St Anthony'S Catholic Primary School | Voluntary Aided School | Good | 0.80 KM |
| Harris Boys' Academy East Dulwich | Academy Sponsor Led | Outstanding | 0.82 KM |
| Horniman Primary School | Community School | Good | 0.91 KM |
| Heber Primary School | Community School | Good | 1.03 KM |
Images
Nearby Streets
| Name | Average Price | Average Sqft | Distance |
|---|---|---|---|
| Dawson's Hill Footpath (Dunstan's Road to Ladlands) | £ 0 | 0 | 0.00 KM |
| Dawson's Hill Footpath (Overhill Road to Bredinghurst) | £ 325,000 | 0 | 0.00 KM |
| Horniman Nature Trail | £ 499,995 | 0 | 0.00 KM |
| Firemans Alley | £ 366,000 | 0 | 0.00 KM |
| Ivestor Terrace | £ 675,000 | 0 | 0.00 KM |
Nearby Transport
| Name | NLC | TLC | Distance |
|---|---|---|---|
| Forest Hill | 5362 | FOH | 1.74 KM |
| Honor Oak Park | 5418 | HPA | 2.14 KM |
| East Dulwich | 5358 | EDW | 2.18 KM |
| Peckham Rye | 5423 | PMR | 2.32 KM |
| Nunhead | 5068 | NHD | 2.36 KM |
Nearby Listings
| Address | Price | Type | Score | Distance |
|---|---|---|---|---|
| Hillcourt Road, East Dulwich, London, SE22 | £ 1,250,000 | BUY | 7 / 10 | 0.00 KM |
| Hillcourt Road, East Dulwich, London, SE22 | £ 1,350,000 | BUY | 7 / 10 | 0.01 KM |
| Hillcourt Road, East Dulwich, SE22 | £ 1,150,000 | BUY | 5 / 10 | 0.03 KM |
| Overhill Road, East Dulwich, London, SE22 | £ 675,000 | BUY | 7 / 10 | 0.08 KM |
| 55 Hillcourt Road, East Dulwich, London, SE22 | £ 370,000 | BUY | Unknown | 0.09 KM |
Nearby Properties
| Address | Price | Distance |
|---|---|---|
| 15 Hillcourt Road | £ 215,000 | 0.03 KM |
| 1a Hillcourt Road | £ 445,000 | 0.03 KM |
| 59 Hillcourt Road | £ 740,000 | 0.03 KM |
| 17 Hillcourt Road | £ 495,000 | 0.03 KM |
| 11 Hillcourt Road | £ 315,000 | 0.03 KM |