Yopa says ..
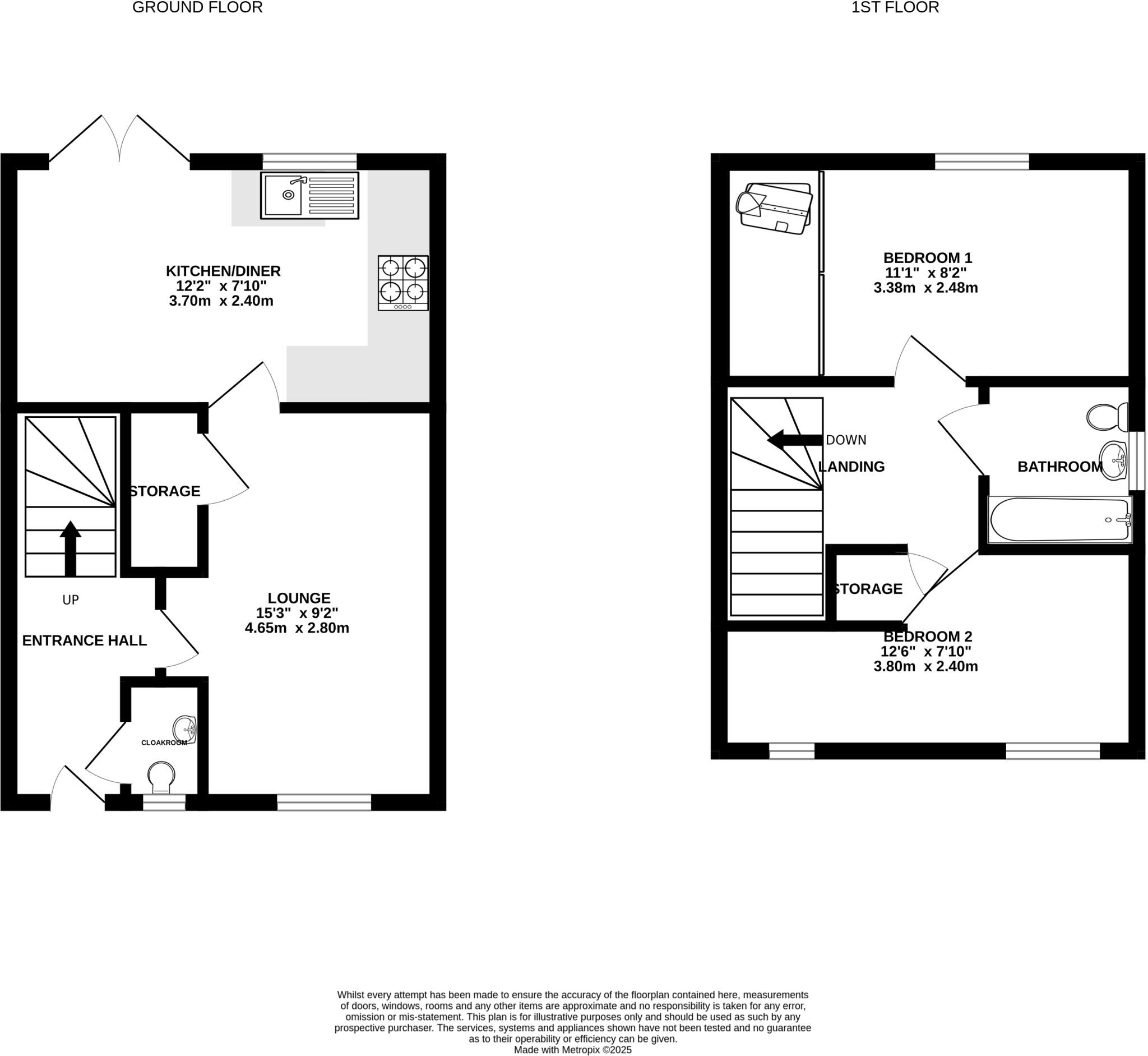
Modern 2-bed end terrace in Riverbourne Fields, Tidworth. Features open-plan living, cloakroom, private garden, two double bedrooms, bathroom with shower over bath, gas central heating, double glazing, and two allocated parking spaces and large rear garden. EPC rating B.
Property Oracle says ..
The property is an end-of-terrace house with 2 bedrooms and 1 bathroom. It is located in Tidworth, Wiltshire, near schools and transportation. The property appears to be in good condition, with a modern kitchen and bathroom. The property benefits from a garden. The list price seems reasonable compared to the average price per square foot in the area.
Therefore, we give this property 7 / 10. *Disclaimer: This is our option and does constitute a recommendation or financial advice. Do your own research. *
- Price
- 7
- Condition
- 8
- Location
- 7
- Land
- 7
- Bedrooms
- 2
- Bathrooms
- 1
The heatmap indicates the level of crime in the area. The color of the heatmap indicates the crime severity and recency.
Metrics Year-on-Year
- Average area value
- 212,500.00 £Decreased by 14.07 %
- Average area rental value
- 1,550.00 £/moIncreased by 72.22 %
- Est rental Yield
- 8.75 %Increased by 100.23 %
- Crime Rate
- 42.00 %Unchanged by 0.00 %
Agent Activity
Yopa created the listing.
Nearby Schools
| Name | Type | Ofsted | Distance |
|---|---|---|---|
| Wellington Lions Primary Academy | Academy Sponsor Led | Requires improvement | 0.26 KM |
| Windmill Hill Children'S Centre | Children's Centre | 0.48 KM | |
| Clarendon Junior School | Foundation School | Good | 0.74 KM |
| Clarendon Infants' School | Foundation School | Good | 0.74 KM |
| Zouch Academy | Academy Sponsor Led | Good | 1.69 KM |
Images
Nearby Streets
| Name | Average Price | Average Sqft | Distance |
|---|---|---|---|
| Tidworth Road | £ 230,000 | 0 | 0.00 KM |
| Kennet Road | £ 0 | 0 | 0.00 KM |
| Kennet Mews | £ 0 | 0 | 0.00 KM |
| Maple Terrace | £ 220,000 | 0 | 0.00 KM |
| Wheatley Close | £ 0 | 0 | 0.00 KM |
Nearby Transport
| Name | NLC | TLC | Distance |
|---|---|---|---|
| Grateley | 5514 | GRT | 9.28 KM |
Nearby Listings
| Address | Price | Type | Score | Distance |
|---|---|---|---|---|
| Eyles Road, Tidworth, SP9 | £ 260,000 | BUY | 7 / 10 | 0.00 KM |
| Tidworth, SP9 7WU | £ 400,000 | BUY | 7 / 10 | 0.01 KM |
| Eyles Road, Tidworth, Wiltshire, SP9 | £ 290,000 | BUY | 8 / 10 | 0.01 KM |
| Landsbury Drive, Tidworth, SP9 7XL | £ 425,000 | BUY | 7 / 10 | 0.04 KM |
| Shepperd Street, Tidworth, SP9 7WS | £ 199,950 | BUY | 7 / 10 | 0.12 KM |
Nearby Properties
| Address | Price | Distance |
|---|---|---|
| 11 Ludgershall Road | £ 238,500 | 0.14 KM |
| 9 Northeast Drive | £ 187,995 | 0.14 KM |
| 7 Shepperd Street | £ 187,250 | 0.17 KM |
| 5 Beale Road | £ 234,995 | 0.20 KM |
| 15 Beale Road | £ 210,000 | 0.24 KM |