Manchester Street, Newport, NP19
By Number One Real Estate
£ 160,000
Reviews
3 out of 5 stars
Number One Real Estate says ..
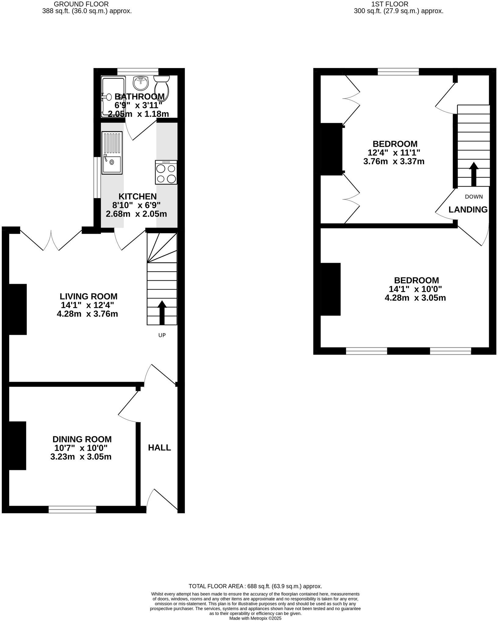
**WELL PRESENTED MID TERRACE PROPERTY**TWO DOUBLE BEDROOMS**TWO RECEPTION ROOMS**MODERN KITCHEN**SHOWER ROOM**ENCLOSED REAR GARDEN**EXCELLENT TRANSPORT LINKS**
Property Oracle says ..
This property is a 2 bedroom terraced house located in Newport, Wales. It benefits from a small garden and is conveniently located near several schools and transportation links. The property appears to be in good condition, with a recently updated kitchen and bathroom. However, the overall condition of the property is average and could benefit from some minor cosmetic improvements. The list price is slightly below the average price per square foot for the area, suggesting it may represent good value for money, however given the smaller size of the property than average this may be misleading.
Therefore, we give this property 7 / 10. *Disclaimer: This is our option and does constitute a recommendation or financial advice. Do your own research. *
- Price
- 7
- Condition
- 7
- Location
- 8
- Land
- 6
- Bedrooms
- 2
- Bathrooms
- 1
- Sqft (est)
- 635.40
- Lot (est)
- 688.00
The heatmap indicates the level of crime in the area. The color of the heatmap indicates the crime severity and recency.
Metrics Year-on-Year
- Average area value
- 273,072.00 £Decreased by 1.50 %
- Est sale value
- 214,765.20 £Increased by 29.01 %
- Average area rental value
- 1,340.00 £/moIncreased by 9.39 %
- Est letting value
- 635.40 £/moUnchanged by 0.00 %
- Est rental Yield
- 5.89 %Increased by 11.13 %
- Crime Rate
- 18.00 %Unchanged by 0.00 %
Agent Activity
Number One Real Estate created the listing.
Nearby Schools
| Name | Type | Ofsted | Distance |
|---|---|---|---|
| Newport Nursery School | Welsh Establishment | 0.14 KM | |
| St Joseph'S R.C. Primary School | Welsh Establishment | 0.48 KM | |
| Maindee C.P. School | Welsh Establishment | 0.78 KM | |
| Eveswell Primary School | Welsh Establishment | 1.15 KM | |
| St Julian'S School | Welsh Establishment | 1.24 KM |
Images
Nearby Streets
| Name | Average Price | Average Sqft | Distance |
|---|---|---|---|
| Liverpool Street | £ 183,300 | 0 | 0.00 KM |
| Exeter Street | £ 186,667 | 0 | 0.00 KM |
| Lord Street | £ 0 | 0 | 0.00 KM |
| Alfred Street | £ 0 | 0 | 0.00 KM |
| St. Merriots Place | £ 0 | 0 | 0.00 KM |
Nearby Transport
| Name | NLC | TLC | Distance |
|---|---|---|---|
| Newport (South Wales) | 3674 | NWP | 1.93 KM |
| Pye Corner | 1663 | PYE | 6.14 KM |
| Cwmbran | 3738 | CWM | 8.05 KM |
| Rogerstone | 9921 | ROR | 9.21 KM |
Nearby Listings
| Address | Price | Type | Score | Distance |
|---|---|---|---|---|
| Manchester Street, Newport, NP19 | £ 160,000 | BUY | 7 / 10 | 0.00 KM |
| Hereford Street, Newport, NP19 | £ 155,000 | BUY | 5 / 10 | 0.03 KM |
| Bristol Street, Newport, NP19 | £ 169,995 | BUY | 7 / 10 | 0.07 KM |
| Bristol Street, Newport, NP19 | £ 160,000 | BUY | 6 / 10 | 0.07 KM |
| Bristol Street, Newport, NP19 | £ 160,000 | BUY | 6 / 10 | 0.12 KM |
Nearby Properties
| Address | Price | Distance |
|---|---|---|
| 11 Manchester Street | £ 85,000 | 0.00 KM |
| 57 Manchester Street | £ 130,000 | 0.00 KM |
| 15 Manchester Street | £ 95,000 | 0.00 KM |
| 30 Manchester Street | £ 120,000 | 0.00 KM |
| 55 Manchester Street | £ 86,500 | 0.00 KM |