Parrys says ..
A three bedroom detached family home which has been well maintained by the current owner and is located on a no through road in the popular residential area of Mardy. The property offers well-proportioned accommodation and is situated within a generous plot, with ample off-road parking and a deta...
Property Oracle says ..
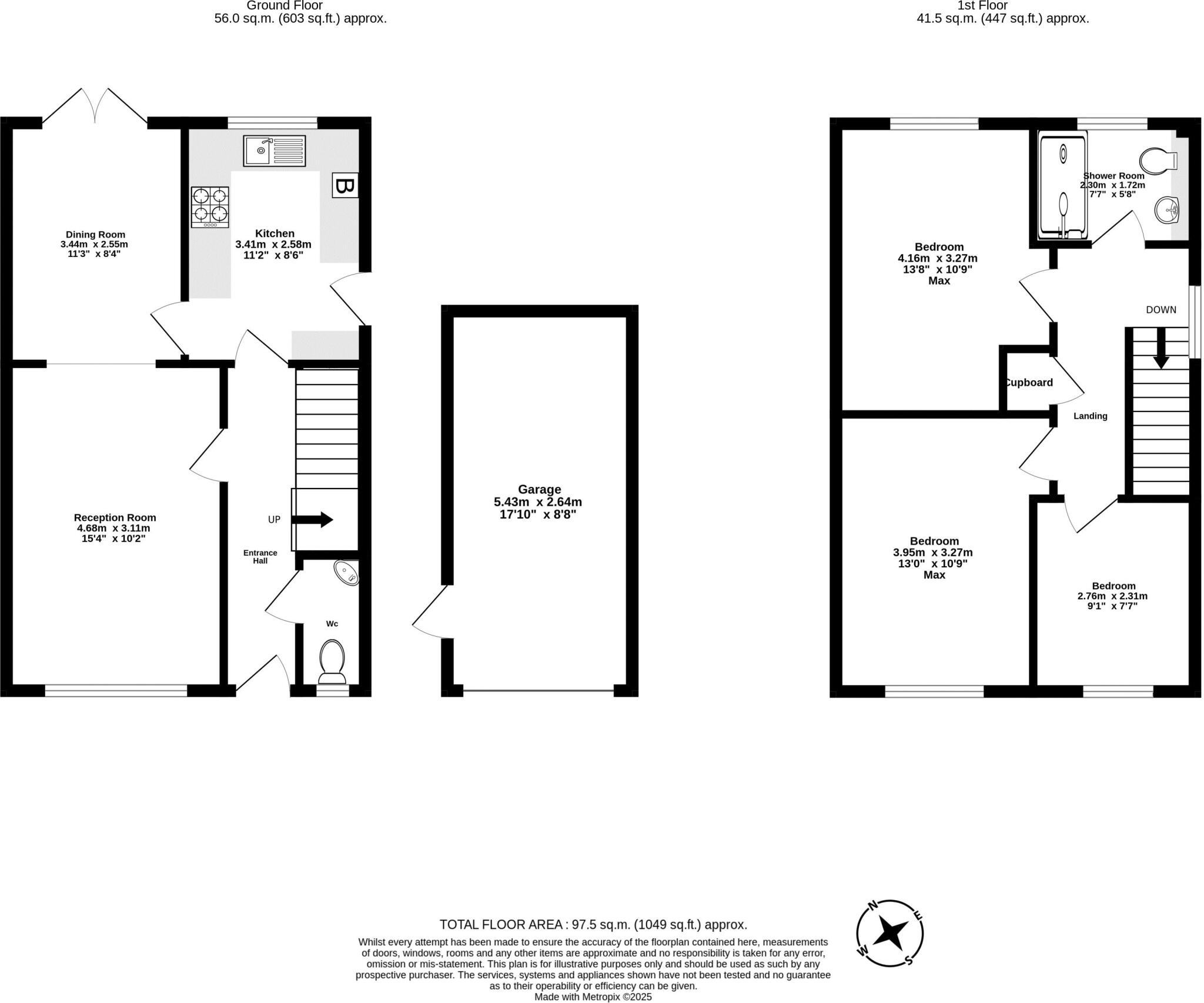
This property is a 3-bedroom, 1-bathroom detached house located in Greystones Crescent, Mardy, Monmouthshire, Wales. The list price is £325,000, and the property has 946.47 square feet of living space and a 1,049.48 square foot plot. The property appears to be in good condition based on the provided images. The kitchen and bathroom have been recently updated, and the rest of the house is well-maintained. There is a small garden to the rear of the property. The average price for a property in this area is £284,944, with an average price per square foot of £290. Considering the property’s size, condition, and the inclusion of a garden, the list price of £325,000 seems slightly above average but not unreasonable, particularly given the lack of comparable properties with square footage data in the nearby listings. The nearby properties on Greystones Crescent itself show a range of prices, suggesting some variability in value within the street. The proximity to Abergavenny and local amenities is a positive factor. The location benefits from being relatively close to several primary and secondary schools, as well as Abergavenny train station. This makes the property suitable for families and commuters.
Therefore, we give this property 7 / 10. *Disclaimer: This is our option and does constitute a recommendation or financial advice. Do your own research. *
- Price
- 7
- Condition
- 8
- Location
- 7
- Land
- 6
- Bedrooms
- 3
- Bathrooms
- 1
- Sqft (est)
- 946.47
- Lot (est)
- 1,049.48
The heatmap indicates the level of crime in the area. The color of the heatmap indicates the crime severity and recency.
Metrics Year-on-Year
- Average area value
- 287,293.00 £Decreased by 0.23 %
- Est sale value
- 468,502.65 £Increased by 93.36 %
- Average area rental value
- 1,083.00 £/moIncreased by 11.42 %
- Est letting value
- 946.47 £/mo
- Est rental Yield
- 4.52 %Increased by 11.60 %
- Crime Rate
- 19.00 %Unchanged by 0.00 %
Agent Activity
Parrys created the listing.
Nearby Schools
| Name | Type | Ofsted | Distance |
|---|---|---|---|
| Llantilio Pertholey C.V. Primary School | Welsh Establishment | 0.52 KM | |
| Deri View Primary | Welsh Establishment | 1.19 KM | |
| King Henry Viii Comprehensive School | Welsh Establishment | 1.64 KM | |
| Ysgol Gymraeg Y Fenni | Welsh Establishment | 2.00 KM | |
| Our Lady & St Michael'S School | Welsh Establishment | 2.37 KM |
Images
Nearby Streets
| Name | Average Price | Average Sqft | Distance |
|---|---|---|---|
| Perry Close | £ 308,000 | 0 | 0.00 KM |
| Parc Croesonnen | £ 0 | 0 | 0.00 KM |
| Charles Close | £ 225,000 | 0 | 0.00 KM |
| Llwynu Lane | £ 0 | 0 | 0.00 KM |
| B4521 | £ 300,000 | 0 | 0.00 KM |
Nearby Transport
| Name | NLC | TLC | Distance |
|---|---|---|---|
| Abergavenny | 3602 | AGV | 2.57 KM |
Nearby Listings
| Address | Price | Type | Score | Distance |
|---|---|---|---|---|
| Greystones Crescent, Abergavenny | £ 325,000 | BUY | 7 / 10 | 0.00 KM |
| Greystones Crescent, Mardy, Abergavenny, NP7 | £ 385,000 | BUY | 8 / 10 | 0.00 KM |
| Greystones Crescent, Mardy, Abergavenny, NP7 | £ 275,000 | BUY | Unknown | 0.06 KM |
| Maindiff Drive , Llantillio Pertholey , Abergavenny, NP7 | £ 349,950 | BUY | 6 / 10 | 0.11 KM |
| Poplars Court, Abergavenny | £ 550,000 | BUY | 7 / 10 | 0.13 KM |
Nearby Properties
| Address | Price | Distance |
|---|---|---|
| 21 Greystones Crescent | £ 235,000 | 0.01 KM |
| 17 Greystones Crescent | £ 187,500 | 0.01 KM |
| 11 Greystones Crescent | £ 276,000 | 0.01 KM |
| 7 Greystones Crescent | £ 142,000 | 0.01 KM |
| 8 Greystones Crescent | £ 215,000 | 0.01 KM |