Flat 6 The Old School North Street, Totnes, Devon
WO

Flat 6 The Old School North Street, Totnes, Devon

By Wood's Estate Agents and Auctioneers

£ 235,000

Reviews

3 out of 5 stars

Wood's Estate Agents and Auctioneers says ..

Set just off the town centre in this historic property this one bedroom apartment offers flexible accommodation with communal gardens and superb views.

Property Oracle says ..

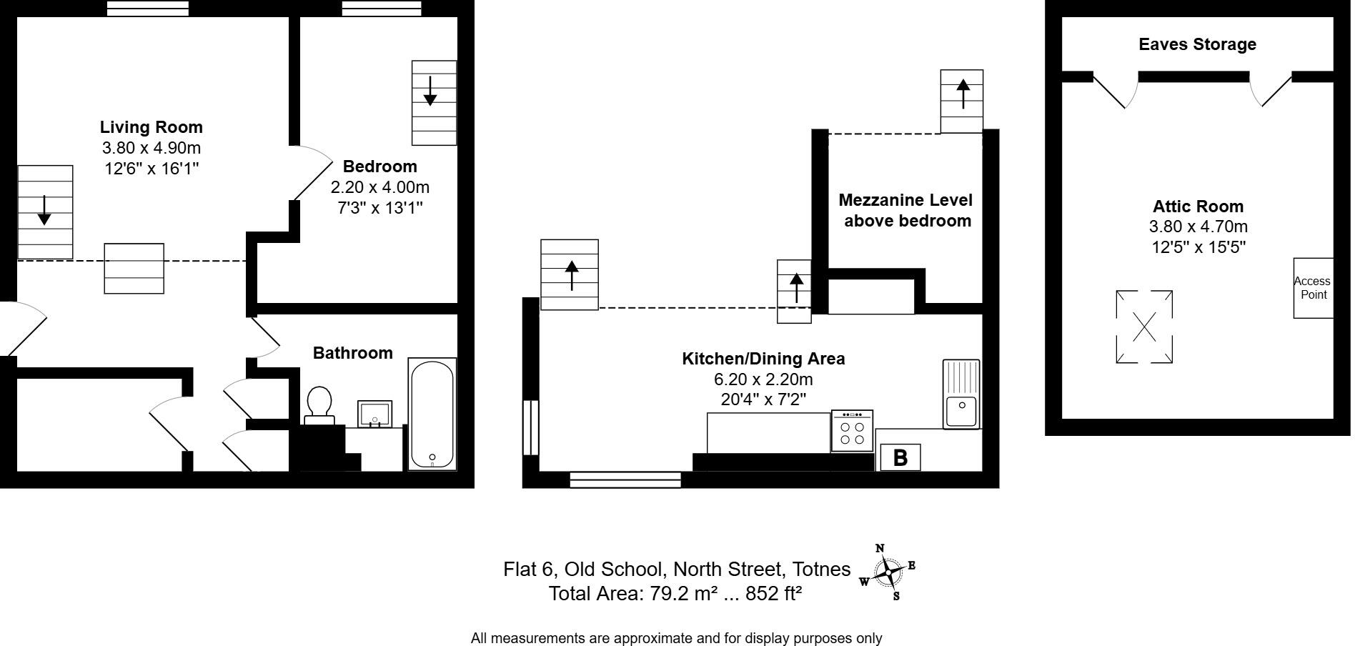
Flat 6 The Old School is a one-bedroom flat located in a converted school building on North Street, Totnes. The property offers 852.5 sqft of living space and is listed for £235,000. The flat features a large open-plan living area with a mezzanine level, a kitchen, a bathroom, and access to communal gardens. While the property requires some modernisation, it retains character features and is situated in a convenient location close to local amenities and transport links. The price per square foot is below the Totnes average, reflecting the condition and offering an opportunity for improvement.

Therefore, we give this property 6 / 10. *Disclaimer: This is our option and does constitute a recommendation or financial advice. Do your own research. *

Price
7
Condition
5
Location
7
Land
6
Bedrooms
1
Bathrooms
1
Sqft (est)
852.50

The heatmap indicates the level of crime in the area. The color of the heatmap indicates the crime severity and recency.

Metrics Year-on-Year

Average area value
418,833.00 £
Increased by 5.75 %
from 396,049.00 £
Est sale value
345,262.50 £
Increased by 5.47 %
from 327,360.00 £
Average area rental value
1,017.00 £/mo
Decreased by 11.64 %
from 1,151.00 £/mo
Est letting value
0.00 £/mo
Decreased by 100.00 %
from 852.50 £/mo
Est rental Yield
2.91 %
Decreased by 16.62 %
from 3.49 %
Crime Rate
65.00 %
Unchanged by 0.00 %
from 65.00 %

Agent Activity

  • Wood's Estate Agents and Auctioneers created the listing.

Nearby Schools

NameTypeOfstedDistance
The Grove SchoolCommunity SchoolOutstanding0.23 KM
Totnes Progressive SchoolOther Independent School0.58 KM
On Track Education - TotnesOther Independent Special SchoolGood0.91 KM
King Edward Vi Community CollegeFoundation SchoolGood0.95 KM
Roc College (Part Of United Response)Special Post 16 InstitutionGood1.27 KM

Images

IMG_4889.JPEG IMG_4967.JPEG FullSizeRender.JPEG IMG_4898.JPEG IMG_4913.JPEG FullSizeRender-1.JPEG IMG_4881.JPEG IMG_4919.JPEG IMG_4966.JPEG IMG_4982.JPEG IMG_4926.JPEG IMG_4872.JPEG IMG_4959.JPEG IMG_4894.JPEG IMG_4899.JPEG IMG_4948.JPEG IMG_4949.JPEG IMG_4955.JPEG IMG_4973.JPEG IMG_4877.JPEG IMG_4908.JPEG IMG_4884.JPEG IMG_4886.JPEG

Nearby Streets

NameAverage PriceAverage SqftDistance
North Street Mews £ 325,00000.00 KM
Priory Gardens £ 000.00 KM
Heath Court £ 000.00 KM
Mansion Way £ 000.00 KM
Swallowfields £ 415,00000.00 KM

Nearby Transport

NameNLCTLCDistance
Totnes3558TOT0.41 KM

Nearby Listings

AddressPriceTypeScoreDistance
Flat 6 The Old School North Street, Totnes, Devon £ 235,000BUY6 / 100.00 KM
High Street, Totnes, Devon £ 420,000BUY6 / 100.02 KM
High Street, Totnes £ 375,000BUY7 / 100.06 KM
Priory Court, Priory Avenue, Totnes, Devon £ 325,000BUY5 / 100.10 KM
Church Close, High Street, Totnes £ 295,000BUY6 / 100.10 KM

Nearby Properties

AddressPriceDistance
9 North Street £ 69,0000.00 KM
4 North Street £ 70,5000.00 KM
6 North Street £ 112,5000.00 KM
10 North Street £ 240,0000.00 KM
7 North Street £ 287,0000.00 KM