Martin & Co says ..
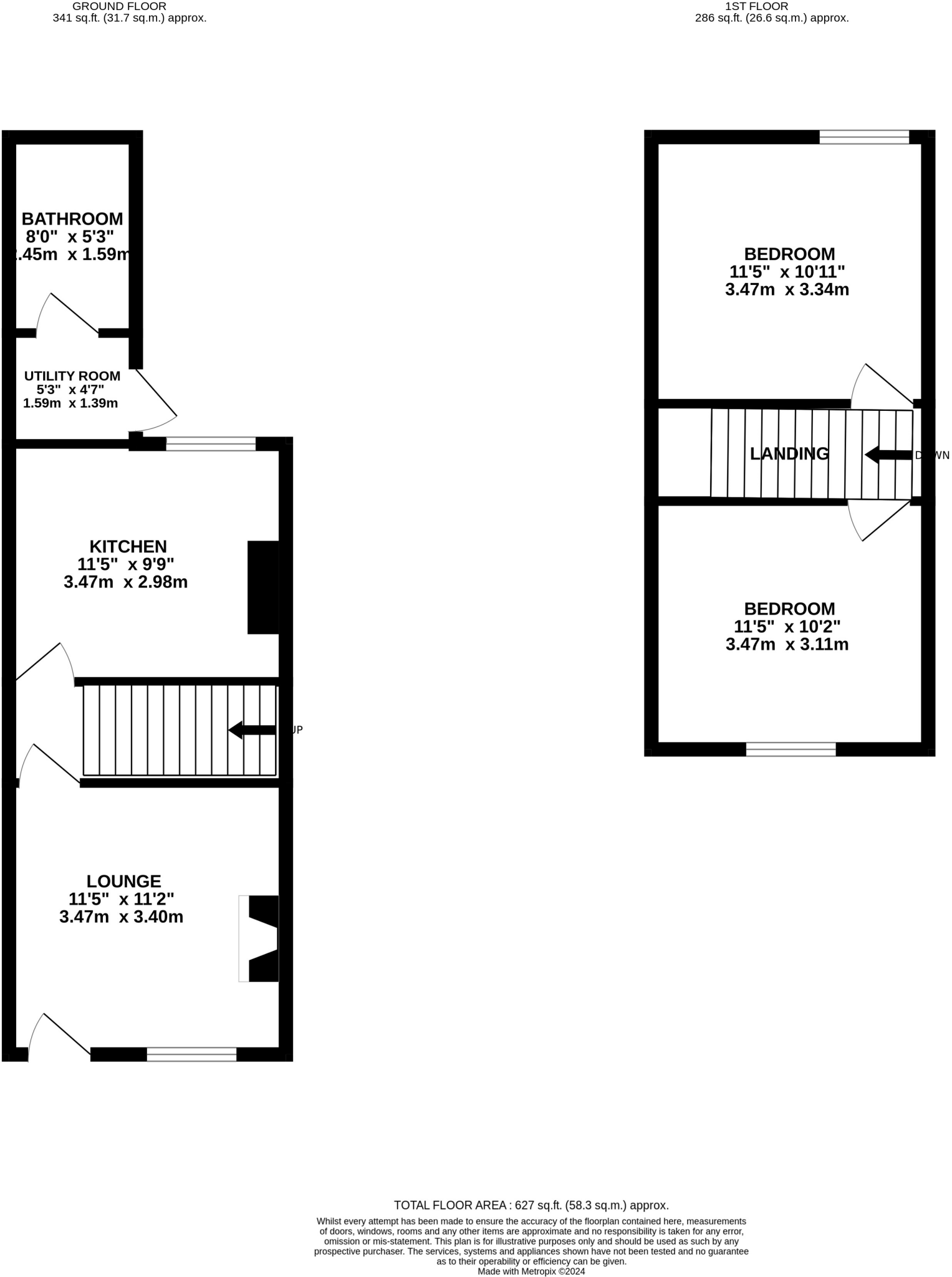
Discover this delightful two-bedroom mid terraced property, perfectly situated within walking distance of the historic market town of Newark-on-Trent. This well-appointed home features a welcoming lounge, a spacious kitchen, and a separate utility room on the ground floor, along with a family bat...
Property Oracle says ..
This two-bedroom terraced house in Newark, Nottinghamshire, presents a decent opportunity for first-time buyers or investors. The property is conveniently located within walking distance of Newark’s town centre, offering access to shops, restaurants, and other amenities. The proximity to Newark North Gate and Newark Castle train stations provides good transport links. The presence of several schools within a short distance is another positive.
The property itself appears to be in fair condition. The images show a relatively clean and well-maintained interior with a functional kitchen and bathroom. There’s also a small garden, although its size is limited. While the property isn’t brand new or luxury, it seems to offer comfortable living space for its price.
However, some minor upgrades could enhance the property’s aesthetic appeal and potentially increase its value. The lack of precise square footage for comparable properties makes definitive price comparisons challenging. Potential buyers should conduct thorough viewings and independent valuations to inform their decision-making. Further investigation into the specific location within Sydney Terrace would be beneficial to assess noise levels, parking availability and overall neighbourhood feel.
Therefore, we give this property 5 / 10. *Disclaimer: This is our option and does constitute a recommendation or financial advice. Do your own research. *
- Price
- 7
- Condition
- 6
- Location
- 7
- Land
- 3
- Bedrooms
- 2
- Bathrooms
- 1
- Sqft (est)
- 627.54
The heatmap indicates the level of crime in the area. The color of the heatmap indicates the crime severity and recency.
Metrics Year-on-Year
- Average area value
- 388,125.00 £Increased by 10.71 %
- Est sale value
- 151,237.14 £Increased by 6.64 %
- Average area rental value
- 864.00 £/moDecreased by 9.34 %
- Est letting value
- 0.00 £/mo
- Est rental Yield
- 2.67 %Decreased by 18.10 %
- Crime Rate
- 9.00 %Unchanged by 0.00 %
Agent Activity
Martin & Co created the listing.
Nearby Schools
| Name | Type | Ofsted | Distance |
|---|---|---|---|
| Magnus Church Of England Academy | Academy Sponsor Led | Good | 0.23 KM |
| The King'S Church Of England Primary Academy | Academy Sponsor Led | Requires improvement | 0.61 KM |
| Balderton Children'S Centre | Children's Centre | 0.88 KM | |
| Hawtonville Children'S Centre | Children's Centre | 0.88 KM | |
| Mount Cofe Primary School | Academy Converter | 1.02 KM |
Images
Nearby Streets
| Name | Average Price | Average Sqft | Distance |
|---|---|---|---|
| New Street | £ 0 | 0 | 0.00 KM |
| Granby Avenue | £ 0 | 0 | 0.00 KM |
| Charlotte Close | £ 150,000 | 0 | 0.00 KM |
| Cross Street | £ 0 | 0 | 0.00 KM |
| Carlton Close | £ 0 | 0 | 0.00 KM |
Nearby Transport
| Name | NLC | TLC | Distance |
|---|---|---|---|
| Newark North Gate | 6499 | NNG | 1.44 KM |
| Newark Castle | 6498 | NCT | 1.56 KM |
Nearby Listings
| Address | Price | Type | Score | Distance |
|---|---|---|---|---|
| Sydney Terrace, Newark | £ 130,000 | BUY | 5 / 10 | 0.00 KM |
| Hatton Gardens, Newark | £ 155,000 | BUY | 7 / 10 | 0.09 KM |
| Walker Close, Newark | £ 1,000,000 | BUY | 6 / 10 | 0.09 KM |
| Earp Avenue, Newark | £ 190,000 | BUY | 7 / 10 | 0.10 KM |
| Bowbridge Road, Newark | £ 170,000 | BUY | 7 / 10 | 0.12 KM |
Nearby Properties
| Address | Price | Distance |
|---|---|---|
| 28 Sydney Terrace | £ 91,000 | 0.00 KM |
| 12 Sydney Terrace | £ 136,000 | 0.00 KM |
| 30 Sydney Terrace | £ 125,000 | 0.00 KM |
| 18 Sydney Terrace | £ 135,000 | 0.00 KM |
| 16 Sydney Terrace | £ 99,950 | 0.00 KM |