Cwrt Jones, Penymynydd
By Cavendish Residential
£ 395,000
Reviews
4 out of 5 stars
Cavendish Residential says ..
A MODERN, WELL DESIGNED FOUR BEDROOM DETACHED HOUSE WITH GARAGE, forming part of the successful 'Millstone View' development by Redrow Homes, midway between Mold and Chester. Occupying an attractive position at the end of a small row of detached homes, overlooking an open amenity area, on the fri...
Property Oracle says ..
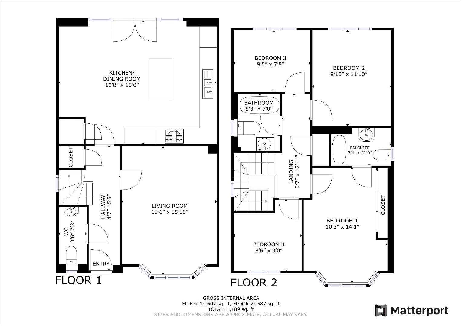
The property is a 4-bedroom, 2-bathroom detached house located in Penymynydd, Flintshire. Based on the provided images, the property appears to be in excellent condition, with modern fixtures and fittings throughout. The kitchen is particularly well-equipped and spacious, with bi-fold doors leading to the rear garden. The location is desirable, with nearby schools and transport links. However, the plot size is not specified, which could affect the overall value. More information on the property’s square footage and local pricing data would be needed to provide a complete assessment of the price.
Therefore, we give this property 8 / 10. *Disclaimer: This is our option and does constitute a recommendation or financial advice. Do your own research. *
- Price
- 7
- Condition
- 10
- Location
- 8
- Land
- 7
- Bedrooms
- 4
- Bathrooms
- 2
- Sqft (est)
- 1,189.00
The heatmap indicates the level of crime in the area. The color of the heatmap indicates the crime severity and recency.
Metrics Year-on-Year
- Average area value
- 267,500.00 £Decreased by 0.99 %
- Est sale value
- 305,573.00 £Increased by 5.33 %
- Average area rental value
- 1,107.00 £/moDecreased by 6.11 %
- Est letting value
- 1,189.00 £/moUnchanged by 0.00 %
- Est rental Yield
- 4.97 %Decreased by 5.15 %
- Crime Rate
- 8.00 %Unchanged by 0.00 %
Agent Activity
Cavendish Residential created the listing.
Nearby Schools
| Name | Type | Ofsted | Distance |
|---|---|---|---|
| St Johns The Baptist V.A. Primary School | Welsh Establishment | 0.93 KM | |
| Drury C.P. School | Welsh Establishment | 2.67 KM | |
| Castell Alun High School | Welsh Establishment | 3.81 KM | |
| Hawarden High School | Welsh Establishment | 3.98 KM | |
| Ysgol Derwen | Welsh Establishment | 4.08 KM |
Images
Nearby Streets
| Name | Average Price | Average Sqft | Distance |
|---|---|---|---|
| Cwrt Jones | £ 0 | 0 | 0.00 KM |
| Bucker Court | £ 0 | 0 | 0.00 KM |
| Neale Courtyard | £ 0 | 0 | 0.00 KM |
| Rhodfa Gladstone / Gladstone Avenue | £ 0 | 0 | 0.00 KM |
| Ffrdd Glynne | £ 0 | 0 | 0.00 KM |
Nearby Transport
| Name | NLC | TLC | Distance |
|---|---|---|---|
| Penyffordd | 2433 | PNF | 2.31 KM |
| Buckley | 2422 | BCK | 2.42 KM |
| Hawarden | 2428 | HWD | 3.63 KM |
| Hope (Flintshire) | 2432 | HPE | 3.96 KM |
| Caergwrle | 2536 | CGW | 5.04 KM |
Nearby Listings
| Address | Price | Type | Score | Distance |
|---|---|---|---|---|
| Cwrt Jones, Penymynydd | £ 395,000 | BUY | 8 / 10 | 0.00 KM |
| Clos Beau Mount, Penymynydd, CH4 | £ 450,000 | BUY | 7 / 10 | 0.04 KM |
| Llys Buckler, Penymynydd, CH4 | £ 350,000 | BUY | 6 / 10 | 0.06 KM |
| Clos Beau Mount, Penymynydd, CH4 | £ 450,000 | BUY | 7 / 10 | 0.06 KM |
| Clos Beau Mount, Penymynydd, CH4 | £ 465,000 | BUY | 7 / 10 | 0.06 KM |
Nearby Properties
| Address | Price | Distance |
|---|---|---|
| 1 Linwood Close | £ 170,000 | 0.29 KM |
| 8 Linwood Close | £ 160,000 | 0.29 KM |
| 56 Well House Drive | £ 197,500 | 0.34 KM |
| 34 Well House Drive | £ 165,000 | 0.34 KM |
| 52 Well House Drive | £ 185,000 | 0.34 KM |