Arethusa Way, Bisley, Woking, Surrey, GU24
By Seymours Estate Agents
£ 625,000
Reviews
3 out of 5 stars
Seymours Estate Agents says ..
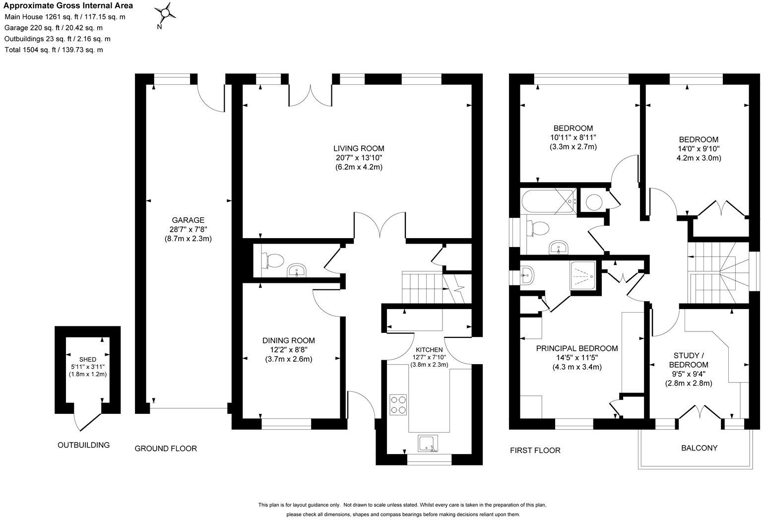
Tucked away in a peaceful cul-de-sac in the heart of Bisley village, this beautifully presented Georgian style detached home offers spacious and flexible living with a stunning south-facing garden backing onto farmland and open fields. Internally, the property boasts four generous double bed...
Property Oracle says ..
This is a detached property in Arethusa Way, Bisley, offering four bedrooms and one bathroom. The house spans 1,504 sqft and is listed for £625,000 by Seymours Estate Agents. The property benefits from a well-maintained interior, a modern kitchen, and a good-sized garden with a shed and patio. It is located near Bisley Cofe Primary School and has decent transport links. The price is competitive for the area, making it a potentially attractive purchase.
Therefore, we give this property 7 / 10. *Disclaimer: This is our option and does constitute a recommendation or financial advice. Do your own research. *
- Price
- 8
- Condition
- 7
- Location
- 7
- Land
- 7
- Bedrooms
- 4
- Bathrooms
- 1
- Sqft (est)
- 1,504.00
The heatmap indicates the level of crime in the area. The color of the heatmap indicates the crime severity and recency.
Metrics Year-on-Year
- Average area value
- 644,188.00 £Increased by 3.54 %
- Est sale value
- 637,696.00 £Decreased by 26.64 %
- Average area rental value
- 2,466.00 £/moDecreased by 21.84 %
- Est letting value
- 1,504.00 £/moDecreased by 50.00 %
- Est rental Yield
- 4.59 %Decreased by 24.63 %
- Crime Rate
- 4.00 %Unchanged by 0.00 %
Agent Activity
Seymours Estate Agents created the listing.
Nearby Schools
| Name | Type | Ofsted | Distance |
|---|---|---|---|
| Bisley Cofe Primary School | Voluntary Aided School | Good | 0.41 KM |
| The Knaphill Lower School | Academy Converter | 1.78 KM | |
| Knaphill School | Academy Converter | 1.86 KM | |
| Holy Trinity Cofe Primary School | Academy Converter | 2.01 KM | |
| Brookwood & Pirbright Sure Start Children'S Centre | Children's Centre | 2.15 KM |
Images
Nearby Streets
| Name | Average Price | Average Sqft | Distance |
|---|---|---|---|
| Strawberry Fields | £ 925,000 | 0 | 0.00 KM |
| Iris Drive | £ 0 | 0 | 0.00 KM |
| Stafford Lake | £ 0 | 0 | 0.00 KM |
| Guernsey Way | £ 0 | 0 | 0.00 KM |
| Gloucester Close | £ 735,000 | 0 | 0.00 KM |
Nearby Transport
| Name | NLC | TLC | Distance |
|---|---|---|---|
| Brookwood | 5687 | BKO | 2.21 KM |
| Bagshot | 5681 | BAG | 7.17 KM |
| Worplesdon | 5686 | WPL | 7.29 KM |
| Sunningdale | 5671 | SNG | 7.66 KM |
| Longcross | 5674 | LNG | 8.43 KM |
Nearby Listings
| Address | Price | Type | Score | Distance |
|---|---|---|---|---|
| Arethusa Way, Bisley, Woking, Surrey, GU24 | £ 625,000 | BUY | 7 / 10 | 0.00 KM |
| Arethusa Way, Bisley, Woking, Surrey, GU24 | £ 695,000 | BUY | 8 / 10 | 0.02 KM |
| Bisley, Surrey, GU24 | £ 650,000 | BUY | 7 / 10 | 0.04 KM |
| Arethusa Way, Bisley, Woking, Surrey, GU24 | £ 625,000 | BUY | 7 / 10 | 0.06 KM |
| Arethusa Way, Bisley, Woking | £ 675,000 | BUY | Unknown | 0.06 KM |
Nearby Properties
| Address | Price | Distance |
|---|---|---|
| 61 Arethusa Way | £ 468,000 | 0.16 KM |
| 19 Arethusa Way | £ 375,000 | 0.16 KM |
| 4 Arethusa Way | £ 380,000 | 0.16 KM |
| 43 Arethusa Way | £ 306,000 | 0.16 KM |
| 15 Arethusa Way | £ 712,000 | 0.16 KM |