South View, Cross Hills,
WI

South View, Cross Hills,

By Wilman & Lodge

£ 184,950

Reviews

3 out of 5 stars

Wilman & Lodge says ..

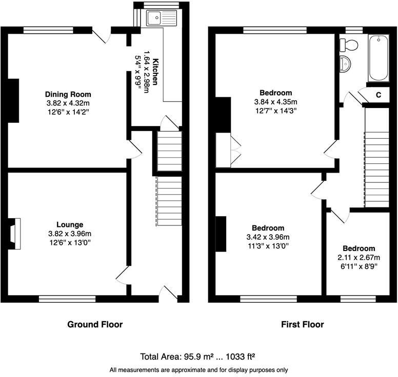
This ATTRACTIVE AND SUBSTANTIAL THREE-BEDROOM TERRACED PROPERTY is conveniently LOCATED CLOSE TO THE HEART OF THE VILLAGE CENTRE. Offered with NO UPPER CHAIN, the home features NEUTRAL DECOR THROUGHOUT.

Property Oracle says ..

This three-bedroom terraced house in Cross Hills, Craven, North Yorkshire is listed at £184,950. The property is situated close to local schools and transportation links, including Cononley train station (2.98km). The house appears to be in relatively good condition, though some minor cosmetic updates might enhance its appeal. While the images show a small yard, it is not extensive. Compared to the area average price of £771,250 and average price per sqft of £670, the list price seems considerably lower. However, it’s crucial to note that this is a terraced house, and the average price includes other property types. The lack of plot size data makes a definitive land assessment impossible. Further investigation into the local market and comparable properties would be beneficial for a more comprehensive valuation.

Therefore, we give this property 6 / 10. *Disclaimer: This is our option and does constitute a recommendation or financial advice. Do your own research. *

Price
7
Condition
7
Location
8
Land
3
Bedrooms
3
Bathrooms
1
Sqft (est)
1,032.26

The heatmap indicates the level of crime in the area. The color of the heatmap indicates the crime severity and recency.

Metrics Year-on-Year

Average area value
1,245,000.00 £
Increased by 45.13 %
from 857,841.00 £
Est sale value
778,324.04 £
Decreased by 10.13 %
from 866,066.14 £
Average area rental value
2,513.00 £/mo
Increased by 0.60 %
from 2,498.00 £/mo
Est letting value
1,032.26 £/mo
Decreased by 50.00 %
from 2,064.52 £/mo
Est rental Yield
2.42 %
Decreased by 30.66 %
from 3.49 %
Crime Rate
54.00 %
Unchanged by 0.00 %
from 54.00 %

Agent Activity

  • Wilman & Lodge created the listing.

Nearby Schools

NameTypeOfstedDistance
South Craven SchoolAcademy ConverterOutstanding0.26 KM
South Craven Children'S CentreChildren's Centre0.55 KM
Sutton In Craven Church Of England Voluntary Controlled Primary SchoolVoluntary Controlled SchoolGood0.62 KM
Glusburn Community Primary SchoolCommunity SchoolRequires improvement0.83 KM
Sutton-In-Craven Community Primary SchoolCommunity SchoolGood0.86 KM

Images

IMG-20250221-WA0035.jpg IMG-20250401-WA0035.jpg IMG-20250401-WA0033.jpg IMG-20250401-WA0043.jpg IMG-20250401-WA0039.jpg IMG-20250401-WA0026.jpg IMG-20250401-WA0031.jpg IMG-20250401-WA0029.jpg IMG-20250401-WA0030.jpg IMG-20250401-WA0038.jpg IMG-20250401-WA0044.jpg IMG-20250401-WA0040.jpg IMG-20250401-WA0032.jpg IMG-20250401-WA0042.jpg IMG-20250401-WA0025.jpg IMG-20250401-WA0037.jpg IMG-20250401-WA0041.jpg IMG-20250401-WA0028.jpg IMG-20250401-WA0027.jpg

Nearby Streets

NameAverage PriceAverage SqftDistance
North Street £ 000.00 KM
Prospect Street £ 199,95000.00 KM
Campbell Street £ 235,00000.00 KM
James Street £ 189,00000.00 KM
Beech Street £ 000.00 KM

Nearby Transport

NameNLCTLCDistance
Cononley8470CEY2.98 KM
Steeton And Silsden8469SON5.10 KM
Skipton2728SKI7.49 KM

Nearby Listings

AddressPriceTypeScoreDistance
South View, Cross Hills, £ 184,950BUY6 / 100.00 KM
South View, Cross Hills, £ 184,950BUY6 / 100.00 KM
Main Street, Cross Hills £ 99,950BUYUnknown0.08 KM
Fernbank House, Park Road, Cross Hills £ 125,000BUY6 / 100.13 KM
Ashville Terrace, Cross Hills, BD20 £ 400,000BUY6 / 100.13 KM

Nearby Properties

AddressPriceDistance
14 South View £ 154,0000.01 KM
5 South View £ 279,9500.01 KM
16 South View £ 150,0000.01 KM
35a Main Street £ 110,0000.05 KM
10 Rhodesia Street £ 135,0000.05 KM