Allday & Miller says ..
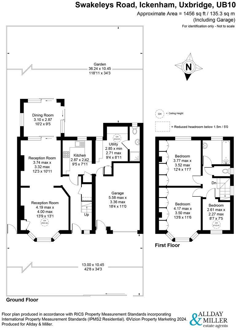
This Impressive three bedroom, two bathroom detached family home measures 1456Sq Ft and has parking for multiple vehicles set back from the road behind electric gates. Located within walking distance of Ickenham train station, village and the areas highly regarded schools.
Property Oracle says ..
This three-bedroom, two-bathroom detached house in Ickenham, Hillingdon, is listed at £925,000. The property boasts a modern, updated interior, including a recently fitted kitchen and bathrooms. The interior photos show a light, spacious feel, with good-sized rooms. The property benefits from a driveway providing off-street parking and a relatively generous rear garden with a decked area. Its location in Ickenham is a significant advantage, offering easy access to highly regarded schools (Breakspear and Vyners) and Ickenham train station, along with Ickenham Village’s amenities. Transport links to central London are readily accessible via train and underground connections at nearby stations. Whilst the asking price might appear on the higher end of the local market compared to some semi-detached properties, the property’s detached nature, size, updated interior and good-sized garden justify a premium compared to those properties. Potential buyers should conduct their own thorough due diligence and compare it to other similar detached properties in the area to further assess its value.
Therefore, we give this property 7 / 10. *Disclaimer: This is our option and does constitute a recommendation or financial advice. Do your own research. *
- Price
- 7
- Condition
- 7
- Location
- 8
- Land
- 6
- Bedrooms
- 3
- Bathrooms
- 2
- Sqft (est)
- 1,456.36
- Lot (est)
- 4,615.57
The heatmap indicates the level of crime in the area. The color of the heatmap indicates the crime severity and recency.
Metrics Year-on-Year
- Average area value
- 845,563.00 £Decreased by 7.05 %
- Est sale value
- 856,339.68 £Increased by 6.91 %
- Average area rental value
- 2,280.00 £/moDecreased by 28.32 %
- Est letting value
- 1,456.36 £/moUnchanged by 0.00 %
- Est rental Yield
- 3.24 %Decreased by 22.86 %
- Crime Rate
- 19.00 %Unchanged by 0.00 %
Agent Activity
Allday & Miller marked this listing as sold.
Allday & Miller created the listing.
Nearby Schools
| Name | Type | Ofsted | Distance |
|---|---|---|---|
| The Breakspear School | Community School | Good | 0.86 KM |
| Vyners School | Academy Converter | Outstanding | 0.88 KM |
| The Douay Martyrs Catholic School | Academy Converter | Good | 1.60 KM |
| Pentland Field School | Free Schools Special | Good | 2.05 KM |
| Hcuc (Harrow College & Uxbridge College) | Further Education | 2.10 KM |
Images
Nearby Streets
| Name | Average Price | Average Sqft | Distance |
|---|---|---|---|
| Malcolm Road | £ 0 | 0 | 0.00 KM |
| The Mead | £ 940,000 | 0 | 0.00 KM |
| Windrush Close | £ 900,000 | 0 | 0.00 KM |
| Bushey Close | £ 0 | 0 | 0.00 KM |
| Farm Close | £ 570,000 | 0 | 0.00 KM |
Nearby Transport
| Name | NLC | TLC | Distance |
|---|---|---|---|
| West Ruislip | 3059 | WRU | 2.26 KM |
| Denham | 3052 | DNM | 4.66 KM |
| West Drayton | 3174 | WDT | 6.33 KM |
| South Ruislip | 3057 | SRU | 6.52 KM |
| Denham Golf Club | 3060 | DGC | 6.87 KM |
Nearby Listings
| Address | Price | Type | Score | Distance |
|---|---|---|---|---|
| Swakeleys Road, Ickenham | £ 925,000 | BUY | 7 / 10 | 0.00 KM |
| Vinlake Avenue, Uxbridge, UB10 8DS | £ 735,000 | BUY | 7 / 10 | 0.09 KM |
| Swakeleys Road, Ickenham, Uxbridge | £ 900,000 | BUY | Unknown | 0.09 KM |
| Swakeleys Road, Ickenham, UB10 | £ 900,000 | BUY | 7 / 10 | 0.09 KM |
| Swakeleys Road, Ickenham, UB10 | £ 900,000 | BUY | 7 / 10 | 0.10 KM |
Nearby Properties
| Address | Price | Distance |
|---|---|---|
| 136 Swakeleys Road | £ 787,000 | 0.09 KM |
| 126 Swakeleys Road | £ 520,000 | 0.09 KM |
| 114 Swakeleys Road | £ 435,000 | 0.09 KM |
| 102 Swakeleys Road | £ 680,000 | 0.09 KM |
| 104 Swakeleys Road | £ 685,000 | 0.09 KM |