Old Lane, Scapegoat Hill, Huddersfield, HD7
By WM. Sykes & Son
£ 179,950
Reviews
3 out of 5 stars
WM. Sykes & Son says ..
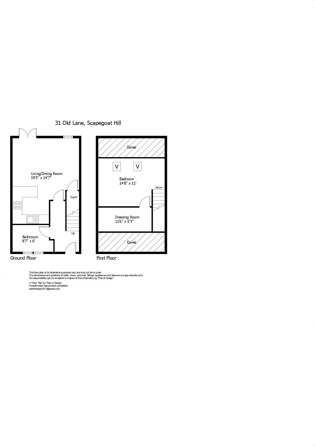
This unique and individual end terraced house must be viewed internally to be fully appreciated. It is of stone built construction and whilst having the appearance of a bungalow does in fact offer surprising 2 storey accommodation. This comprises, entrance hall, open plan living room / kitchen,...
Property Oracle says ..
This one-bedroom, end-of-terrace house in Scapegoat Hill, Huddersfield, presents a well-maintained and updated property, ideal for a first-time buyer or someone looking for a low-maintenance home. The interior features modern fixtures, a newly renovated bathroom, and a contemporary open-plan kitchen and living area. The property offers a small enclosed garden. The location is convenient, with a nearby primary school with a good Ofsted rating and other schools within walking distance. Although there is a lack of easily accessible public transport, the property’s location offers a peaceful atmosphere while being within reasonable distance of major amenities. The price seems reasonable, depending on the buyers’ preferences and expectations, given the lack of comprehensive local pricing data. Overall, it’s a nice, well-presented property in a convenient location. However, potential buyers should carefully consider the relative lack of space and access to main transport links.
Therefore, we give this property 6 / 10. *Disclaimer: This is our option and does constitute a recommendation or financial advice. Do your own research. *
- Price
- 7
- Condition
- 8
- Location
- 6
- Land
- 4
- Bedrooms
- 1
- Bathrooms
- 1
- Sqft (est)
- 1,026.67
The heatmap indicates the level of crime in the area. The color of the heatmap indicates the crime severity and recency.
Metrics Year-on-Year
- Average area value
- 301,900.00 £Increased by 9.07 %
- Est sale value
- 437,361.42 £Increased by 71.77 %
- Average area rental value
- 990.00 £/moIncreased by 18.71 %
- Est letting value
- 1,026.67 £/mo
- Est rental Yield
- 3.94 %Increased by 8.84 %
- Crime Rate
- 14.00 %Unchanged by 0.00 %
Agent Activity
WM. Sykes & Son marked this listing as sold.
WM. Sykes & Son created the listing.
Nearby Schools
| Name | Type | Ofsted | Distance |
|---|---|---|---|
| Scapegoat Hill Junior And Infant School | Community School | Good | 0.28 KM |
| Clough Head Junior And Infant School | Community School | Good | 1.36 KM |
| Golcar Junior Infant And Nursery School | Foundation School | Good | 1.60 KM |
| St John'S Church Of England Voluntary Aided Junior And Infant School | Voluntary Aided School | Good | 1.66 KM |
| Wellhouse Junior And Infant School | Community School | Good | 1.74 KM |
Images
Nearby Streets
| Name | Average Price | Average Sqft | Distance |
|---|---|---|---|
| Cat Steps | £ 0 | 0 | 0.00 KM |
| Moles Head | £ 0 | 0 | 0.00 KM |
| Heath House Lane | £ 399,950 | 0 | 0.00 KM |
| Prospect Place | £ 0 | 0 | 0.00 KM |
| HUD/443/10 | £ 0 | 0 | 0.00 KM |
Nearby Transport
| Name | NLC | TLC | Distance |
|---|---|---|---|
| Slaithwaite | 8450 | SWT | 2.75 KM |
| Lockwood | 8443 | LCK | 7.43 KM |
| Sowerby Bridge | 8527 | SOW | 8.34 KM |
| Marsden (Yorks) | 8445 | MSN | 8.36 KM |
| Berry Brow | 8431 | BBW | 8.56 KM |
Nearby Listings
| Address | Price | Type | Score | Distance |
|---|---|---|---|---|
| High Street, Golcar, Huddersfield, West Yorkshire, HD7 | £ 250,000 | BUY | 6 / 10 | 0.06 KM |
| High Street, Scapegoat Hill, Huddersfield, West Yorkshire, HD7 | £ 180,000 | BUY | 7 / 10 | 0.06 KM |
| Chapel Street, Golcar, Huddersfield, HD7 | £ 575,000 | BUY | 7 / 10 | 0.11 KM |
| Grand Stand, Scapegoat Hill | £ 250,000 | BUY | Unknown | 0.12 KM |
| Pike Law Lane, Golcar, Huddersfield | £ 900,000 | BUY | 7 / 10 | 0.12 KM |
Nearby Properties
| Address | Price | Distance |
|---|---|---|
| 31 Old Lane | £ 125,000 | 0.02 KM |
| 23 Old Lane | £ 425,000 | 0.02 KM |
| 16 Chapel Street | £ 66,000 | 0.06 KM |
| 78 High Street | £ 60,000 | 0.07 KM |
| 63 High Street | £ 385,000 | 0.07 KM |